Projekt domu domek Mokka ET (053 ET)
- Typ projektuWolnostojący
- StylTradycyjny
- Powierzchnia użytkowa113 m²
- KondygnacjeParterowy
- GarażBez garażu
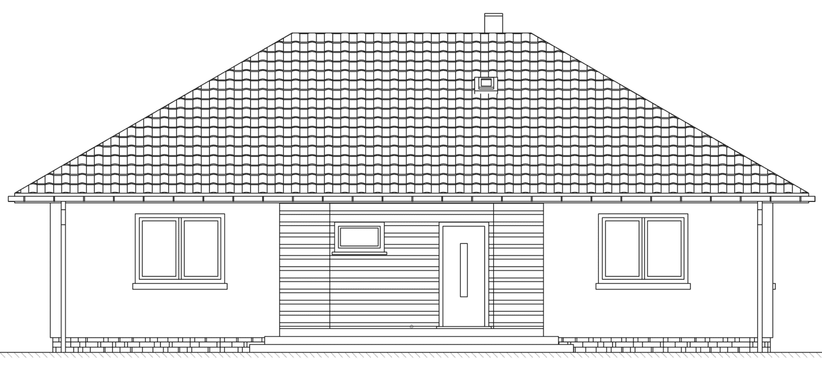
- DachCzterospadowy
- Odbicie lustrzaneTak
- Czas realizacji7 dni Zobacz więcej >
Opis
Zgodność z WT 2021 i Eurokodami
Ze względu na dostosowywanie projektu do standardu WT 2021, czas realizacji może się różnić od standardowego.
Skontaktuj się z nami aby poznać szczegóły dotyczące wybranego projektu.
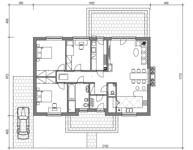
Rzuty
Rzut parteru
- 1.1 Przedsionek3.30
- 1.2 Hol11.33
- 1.3 WC1.36
- 1.4 Spiżarka1.68
- 1.5 Aneks kuchenny14.06
- 1.6 Pokój dzienny25.06
- 1.7 Pom. techniczne6.88
- 1.8 Sypialnia 110.89
- 1.9 Sypialnia 214.97
- 1.10 Sypialnia 315.28
- 1.11 Łazienka8.19
Przekrój
Usytuowanie na działce
Dane techniczne
- Powierzchnia użytkowa113 m²
- Powierzchnia zabudowy141.13 m²
- Liczba pokoi4
- Kubatura310.75 m³
- Długość domu9.72 m
- Szerokość domu14.52 m
- Wysokość domu6.44 m
- Minimalne wymiary działki21.52 x 17.72m
- GarażBez garażu
- Rodzaj dachuCzterospadowy
Instalacja grzewcza
- Instalacja opcjonalna
Zawartość projektu
Co zawiera projekt:
Projekt arch. - budowlany:
-część opisowa i rysunkowa:
- elewacje,
- rzuty,
- przekroje.
Projekt techniczny:
- konstrukcja:
- rzuty,
- przkroje,
- szczegóły konstrukcyjne
- zestawienie głównych materiałów konstr.
- założenia i wyniki obliczeń stat. – wytrz.
- instalacje: – schematy (z doborem urządzeń):
- ogrzewania,
- wentylacji,
- wody,
- kanalizacji,
- elektr.,
- dwie charakterystyki energetyczne dla dwóch źródeł ciepła.
Dodatki
Bezpłatne dodatki
GratisZestaw umów
GratisZmiany w projekcie
GratisTablica budowy
GratisDziennik budowy











