Projekt domu domek na Babiogórskiej 54-35 (069 ES 54-35)
- Typ projektuWolnostojący
- StylTradycyjny
- Powierzchnia użytkowa54.35 m²
- KondygnacjeParterowy
- GarażBez garażu
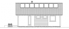
- DachDwuspadowy
- Odbicie lustrzaneTak
- Czas realizacji5 dni roboczych Zobacz więcej >
Opis
Zgodność z WT 2021 i Eurokodami
Ze względu na dostosowywanie projektu do standardu WT 2021, czas realizacji może się różnić od standardowego.
Skontaktuj się z nami aby poznać szczegóły dotyczące wybranego projektu.
Rzuty
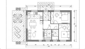
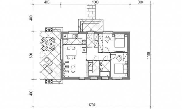
Rzut parteru
- 1.1 Przedsionek2.81
- 1.2 Hol i korytarz4.83
- 1.3 Aneks kuchenny4.90
- 1.4 Pokój dzienny15.98
- 1.5 Pralnia / pom.techn.3.49
- 1.6 Łazienka3.26
- 1.7 Sypialnia 18.49
- 1.8 Sypialnia 210.59
Przekrój
Usytuowanie na działce
Dane techniczne
- Powierzchnia użytkowa54.35 m²
- Powierzchnia zabudowy69 m²
- Liczba łazienek1
- Liczba pokoi2
- Kubatura269.5 m³
- Długość domu10 m
- Szerokość domu6.9 m
- Wysokość domu5.06 m
- Minimalne wymiary działki14.9 x 17m
- GarażBez garażu
- Rodzaj dachuDwuspadowy
Instalacja grzewcza
- Instalacja opcjonalna
Zawartość projektu
Co zawiera projekt:
Projekt arch. - budowlany:
-część opisowa i rysunkowa:
- elewacje,
- rzuty,
- przekroje.
Projekt techniczny:
- konstrukcja:
- rzuty,
- przkroje,
- szczegóły konstrukcyjne
- zestawienie głównych materiałów konstr.
- założenia i wyniki obliczeń stat. – wytrz.
- instalacje: – schematy (z doborem urządzeń):
- ogrzewania,
- wentylacji,
- wody,
- kanalizacji,
- elektr.,
- dwie charakterystyki energetyczne dla dwóch źródeł ciepła.
Dodatki
Bezpłatne dodatki
GratisZestaw umów
GratisZmiany w projekcie
GratisTablica budowy
GratisDziennik budowy











