Projekt domu domek na Wierchowej 49 (049 ES)
- Typ projektuWolnostojący
- StylTradycyjny
- Powierzchnia użytkowa91.79 m²
- KondygnacjeParterowy
- GarażBez garażu
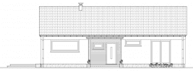
- DachDwuspadowy
- Odbicie lustrzaneTak
- Czas realizacji10 dni roboczych Zobacz więcej >
Opis
Zgodność z WT 2021 i Eurokodami
Ze względu na dostosowywanie projektu do standardu WT 2021, czas realizacji może się różnić od standardowego.
Skontaktuj się z nami aby poznać szczegóły dotyczące wybranego projektu.
Rzuty
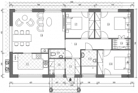
Rzut parteru
- 1.1 Przedsionek2.96
- 1.2 Hol i korytarz7.84
- 1.3 Pom. techniczne3.13
- 1.4 WC1.72
- 1.5 Kuchnia9.65
- 1.6 Pokój dzienny26.93
- 1.7 Sypialnia 19.71
- 1.8 Sypialnia 212.09
- 1.9 Garderoba2.42
- 1.10 Sypialnia 310.44
- 1.11 Łazienka4.90
Przekrój
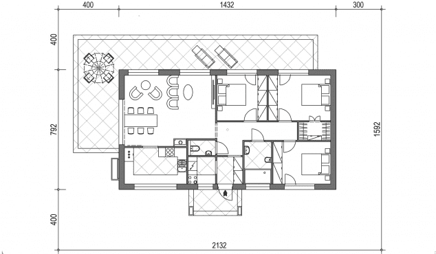
Usytuowanie na działce
Dane techniczne
- Powierzchnia użytkowa91.79 m²
- Powierzchnia zabudowy113.41 m²
- Liczba łazienek1
- Liczba pokoi3
- Kubatura526.69 m³
- Długość domu7.92 m
- Szerokość domu14.32 m
- Wysokość domu6.25 m
- Minimalne wymiary działki22.92 x 15.92m
- GarażBez garażu
- Rodzaj dachuDwuspadowy
Instalacja grzewcza
- Instalacja opcjonalna
Zawartość projektu
Co zawiera projekt:
Projekt arch. - budowlany:
-część opisowa i rysunkowa:
- elewacje,
- rzuty,
- przekroje.
Projekt techniczny:
- konstrukcja:
- rzuty,
- przkroje,
- szczegóły konstrukcyjne
- zestawienie głównych materiałów konstr.
- założenia i wyniki obliczeń stat. – wytrz.
- instalacje: – schematy (z doborem urządzeń):
- ogrzewania,
- wentylacji,
- wody,
- kanalizacji,
- elektr.,
- dwie charakterystyki energetyczne dla dwóch źródeł ciepła.
Dodatki
Bezpłatne dodatki
GratisZestaw umów
GratisZmiany w projekcie
GratisTablica budowy
GratisDziennik budowy











