Projekt domu Drozd II bliźniak z garażem
- Typ projektuDwurodzinny
- Powierzchnia użytkowa216.4 m²
- Kondygnacje
- GarażJednostanowiskowy
- DachDwuspadowy
- Kąt nach. dachu35°
- Odbicie lustrzaneTak
- Czas realizacjimax. czas realizacji 10 dni Zobacz więcej >
Opis
Zgodność z WT 2021 i Eurokodami
Ze względu na dostosowywanie projektu do standardu WT 2021, czas realizacji może się różnić od standardowego.
Skontaktuj się z nami aby poznać szczegóły dotyczące wybranego projektu.
Opis projektu
(Uwaga: projekty typu bliźniak oferujemy jako domy dwulokalowe, projekt można zamówić również w zabudowie bliźniaczej)Jeden segment to nieduży i bardzo wygodny dom parterowy z poddaszem użytkowym przeznaczony dla 4-5-cio osobowej rodziny. Na parterze zaprojektowano wiatrołap, hol, pokój gościnny, salon, oddzielną kuchnię oraz łazienkę. Garaż połączony jest z częścią mieszkalną poprzez pomieszczenie gospodarczo-techniczne, w którym znajduje się piec CO. Na przeciwko pokoju gościnnego zaprojektowano klatkę schodową prowadzącą na poddasze, gdzie znajdują się trzy wygodne sypialnie, garderoba oraz duża łazienka. Dzięki prostej konstrukcji dom będzie tani w realizacji... Sprawdź inne projekty domów - Zapraszamy !
Konstrukcja
Rzuty
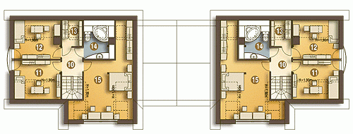
Parter
- m²
- 1. Wiatrołap2.4
- 2. Schody3.5
- 3. Hol7.2
- 4. Kuchnia11.6
- 5. Łazienka3.3
- 6. Pom. tech., Pralnia*7.1
- 7. Pokój9.2
- 8. Salon26.8
- 9. Garaż*19.3
Piętro
Przekrój
Usytuowanie na działce
Elewacja
Elewacja
Elewacja
Elewacja
Dane techniczne
- Powierzchnia użytkowa216.4 m²
- Powierzchnia zabudowy242.8 m²
- KominekTak
- Liczba łazienek4
- Liczba pokoi10
- Powierzchnia dachu347.2 m²
- Kubatura1192 m³
- Długość domu9.6 m
- Szerokość domu29.4 m
- Wysokość domu7.1 m
- Minimalne wymiary działki17.6 x 37.4m
- GarażJednostanowiskowy
- Rodzaj dachuDwuspadowy
- Kąt nach. dachu35°
Instalacja grzewcza
- Instalacja grzewczaGaz
Zawartość projektu
Zgodnie ze znowelizowaną Ustawą Prawo Budowlane art.34 ust.3, na projekt budowlany składają się trzy części:
- projekt zagospodarowania działki lub terenu
- projekt architektoniczno-budowlany
- projekt techniczny
Nasze projekty oferujemy w 3 egzemplarzach, zawierających projekt architektoniczno-budowlany i projekt techniczny. Projekt zagospodarowania działki lub terenu nie wchodzi w skład projektu oferowanego do sprzedaży. Projekt ten należy zlecić we własnym zakresie lokalnemu projektantowi, który opracuje go na podstawie danych zawartych w projekcie architektoniczno-budowlanym i technicznym, po dostosowaniu projektu do warunków lokalnych i wymagań inwestora.
UWAGA: wszystkie egzemplarze projektu zabezpieczone są hologramami, w części rysunkowej posiadają nadruki zabezpieczające w kolorze zielonym. Zalecamy aby po otrzymaniu przesyłki kontrolować czy na pierwszych stronach projektu znajduje się hologram i czy na rysunkach widoczne są w/w nadruki potwierdzające oryginalność projektu.
Wyrażamy zgodę na wszelkie zmiany zgodne z obowiązującymi przepisami pod warunkiem wprowadzenia ich przez uprawnioną osobę.
Wszystkie zmiany wymienione powyżej powinny być naniesione na oryginał projektu katalogowego trwałą techniką graficzną w kolorze czerwonym lub dołączone jako aneks i podpisane przez osobę uprawnioną dokonująca adaptacji.
**ważne informacje
Projekt w fazie koncepcji dostępny z wydłużonym terminem realizacji. Przy zamówieniu ustalamy termin i pobieramy zadatek 50% podstawowej ceny projektu (jako koszty usługi przygotowania dokumentacji do standardu projektu gotowego, w przypadku rezygnacji z usługi, zadatek nie podlega zwrotowi).
Cena za dodatkowy egzemplarz projektu jest zależna od nazwy projektu!
Dodatki
Bezpłatne dodatki
GratisZestaw umów
GratisZmiany w projekcie
GratisTablica budowy
GratisDziennik budowy
Płatne dodatki

Kosztorys - stan wykończony
540 zł

Projekt wentylacji mechanicznej
1 000 zł












