Promocja ważna do
25-11-2025
- Typ projektuWolnostojący
- StylTradycyjny
- Powierzchnia użytkowa107.9 m²
- KondygnacjeParterowy, z poddaszem, z piwnicą
- GarażDwustanowiskowy
- DachDwuspadowy
- Kąt nach. dachu43°
- Odbicie lustrzaneTak
- Czas realizacjimax. czas realizacji 10 dni Zobacz więcej >
Opis
Zgodność z WT 2021 i Eurokodami
Ze względu na dostosowywanie projektu do standardu WT 2021, czas realizacji może się różnić od standardowego.
Skontaktuj się z nami aby poznać szczegóły dotyczące wybranego projektu.
Opis projektu
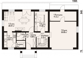
Dom z poddaszem użytkowym i podpiwniczeniem. Duży salon z aneksem kuchennym, kominkiem i wyjściem na taras. Pokój, łazienka, spiżarka, wiatrołap, schody na poddasze, garaż na dwa samochody i pomieszczenie gospodarcze. Na poddaszu trzy pokoje, garderoba, łazienka, pomieszczenie gospodarcze i komunikacja. W piwnicach kotłownia, łazienka z sauną, spiżarnia i pralnia.Zwarta bryła budynku oraz dach dwuspadowy sprzyjają szybkiej i taniej budowie oraz niskim kosztom eksploatacji.Rzuty
Parter
- 1.1 - wiatrołap6.68 m²
- 1.2 - salon26.01 m²
- 1.3 - kuchnia8.01 m²
- 1.4 - łazienka2.97 m²
- 1.5 - spiżarka2.6 m²
- 1.6 - pokój11.68 m²
- 1.7 - komunikacja3.12 m²
- 1.8 - garaż30.69 m²
- 1.9 - pom.gosp.11.2 m²
Poddasze
- 2.1 - komunikacja7.03 m²
- 2.2 - pokój11 m²
- 2.3 - pokój13.65 m²
- 2.4 - garderoba7.39 m²
- 2.5 - pokój10.54 m²
- 2.6 - łazienka7.3 m²
- 2.7 - pom.gosp.26.84 m²
Piwnica
- 0.1 - komunikacja8.14 m²
- 0.2 - spiżarnia5.34 m²
- 0.3 - łazienka11.73 m²
- 0.4 - kotłownia26.01 m²
- 0.5 - pralnia11.68 m²
Sytuacja
Dane techniczne
- Powierzchnia użytkowa107.9 m²
- Powierzchnia netto274.4 m²
- Powierzchnia zabudowy135.67 m²
- KominekTak
- Liczba łazienek3
- Liczba pokoi5
- Powierzchnia dachu244.92 m²
- Kubatura820 m³
- Wysokość domu8.84 m
- Energia pierwotna13.75 kWh/m²/rok
- Minimalne wymiary działki19.15 x 23.6m
- GarażDwustanowiskowy
- Rodzaj dachuDwuspadowy
- Kąt nach. dachu43°
Instalacja grzewcza
- Instalacja grzewczakomplet instalacji, kocioł na paliwo stałe lub kocioł gazowy, instalacja solarna
Koszty budowy
- Koszt budowy203730 zł
- Koszt wykończenia186258 zł
- Koszt instalacji67192 zł
Zawartość projektu
Zamówiony u nas projekt gotowy otrzymacie Państwo w komplecie składającym się z trzech egzemplarzy projektu architektoniczno-budowlanego wykonanego zgodnie z przepisami Prawa budowlanego (Prawo budowlane - tekst jednolity, Dz. U. 2020 poz. 1333).
Część opisowa projektu architektoniczno-budowlanego składa się z:
opisu architektonicznego zawierającego m.in. opis przyjętych rozwiązań, zestawienia powierzchni (użytkowej, zabudowy, netto), kubatury oraz powierzchni poszczególnych pomieszczeń.
Część rysunkowa projektu architektoniczno-budowlanego składa się między innymi z:
rzutów kondygnacji użytkowych (parteru i jeśli występują: poddasza, piętra, piwnic),
rzutu dachu,
przekroi poprzecznych i ewentualnie podłużnych,
elewacji,
zestawienia stolarki okiennej i drzwiowej.
Ponadto projekt gotowy obejmuje trzy egzemplarze opracowań branżowych stanowiące części projektu technicznego, a mianowicie:
projekt konstrukcji,
projekt instalacji wodno-kanalizacyjnej,
projekt instalacji centralnego ogrzewania,
projekt instalacji gazowej (jeżeli występuje),
projekt instalacji elektrycznej i odgromowej.
Część opisowa projektu technicznego składa się z:
- opisu konstrukcyjnego zawierającego m.in. opis materiałów, z których wykonane są elementy konstrukcyjne, obliczenia statyczne wraz z przyjętymi obciążeniami, zestawienia drewna konstrukcyjnego i zestawienie stali,
- opisu instalacji centralnego ogrzewania, wod-kan, gazowej (jeżeli występuje), elektrycznej i odgromowej precyzującego przyjęte w tych branżach rozwiązania, sposób wykonania instalacji i zapotrzebowania na poszczególne media.
Część rysunkowa projektu technicznego składa się między innymi z:
- rzutu fundamentów,
- rzutów konstrukcyjnych poszczególnych kondygnacji,
- rysunków niezbędnych elementów konstrukcyjnych, zbrojenia płyt oraz innych elementów żelbetowych,
- rzutu więźby dachowej,
- rzutów instalacji centralnego ogrzewania oraz schematu technologicznego kotłowni (jeżeli występują),
- rzutów instalacji wod-kan,
- rzutów oraz rozwinięcia instalacji gazowej (jeżeli występuje),
- rzutów instalacji elektrycznej,
- schematu tablicy TM,
- rzutu instalacji odgromowej.
Do dokumentacji dołączone są projektowana charakterystyka energetyczna, kopie uprawnień oraz przynależności do izb zawodowych projektantów oraz standardowa zgoda na zmiany w projekcie. Komplet dokumentacji znajduje się w praktycznej i estetycznej teczce.
Inne warianty tego projektu
Dodatki
Bezpłatne dodatki
GratisZestaw umów
GratisZmiany w projekcie
GratisTablica budowy
GratisDziennik budowy
Płatne dodatki

Dodatkowy egzemplarz projektu
500 zł














