- Typ projektuWolnostojący
- Powierzchnia użytkowa107.8 m²
- Kondygnacje
- GarażDwustanowiskowy
- DachDwuspadowy
- Kąt nach. dachu45°
- Odbicie lustrzaneTak
- Czas realizacjimax. czas realizacji 10 dni Zobacz więcej >
Opis
Zgodność z WT 2021 i Eurokodami
Ze względu na dostosowywanie projektu do standardu WT 2021, czas realizacji może się różnić od standardowego.
Skontaktuj się z nami aby poznać szczegóły dotyczące wybranego projektu.
Opis projektu
Eco 5 z garażem dwustanowiskowym to projekt nowoczesnego domu z serii ECO (to seria projektów domów ekonomicznych - oszczędnych w budowie oraz w użytkowaniu,). Eco 5 to projekt przewidziany dla 4 osobowej rodziny. Na parterze przewiduje się cześć ogólną, z otwartym salonem, jadalnią, wygodną kuchnią, dodatkowym pokojem sypialnym i łazienką. Z wiatrołapu dostępna jest kotłownia na paliwo stałe, która ma również dostęp od przybudowanego garażu, co ułatwi np dostarczanie paliwa. Poddasze ze ścianką kolankową wys. 60cm, to część prywatna, obejmująca: aż cztery sypialnie oraz wspólną łazienkę. Dwie z sypialni mają zapewnione wyjście na obszerny taras zlokalizowany na dachu garażu. Eco 5 to atrakcyjny, funkcjonalny i energooszczędny dom z poddaszem użytkowym.
Konstrukcja
Rzuty
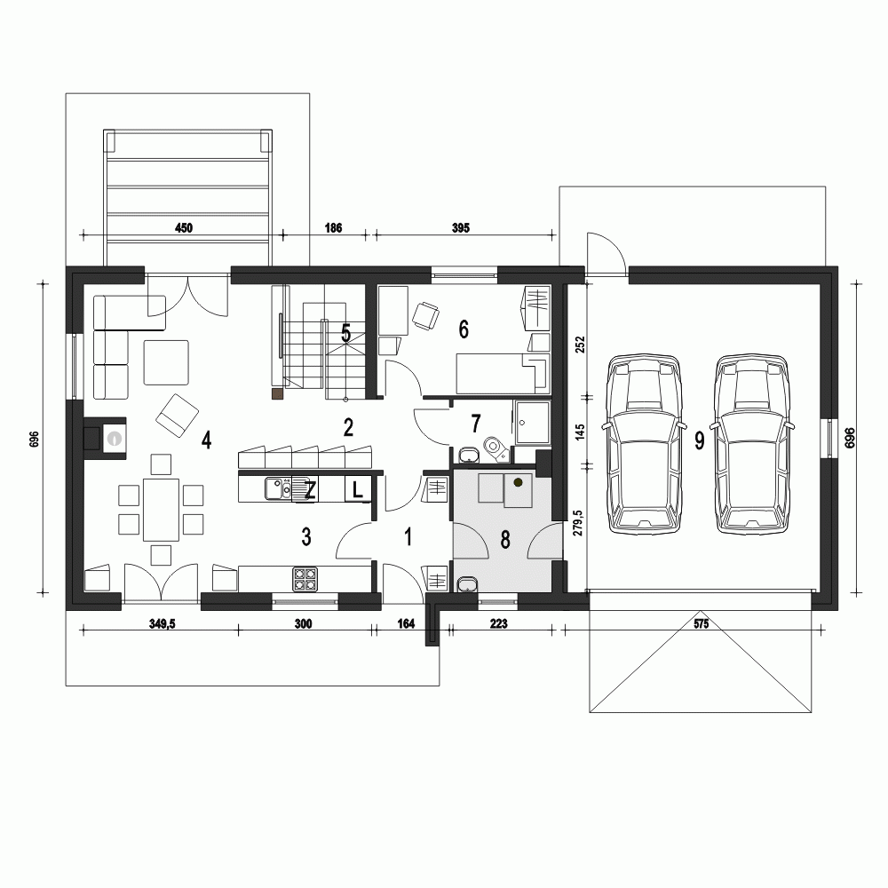
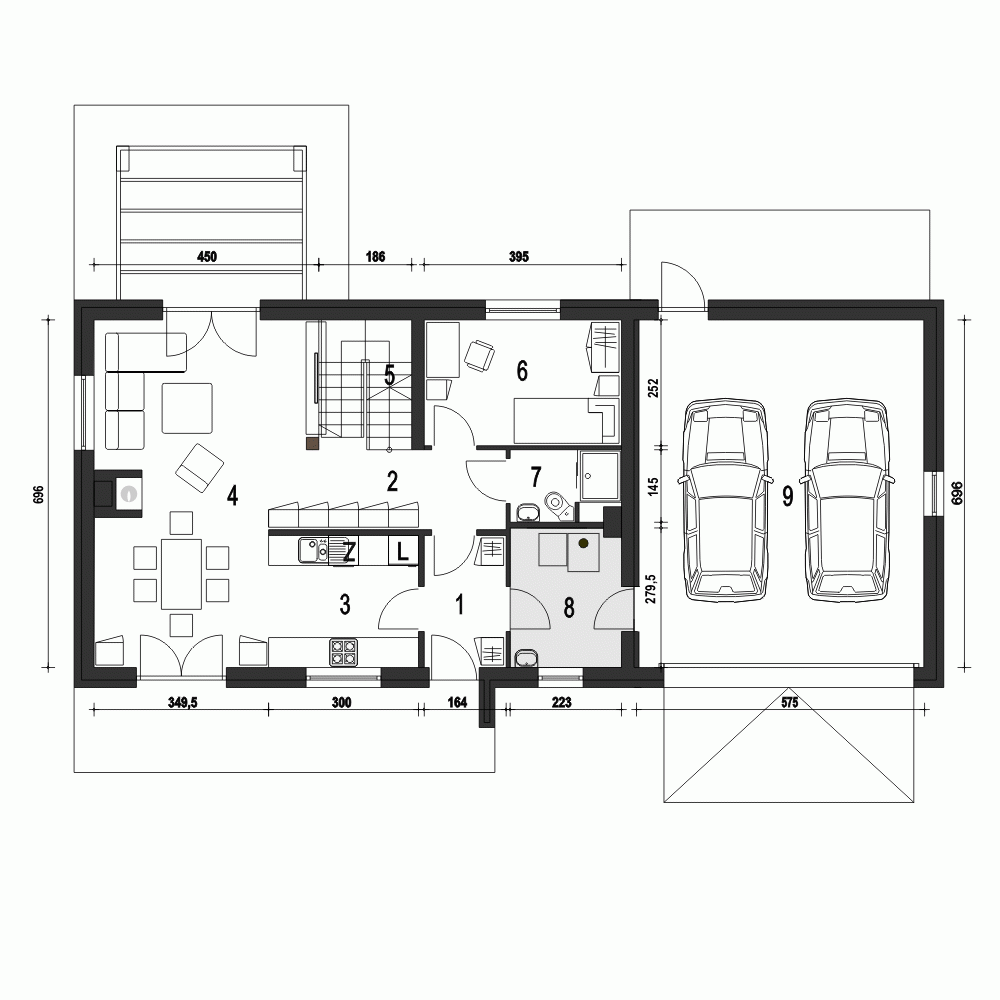
Parter
- m²
- 1. Wiatrołap4.2
- 2. Hol4.4
- 3. Kuchnia7.8
- 4. Salon z jadalnią30.4
- 5. Schody2.4
- 6. Sypialnia9.8
- 7. Łazienka3
- 8. Kotłownia*6
- 9. Garaż*39
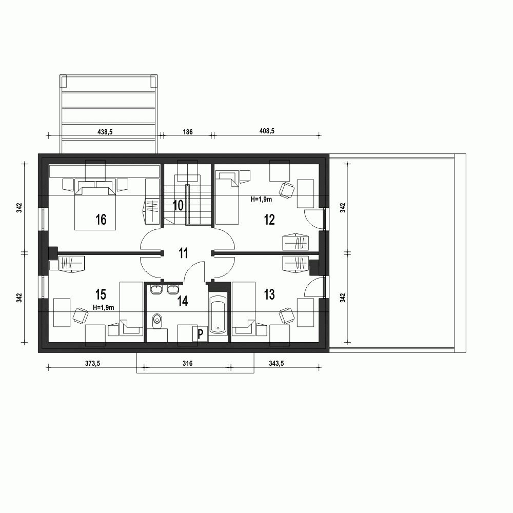
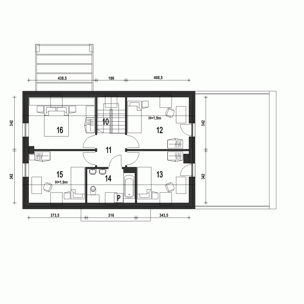
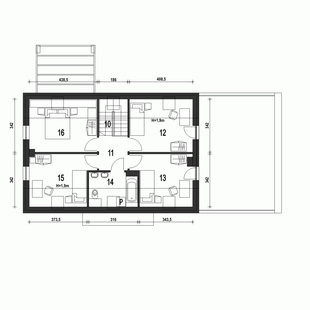
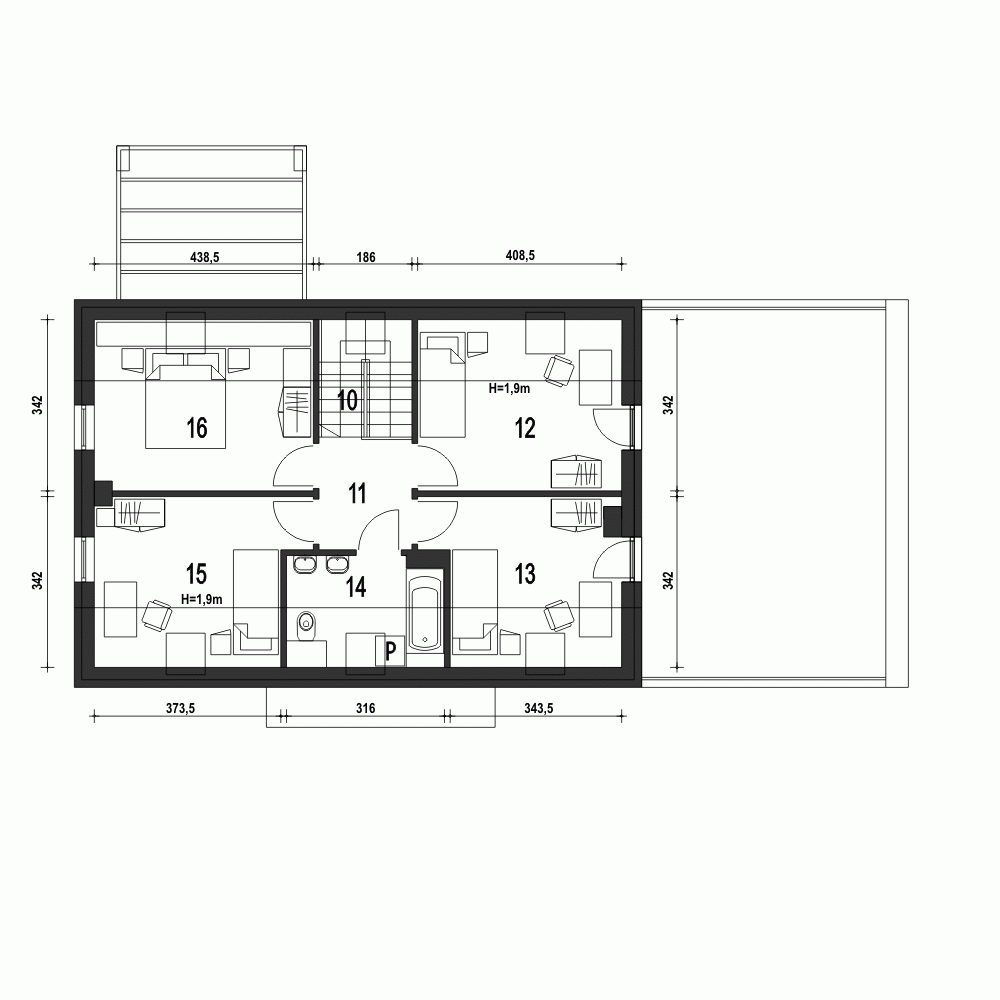
Piętro
- m²
- 10. Schody2.2
- 11. Przedpokój4.2
- 12. Sypialnia9.3
- 13. Sypialnia8.3
- 14. Łazienka3.2
- 15. Sypialnia9.1
- 16. Sypialnia9.9
Przekrój
Usytuowanie na działce
Dane techniczne
- Powierzchnia użytkowa107.8 m²
- Powierzchnia zabudowy135.5 m²
- KominekTak
- Liczba łazienek2
- Liczba pokoi6
- Powierzchnia dachu125 m²
- Kubatura517 m³
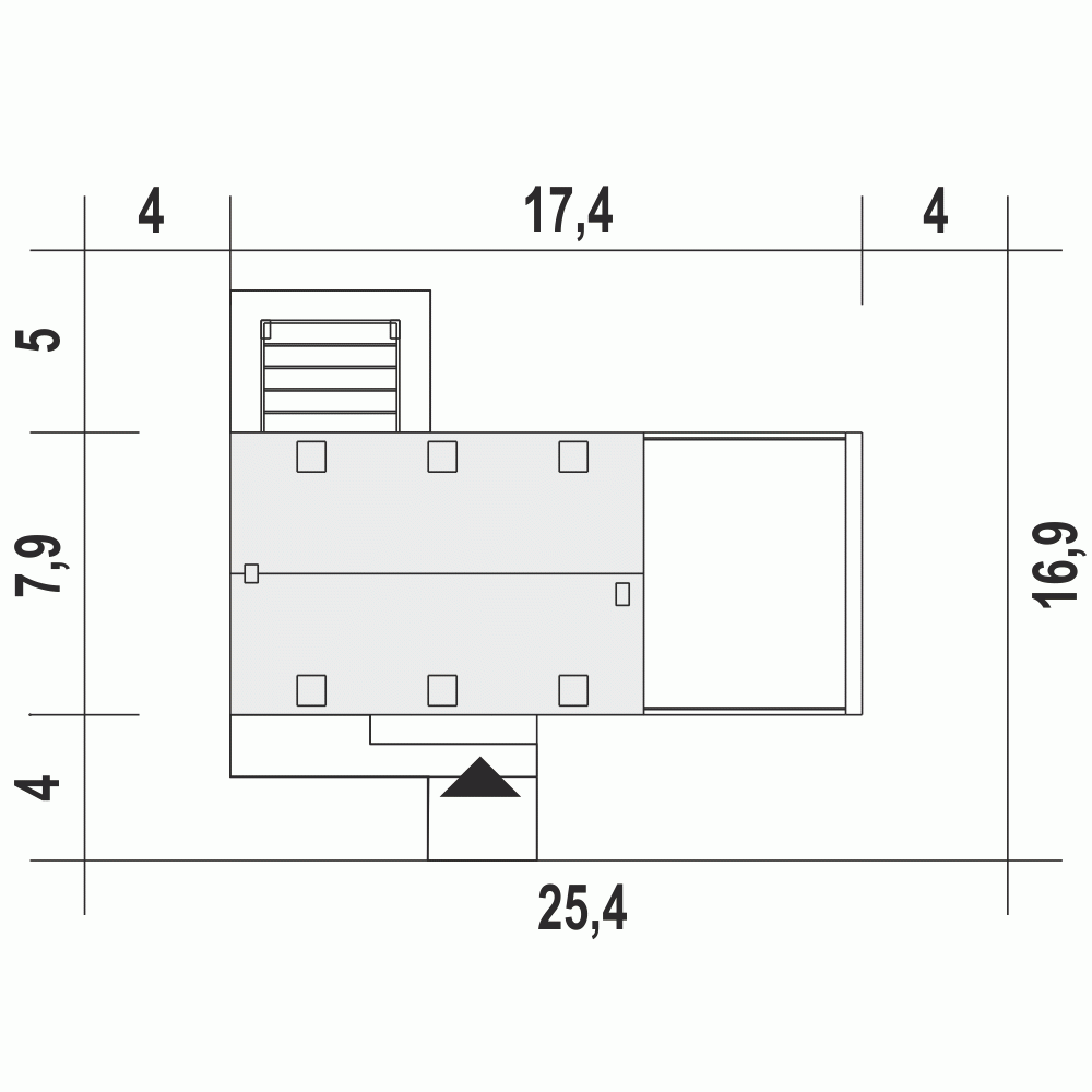
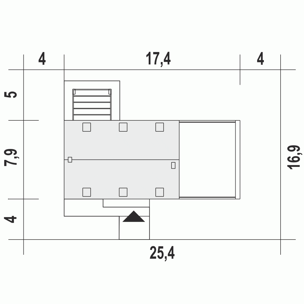
- Długość domu7.9 m
- Szerokość domu17.4 m
- Wysokość domu8 m
- Minimalne wymiary działki16.9 x 25.4m
- GarażDwustanowiskowy
- Rodzaj dachuDwuspadowy
- Kąt nach. dachu45°
Instalacja grzewcza
- Instalacja grzewczaGaz, Paliwo stałe
- Instalacja opcjonalna
Zawartość projektu
Zgodnie ze znowelizowaną Ustawą Prawo Budowlane art.34 ust.3, na projekt budowlany składają się trzy części:
- projekt zagospodarowania działki lub terenu
- projekt architektoniczno-budowlany
- projekt techniczny
Nasze projekty oferujemy w 3 egzemplarzach, zawierających projekt architektoniczno-budowlany i projekt techniczny. Projekt zagospodarowania działki lub terenu nie wchodzi w skład projektu oferowanego do sprzedaży. Projekt ten należy zlecić we własnym zakresie lokalnemu projektantowi, który opracuje go na podstawie danych zawartych w projekcie architektoniczno-budowlanym i technicznym, po dostosowaniu projektu do warunków lokalnych i wymagań inwestora.
UWAGA: wszystkie egzemplarze projektu zabezpieczone są hologramami, w części rysunkowej posiadają nadruki zabezpieczające w kolorze zielonym. Zalecamy aby po otrzymaniu przesyłki kontrolować czy na pierwszych stronach projektu znajduje się hologram i czy na rysunkach widoczne są w/w nadruki potwierdzające oryginalność projektu.
Wyrażamy zgodę na wszelkie zmiany zgodne z obowiązującymi przepisami pod warunkiem wprowadzenia ich przez uprawnioną osobę.
Wszystkie zmiany wymienione powyżej powinny być naniesione na oryginał projektu katalogowego trwałą techniką graficzną w kolorze czerwonym lub dołączone jako aneks i podpisane przez osobę uprawnioną dokonująca adaptacji.
**ważne informacje
Projekt w fazie koncepcji dostępny z wydłużonym terminem realizacji. Przy zamówieniu ustalamy termin i pobieramy zadatek 50% podstawowej ceny projektu (jako koszty usługi przygotowania dokumentacji do standardu projektu gotowego, w przypadku rezygnacji z usługi, zadatek nie podlega zwrotowi).
Cena za dodatkowy egzemplarz projektu jest zależna od nazwy projektu!
Dodatki
Bezpłatne dodatki
GratisZestaw umów
GratisZmiany w projekcie
GratisTablica budowy
GratisDziennik budowy
Płatne dodatki

Kosztorys - stan wykończony
540 zł

Projekt wentylacji mechanicznej
1 000 zł








