Płatne Dodatki do projektów sauny sprzedawane są w formie elektronicznej na płycie czyli kosztorys inwestorski (z wyjątkiem dodatkowego egzemplarza projektu) i bez prawa zwrotu.
Promocja ważna do
23-02-2026
Opis
Ze względu na dostosowywanie projektu do standardu WT 2021, czas realizacji może się różnić od standardowego.
Skontaktuj się z nami aby poznać szczegóły dotyczące wybranego projektu.
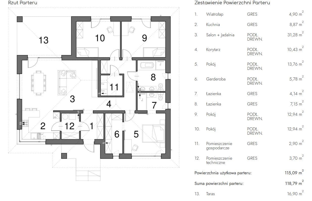
Projekt domu EG-106 wariant II to projekt nowoczesnego domu z poddaszem do adaptacji dla 4-osobowej rodziny.
Zadaszone wejście od frontu prowadzi do przytulnego wiatrołapu, wyposażonego w praktyczną zabudowę do przechowywania. Stąd przechodzimy do przestronnej strefy dziennej, w której salon oferuje miejsce na wygodny narożnik, przestronny stół jadalniany oraz ścianę przeznaczoną na telewizor. Z salonu można również wyjść na zadaszony taras, idealny do relaksu na świeżym powietrzu. Kuchnia, otwarta na część dzienną, została zaprojektowana z myślą o funkcjonalności i posiada dodatkowe wejście z wiatrołapu przez pomieszczenie techniczne.
Strefa nocna została w naturalny sposób oddzielona od części dziennej, co sprzyja komfortowi mieszkańców. W tej części domu zaprojektowano trzy sypialnie, z czego dwie mają bezpośrednie wyjście do ogrodu. Znajduje się tu również wspólna łazienka wyposażona w wannę, a także mniejsza, prywatna łazienka, przeznaczona wyłącznie dla sypialni gospodarzy. Naprzeciwko łazienki umieszczono praktyczne pomieszczenie gospodarcze, a w korytarzowej wnęce zaprojektowano dodatkową szafę, która doskonale sprawdzi się jako miejsce do przechowywania.
| Fundamenty | ławy fundamentowe żelbetowe monolityczne |
| Ściany fundamentowe | bloczki betonowe |
| Ściany konstrukcyjne | bloczek silikatowy |
| Ściany działowe | bloczek gazobetonowy |
| Stropy | żelbetowe |
| Dach | kopertowy pokryty dachówką ceramiczną |
Rzuty
Dane techniczne
Zawartość projektu
Projekt architektoniczno-budowlany (3 egzemplarze) w wersji papierowej
Projekt techniczny (3 egzemplarze) w wersji papierowej
Materiały dodatkowe dodawane do projektu w wersji papierowej
Płatne Dodatki do projektów sprzedawane w formie elektronicznej na płycie (z wyjątkiem dodatkowego egzemplarza projektu) i bez prawa zwrotu.
Projekty saun sprzedawane w formie elektronicznej (w formacie PDF) na płycie (z wyjątkiem dodatkowego egzemplarza projektu) i bez prawa zwrotu.
Płatne Dodatki do projektów sauny sprzedawane są w formie elektronicznej na płycie czyli kosztorys inwestorski (z wyjątkiem dodatkowego egzemplarza projektu) i bez prawa zwrotu.
Aby dopasować projekt do swoich potrzeb, otrzymasz bezpłatne pozwolenie na zmiany. Standardowo obejmuje ono m.in. przesunięcie drzwi, okien, zmianę funkcji pomieszczeń czy rodzaju ogrzewania. Jeśli taka zgoda to za mało, skontaktuj się z nami.
Dodatki
GratisZestaw umów
GratisZmiany w projekcie
GratisTablica budowy
GratisDziennik budowy

Pakiet ogrzewanie podłogowe
620 zł

Pakiet powietrznej / gruntowej pompy ciepła
590 zł

Projekt wentylacji mechanicznej
860 zł

Dodatkowy egzemplarz
590 zł

Wersja elektroniczna projektu
590 zł

Kosztorys
620 zł
Zaloguj się
Załóż konto
Przypomnij hasło
Na podany adres e-mail zostanie wysłana instrukcja zmiany hasła