Promocja ważna do
18-02-2026
- Typ projektuWolnostojący
- Powierzchnia użytkowa108.1 m²
- KondygnacjeParterowy
- GarażBez garażu
- DachDwuspadowy
- Kąt nach. dachu30°
- Odbicie lustrzaneTak
- Czas realizacjido 10 dni roboczych Zobacz więcej >
Opis
Zgodność z WT 2021 i Eurokodami
Ze względu na dostosowywanie projektu do standardu WT 2021, czas realizacji może się różnić od standardowego.
Skontaktuj się z nami aby poznać szczegóły dotyczące wybranego projektu.
Opis projektu
Projekt domu z poddaszem do adaptacji, które można wykończyć w późniejszym czasie. Część dzienna na parterze obejmuje pokój dzienny, jadalnię, kuchnię ze spiżarnią oraz wc. Tuż przy wiatrołapie zaprojektowano pom. gosp. Strefa nocna domu to trzy sypialnie, łazienka oraz garderoba. Propozycja zaranżowania poddasza obejmuje dwa pokoje, garderobę, łazienkę i pralnię. Projekt dostępny w wersji bez poddasza - Flawia, w wersji z poddaszem i garażem - Flawia III oraz w wersjach bez poddasza i o mniejszej powierzchni użytkowej: bez garażu - Flawia Mała, oraz z garażem jednostanowiskowym - Flawia Mała II.
Konstrukcja
Ściany zewnętrzne warstwowe z bloczków wapienno-piaskowych, na fundamentach betonowych. Ściany wewnętrzne z bloczków wapienno-piaskowych. Strop gęstożebrowy i płyta monolityczna.
Elewacje pokryte tynkiem strukturalnym w systemie ociepleń Termo Organika oraz okładziną drewnianą i kamienną. W projekcie zastosowano okna dachowe marki FAKRO. Pokrycie dachu - dachówka ceramiczna lub cementowa CREATON.
Rzuty
Parter
- 1/1 wiatrołap5
- 1/2 pom. gosp.3.9
- 1/3 hall8.9
- 1/4 spiżarnia2.3
- 1/5 kuchnia11
- 1/6 pok. dzienny + jadalnia28.1
- 1/7 pokój12.9
- 1/8 pokój13.9
- 1/9 łazienka6
- 1/10 pokój16.1
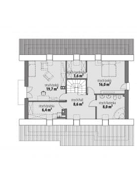
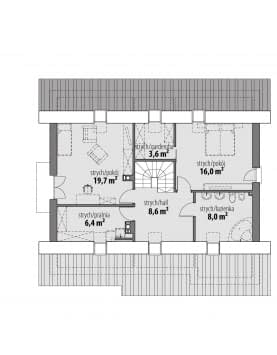
Adaptacja poddasza
Dane techniczne
- Powierzchnia użytkowa108.1 m²
- Powierzchnia zabudowy152 m²
- Liczba łazienek1
- Liczba pokoi3
- Powierzchnia dachu216 m²
- Kubatura545.1 m³
- Wysokość domu7.3 m
- Minimalne wymiary działki19.95 x 21.7m
- GarażBez garażu
- Rodzaj dachuDwuspadowy
- Kąt nach. dachu30°
Zawartość projektu
Komplet dokumentacji projektowej stanowi:
1. Trzy (3) egzemplarze projektu architektoniczno-budowlanego
- architektura – opis,
- architektura - rysunki.
2. Dwa (2) egzemplarze projektu technicznego:
- architektura - rysunki,
- konstrukcja - opis,
- konstrukcja - rysunki,
- instalacje sanitarne,
- instalacje sanitarne opis,
- instalacje elektryczne,
- instalacje elektryczne opis.
3. MATERIAŁY POMOCNICZE w 1 egzemplarzu.
- rysunki wykonawcze elementów żelbetowych,
- zestawienie stali zbrojeniowej,
- zestawienie elementów konstrukcyjnych więźby dachowej
- tabela elementów z kosztorysu stanu surowego zamkniętego (obejmującą robociznę, materiały i sprzęt)- dostępne dla projektów, które posiadają kosztorys
Każda dokumentacja projektowa przygotowywana jest na indywidualne zlecenie zamawiającego oraz jest zabezpieczona specjalną plombą z hologramem, której zerwanie lub usunięcie jest jednoznaczne z wykorzystaniem projektu.
Uprawnienia - wszystkie projekty domów mają stosowne uprawnienia i zaświadczenia potwierdzające przynależność do izb wszystkich projektantów, będących autorami prezentowanych na tej stronie koncepcji domów.
Zmiany w projekcie domu, które nie naruszają jego konstrukcji , możecie Państwo wprowadzać we współpracy z projektantem adaptującym projekt gotowy, bez konieczności konsultowania tego z autorem dokumentacji.
Poniżej prezentujemy zakres zmian, które nie wymagają zgody ze strony naszej Pracowni:
- Zmiany wymiarów fundamentów wynikające z dostosowania budynku do lokalnych warunków gruntowych.
- Wprowadzenie całkowitego lub częściowego podpiwniczenia budynku pod warunkiem nie wynoszenia poziomu parteru w stosunku do poziomu terenu.
- Zaprojektowanie użycia innych materiałów na konstrukcję budynku (ściany stropy) przy zachowaniu wymaganych przepisami i normami parametrów oraz pod warunkiem zachowania walorów użytkowych budynku.
- Rodzaj stropów – przy zachowaniu układu konstrukcji i wymaganych przepisami oraz normami parametrów.
- Materiały ścian zewnętrznych i wykończeniowych (tynki, posadzki, dachówki, izolacja cieplna i przeciwwilgociowa) pod warunkiem utrzymania wymaganych parametrów (tj. np. wytrzymałość, ciepłochłonność).
- Program użytkowy wewnątrz budynku; np. przesunięcie lub likwidacja ścian działowych i zmiana lokalizacji, ilości i kształtu okien oraz drzwi, przy zachowaniu wymaganych przepisami i normami parametrów.
- Kąt nachylenia dachu do 10 proc. lub 5 stopni, pod warunkiem dostosowania konstrukcyjnego i zachowania formy architektonicznej.
- Zmiana przekrojów elementów konstrukcji dachowej wynikająca z dostosowania do materiałów pokrycia lub z dostosowania budynku do innych stref śniegowych i wiatrowych niż podano w projekcie.
- Kolorystyka elewacji, detali dekoracyjnych, kształtu podjazdów i tarasów.
- Instalacja: wodna, kanalizacyjna, gazowa, elektryczna i centralnego ogrzewania - pod warunkiem zachowania obowiązujących norm i przepisów prawa budowlanego.
- Realizacja projektu wg. lustrzanego odbicia.
Dodatki
Bezpłatne dodatki
GratisZestaw umów
GratisZmiany w projekcie
GratisTablica budowy
GratisDziennik budowy
Płatne dodatki

Projekt wentylacji mechanicznej
700 zł

Kosztorys
861 zł

Dodatkowy egzemplarz projektu
246 zł

Projekt instalacji centralnego ogrzewania zasilanego pompą ciepła
650 zł
























