- Typ projektuBliźniak
- Powierzchnia użytkowa231.4 m²
- Kondygnacje
- GarażBez garażu
- DachDwuspadowy
- Kąt nach. dachu40°
- Odbicie lustrzaneTak
- Czas realizacjimax. czas realizacji 10 dni Zobacz więcej >
Opis
Zgodność z WT 2021 i Eurokodami
Ze względu na dostosowywanie projektu do standardu WT 2021, czas realizacji może się różnić od standardowego.
Skontaktuj się z nami aby poznać szczegóły dotyczące wybranego projektu.
Opis projektu
(Uwaga: projekty typu bliźniak oferujemy jako domy dwulokalowe, projekt można zamówić również w zabudowie bliźniaczej)Poniższy opis dotyczy jednego segmentu;Projekt gotowy Gajówka zawiera w swoim programie użytkowym:salon z jadalnią, otwarta kuchnią, schodami na górę i kominkiem oraz witryna ogrodową. Na parterze po za tym znajdują się jeszcze takie pomieszczenia jak: garderoba wiatrołap , WC, garaż i kotłownia oraz spiżarnia. Piętro składa się z przedpokoju, trzech sypialni i łazienki oraz garderoby.Wyraźny podział na strefy dzienną i nocną zapewni mieszkańcom domu wygodę i komfort.Gajówka jest bardzo prosta i oszczędna - będzie tania w budowie i ekonomiczna.
Konstrukcja
Rzuty
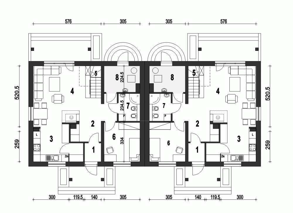
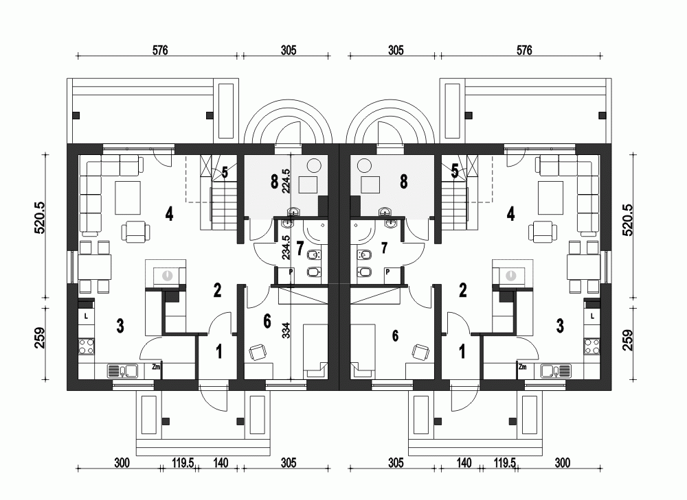
Parter
- m²
- 1. Wiatrołap2.1
- 2. Komunikacja9.6
- 3. Kuchnia+spiżarnia10.9
- 4. Salon22.9
- 5. Schody4
- 6. Pokój gościnny10
- 7. Łazienka4.2
- 8. Pom. tech.*6.4
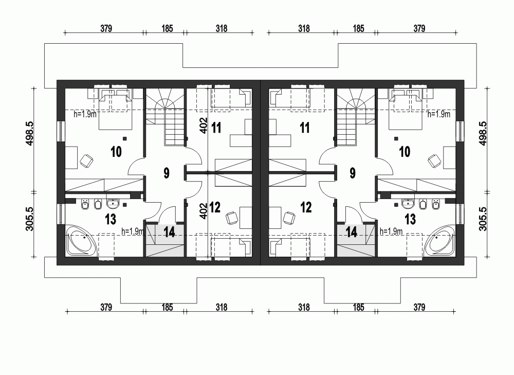
Piętro
- m²
- 9. Hol7.7
- 10. Sypialnia15.8
- 11. Sypialnia9.9
- 12. Sypialnia10.2
- 13. Łazienka8.3
- 14. Strych (Garderoba)*1.5
Usytuowanie na działce
Dane techniczne
- Powierzchnia użytkowa231.4 m²
- Powierzchnia zabudowy177.8 m²
- KominekTak
- Liczba łazienek4
- Liczba pokoi10
- Powierzchnia dachu304.8 m²
- Długość domu9.1 m
- Szerokość domu19.8 m
- Wysokość domu8.8 m
- Minimalne wymiary działki17.1 x 27.8m
- GarażBez garażu
- Rodzaj dachuDwuspadowy
- Kąt nach. dachu40°
Instalacja grzewcza
- Instalacja grzewczaGaz, Paliwo stałe
Zawartość projektu
Zgodnie ze znowelizowaną Ustawą Prawo Budowlane art.34 ust.3, na projekt budowlany składają się trzy części:
- projekt zagospodarowania działki lub terenu
- projekt architektoniczno-budowlany
- projekt techniczny
Nasze projekty oferujemy w 3 egzemplarzach, zawierających projekt architektoniczno-budowlany i projekt techniczny. Projekt zagospodarowania działki lub terenu nie wchodzi w skład projektu oferowanego do sprzedaży. Projekt ten należy zlecić we własnym zakresie lokalnemu projektantowi, który opracuje go na podstawie danych zawartych w projekcie architektoniczno-budowlanym i technicznym, po dostosowaniu projektu do warunków lokalnych i wymagań inwestora.
UWAGA: wszystkie egzemplarze projektu zabezpieczone są hologramami, w części rysunkowej posiadają nadruki zabezpieczające w kolorze zielonym. Zalecamy aby po otrzymaniu przesyłki kontrolować czy na pierwszych stronach projektu znajduje się hologram i czy na rysunkach widoczne są w/w nadruki potwierdzające oryginalność projektu.
Wyrażamy zgodę na wszelkie zmiany zgodne z obowiązującymi przepisami pod warunkiem wprowadzenia ich przez uprawnioną osobę.
Wszystkie zmiany wymienione powyżej powinny być naniesione na oryginał projektu katalogowego trwałą techniką graficzną w kolorze czerwonym lub dołączone jako aneks i podpisane przez osobę uprawnioną dokonująca adaptacji.
**ważne informacje
Projekt w fazie koncepcji dostępny z wydłużonym terminem realizacji. Przy zamówieniu ustalamy termin i pobieramy zadatek 50% podstawowej ceny projektu (jako koszty usługi przygotowania dokumentacji do standardu projektu gotowego, w przypadku rezygnacji z usługi, zadatek nie podlega zwrotowi).
Cena za dodatkowy egzemplarz projektu jest zależna od nazwy projektu!
Dodatki
Bezpłatne dodatki
GratisZestaw umów
GratisZmiany w projekcie
GratisTablica budowy
GratisDziennik budowy
Płatne dodatki

Kosztorys - stan wykończony
540 zł

Projekt wentylacji mechanicznej
1 000 zł














