Projekt domu Galena II z garażem 2st.
- Typ projektuWolnostojący
- Powierzchnia użytkowa161.2 m²
- Kondygnacje
- GarażDwustanowiskowy
- DachWielospadowy
- Kąt nach. dachu25°
- Odbicie lustrzaneTak
- Czas realizacjimax. czas realizacji 10 dni Zobacz więcej >
Opis
Zgodność z WT 2021 i Eurokodami
Ze względu na dostosowywanie projektu do standardu WT 2021, czas realizacji może się różnić od standardowego.
Skontaktuj się z nami aby poznać szczegóły dotyczące wybranego projektu.
Opis projektu
Projekt Galena II jest domem dużym, rozłożystym dopasowanym do wielkości standardowych działek na nowoczesnych osiedlach.Dla wszystkich szukających domu o bezkompromisowej funkcji projekt Galena II jest idealnym rozwiązaniem. Galena to projekt z podwójnym garażem, czterema sypialniami w tym jedną podwójną - typu master bedroom z indywidualna łazienką i garderobą. Przestrzeń wspólną stanowi komfortowe wnętrze salonu z otwartą kuchnią, wyspą kuchenną, jadalnią, miejscem z kominkiem i wejściem na zadaszony luksusowy taras w podcieniu domu.Uzupełnieniem funkcji domu są pomieszczenia takie jak WC, spiżarnia przy kuchni, pomieszczenie techniczne z pralką i suszarką . Piękne duże przeszklenia od strony wszystkich pokoi, jadalni i salonu umożliwią dostęp dobrego dziennego światła dla mieszkańców tego wymarzonego domu.Elewacje domu zostały zaprojektowane z myślą o nowoczesnej stylistyce i luksusowej funkcji domu.
Konstrukcja
fundamenty: betonowe
ściany: porotherm+styropian
rodzaj stropu: prefabrykowane wiązary dachowe mitek
elewacje: tynk strukturalny
pokrycie dachu: dachówka cem. lub cer.
Rzuty
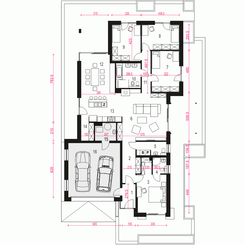
Parter
- m²
- 1. Wiatrołap4.4
- 2. Hol8.6
- 3. Sypialnia + Garderoba17.3
- 4. Łazienka2.9
- 5. WC + Pralnia5.3
- 6. Salon30.7
- 7. Pokój15.2
- 8. Pokój12.7
- 9. Pokój13.9
- 10. Łazienka8.2
- 11. Korytarz5
- 12. Jadalnia18.1
- 13. Kuchnia15.7
- 14. Spiżarnia3.2
- 15. Pom. tech. CO*4.7
- 16. Garaż*36.8
Przekrój
Usytuowanie na działce
Dane techniczne
- Powierzchnia użytkowa161.2 m²
- Powierzchnia zabudowy249.4 m²
- KominekTak
- Liczba łazienek2
- Liczba pokoi5
- Powierzchnia dachu358 m²
- Kubatura548 m³
- Długość domu22.9 m
- Szerokość domu13.9 m
- Wysokość domu6.4 m
- Minimalne wymiary działki30.9 x 21.9m
- GarażDwustanowiskowy
- Rodzaj dachuWielospadowy
- Kąt nach. dachu25°
Instalacja grzewcza
- Instalacja grzewczaGaz
Zawartość projektu
Zgodnie ze znowelizowaną Ustawą Prawo Budowlane art.34 ust.3, na projekt budowlany składają się trzy części:
- projekt zagospodarowania działki lub terenu
- projekt architektoniczno-budowlany
- projekt techniczny
Nasze projekty oferujemy w 3 egzemplarzach, zawierających projekt architektoniczno-budowlany i projekt techniczny. Projekt zagospodarowania działki lub terenu nie wchodzi w skład projektu oferowanego do sprzedaży. Projekt ten należy zlecić we własnym zakresie lokalnemu projektantowi, który opracuje go na podstawie danych zawartych w projekcie architektoniczno-budowlanym i technicznym, po dostosowaniu projektu do warunków lokalnych i wymagań inwestora.
UWAGA: wszystkie egzemplarze projektu zabezpieczone są hologramami, w części rysunkowej posiadają nadruki zabezpieczające w kolorze zielonym. Zalecamy aby po otrzymaniu przesyłki kontrolować czy na pierwszych stronach projektu znajduje się hologram i czy na rysunkach widoczne są w/w nadruki potwierdzające oryginalność projektu.
Wyrażamy zgodę na wszelkie zmiany zgodne z obowiązującymi przepisami pod warunkiem wprowadzenia ich przez uprawnioną osobę.
Wszystkie zmiany wymienione powyżej powinny być naniesione na oryginał projektu katalogowego trwałą techniką graficzną w kolorze czerwonym lub dołączone jako aneks i podpisane przez osobę uprawnioną dokonująca adaptacji.
**ważne informacje
Projekt w fazie koncepcji dostępny z wydłużonym terminem realizacji. Przy zamówieniu ustalamy termin i pobieramy zadatek 50% podstawowej ceny projektu (jako koszty usługi przygotowania dokumentacji do standardu projektu gotowego, w przypadku rezygnacji z usługi, zadatek nie podlega zwrotowi).
Cena za dodatkowy egzemplarz projektu jest zależna od nazwy projektu!
Dodatki
Bezpłatne dodatki
GratisZestaw umów
GratisZmiany w projekcie
GratisTablica budowy
GratisDziennik budowy
Płatne dodatki

Kosztorys - stan wykończony
540 zł

Projekt wentylacji mechanicznej
1 000 zł

















