Projekt domu gładyszów 36 gg dws
- Typ projektuWolnostojący
- StylTradycyjny
- Powierzchnia użytkowa106.4 m²
- KondygnacjeParterowy, z poddaszem
- GarażDwustanowiskowy
- DachDwuspadowy
- Kąt nach. dachu43°
- Odbicie lustrzaneTak
- Czas realizacjimax. czas realizacji 10 dni Zobacz więcej >
Opis
Zgodność z WT 2021 i Eurokodami
Ze względu na dostosowywanie projektu do standardu WT 2021, czas realizacji może się różnić od standardowego.
Skontaktuj się z nami aby poznać szczegóły dotyczące wybranego projektu.
Opis projektu
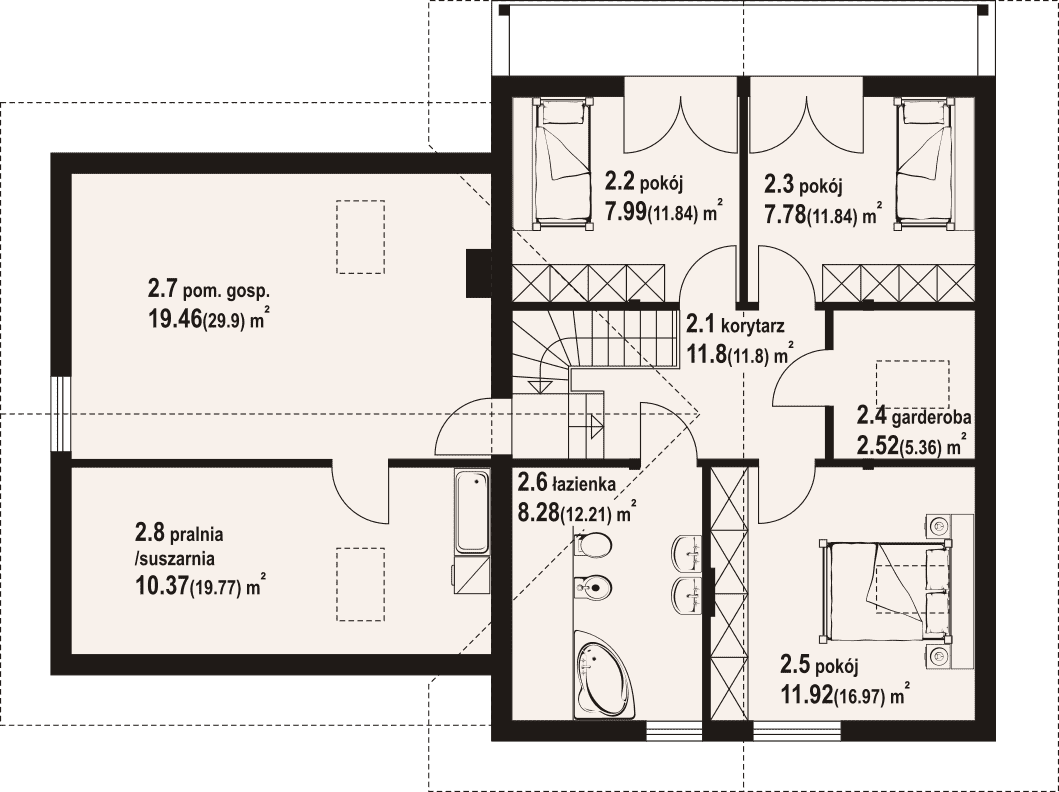
Dom w konstrukcji szkieletu drewnianego. Salon z wyjściem na taras, przejściem do kuchni i schodami na poddasze. Pokój, łazienka, spiżarka, wiatrołap. Garaż na dwa samochody, kotłownia. Na poddaszu trzy pokoje, łazienka, garderoba, korytarz, pralnia i pomieszczenie gospodarcze. Dwa pokoje mają balkon.Rzuty
Parter
- 1.1 - wiatrołap5.29 m²
- 1.2 - korytarz2.94 m²
- 1.3 - kuchnia11.06 m²
- 1.4 - spiżarka2.51 m²
- 1.5 - salon24.75 m²
- 1.6 - pokój10.34 m²
- 1.7 - łazienka4.25 m²
- 1.8 - garaż36.54 m²
- 1.9 - kotłownia13 m²
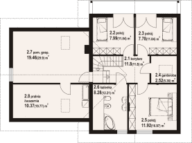
Poddasze
- 2.1 - korytarz11.8 m²
- 2.2 - pokój7.99 m²
- 2.3 - pokój7.78 m²
- 2.4 - garderoba2.52 m²
- 2.5 - pokój11.92 m²
- 2.6 - łazienka8.28 m²
- 2.7 - pom. gosp.19.46 m²
- 2.8 - pralnia10.37 m²
Sytuacja
Dane techniczne
- Powierzchnia użytkowa106.4 m²
- Powierzchnia netto234.55 m²
- Powierzchnia zabudowy142.36 m²
- KominekTak
- Liczba łazienek2
- Liczba pokoi5
- Powierzchnia dachu267 m²
- Kubatura690 m³
- Wysokość domu8.37 m
- Energia pierwotna36.38 kWh/m²/rok
- Minimalne wymiary działki23 x 18.75m
- GarażDwustanowiskowy
- Rodzaj dachuDwuspadowy
- Kąt nach. dachu43°
Instalacja grzewcza
- Instalacja grzewczakomplet instalacji, kocioł na paliwo stałe lub kocioł gazowy, instalacja wentylacji mechanicznej z rekuperacją
Koszty budowy
- Koszt budowy230911 zł
- Koszt wykończenia137066 zł
- Koszt instalacji71193 zł
Zawartość projektu
Zamówiony u nas projekt gotowy otrzymacie Państwo w komplecie składającym się z trzech egzemplarzy projektu architektoniczno-budowlanego wykonanego zgodnie z przepisami Prawa budowlanego (Prawo budowlane - tekst jednolity, Dz. U. 2020 poz. 1333).
Część opisowa projektu architektoniczno-budowlanego składa się z:
opisu architektonicznego zawierającego m.in. opis przyjętych rozwiązań, zestawienia powierzchni (użytkowej, zabudowy, netto), kubatury oraz powierzchni poszczególnych pomieszczeń.
Część rysunkowa projektu architektoniczno-budowlanego składa się między innymi z:
rzutów kondygnacji użytkowych (parteru i jeśli występują: poddasza, piętra, piwnic),
rzutu dachu,
przekroi poprzecznych i ewentualnie podłużnych,
elewacji,
zestawienia stolarki okiennej i drzwiowej.
Ponadto projekt gotowy obejmuje trzy egzemplarze opracowań branżowych stanowiące części projektu technicznego, a mianowicie:
projekt konstrukcji,
projekt instalacji wodno-kanalizacyjnej,
projekt instalacji centralnego ogrzewania,
projekt instalacji gazowej (jeżeli występuje),
projekt instalacji elektrycznej i odgromowej.
Część opisowa projektu technicznego składa się z:
- opisu konstrukcyjnego zawierającego m.in. opis materiałów, z których wykonane są elementy konstrukcyjne, obliczenia statyczne wraz z przyjętymi obciążeniami, zestawienia drewna konstrukcyjnego i zestawienie stali,
- opisu instalacji centralnego ogrzewania, wod-kan, gazowej (jeżeli występuje), elektrycznej i odgromowej precyzującego przyjęte w tych branżach rozwiązania, sposób wykonania instalacji i zapotrzebowania na poszczególne media.
Część rysunkowa projektu technicznego składa się między innymi z:
- rzutu fundamentów,
- rzutów konstrukcyjnych poszczególnych kondygnacji,
- rysunków niezbędnych elementów konstrukcyjnych, zbrojenia płyt oraz innych elementów żelbetowych,
- rzutu więźby dachowej,
- rzutów instalacji centralnego ogrzewania oraz schematu technologicznego kotłowni (jeżeli występują),
- rzutów instalacji wod-kan,
- rzutów oraz rozwinięcia instalacji gazowej (jeżeli występuje),
- rzutów instalacji elektrycznej,
- schematu tablicy TM,
- rzutu instalacji odgromowej.
Do dokumentacji dołączone są projektowana charakterystyka energetyczna, kopie uprawnień oraz przynależności do izb zawodowych projektantów oraz standardowa zgoda na zmiany w projekcie. Komplet dokumentacji znajduje się w praktycznej i estetycznej teczce.
Inne warianty tego projektu
Dodatki
Bezpłatne dodatki
GratisZestaw umów
GratisZmiany w projekcie
GratisTablica budowy
GratisDziennik budowy
Płatne dodatki

Dodatkowy egzemplarz projektu
400 zł













