- Typ projektuWolnostojący
- Powierzchnia użytkowa104.1 m²
- Kondygnacje
- GarażJednostanowiskowy
- DachDwuspadowy
- Kąt nach. dachu40°
- Odbicie lustrzaneTak
- Czas realizacjimax. czas realizacji 10 dni Zobacz więcej >
Opis
Zgodność z WT 2021 i Eurokodami
Ze względu na dostosowywanie projektu do standardu WT 2021, czas realizacji może się różnić od standardowego.
Skontaktuj się z nami aby poznać szczegóły dotyczące wybranego projektu.
Opis projektu
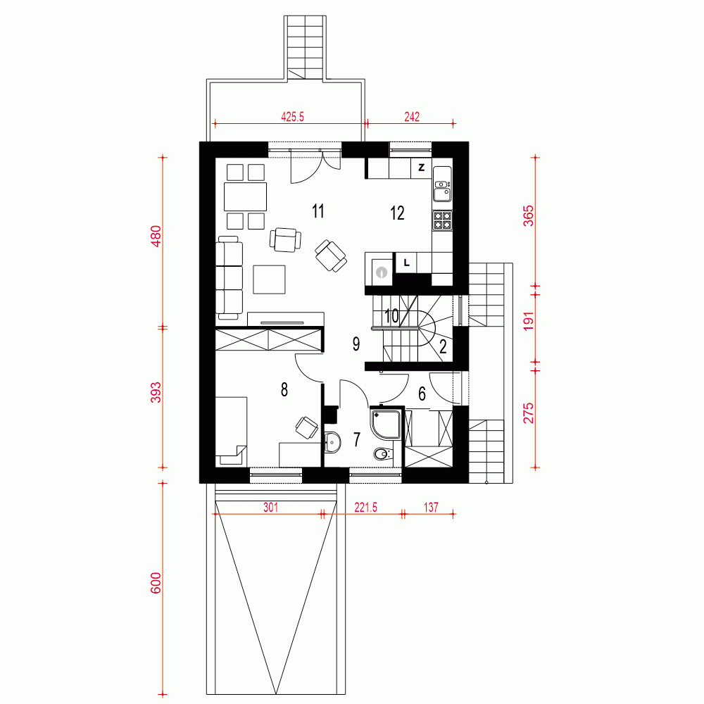
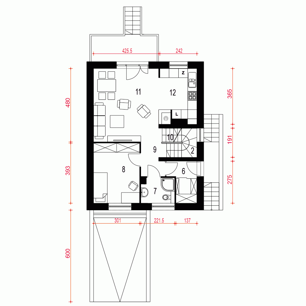
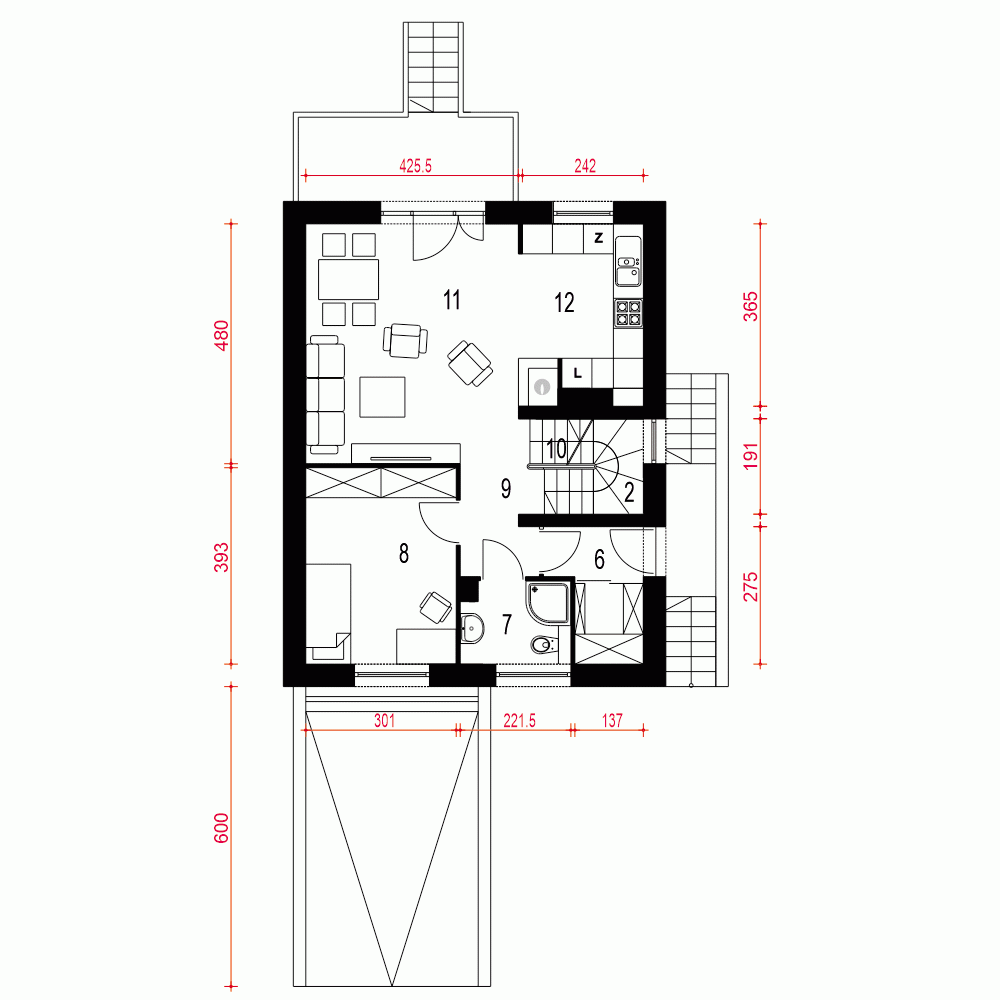
Grab jest propozycją niedużego domu jednorodzinnego utrzymanego w klasycznej stylistyce. Przeznaczony jest szczególnie dla wąskich działek miejskich i podmiejskich oraz do zabudowy bliźniaczej.Projekt przewiduje wbudowany garaż oraz pomieszczenia pomocnicze takie jak kotłownia oraz spiżarnia w piwnicy.Projekt przewidziano dla potrzeb 4-5 osobowej rodziny. Na parterze mamy ustawny i połączony z kuchnią i jadalnią salonu a także dodatkowy pokój, niewielką łazienkę oraz duży wiatrołap z garderobą.Na piętrze zaprojektowano trzy sypialnie oraz łazienkę. Biały kolor na elewacji zarówno w detalu jak i na płaskich powierzchniach oraz niewielki dodatek szarości podkreśla elegancki charakter budynku.Jedną z wielu zalet projektu Grab jest maksymalnie uproszczona konstrukcja oraz prosta bryła, co powoduje, że Grab będzie domem tanim w budowie i eksploatacji.
Konstrukcja
fundamenty: betonowe
ściany zewnętrzne: porotherm+styropian termo organika
rodzaj stropu: teriva i
elewacje: tynk strukturalny
pokrycie dachu: dachówka cem. lub cer.
Rzuty
Parter
Piętro
Przekrój
Usytuowanie na działce
Dane techniczne
- Powierzchnia użytkowa104.1 m²
- Powierzchnia zabudowy74.9 m²
- KominekTak
- Liczba łazienek2
- Liczba pokoi5
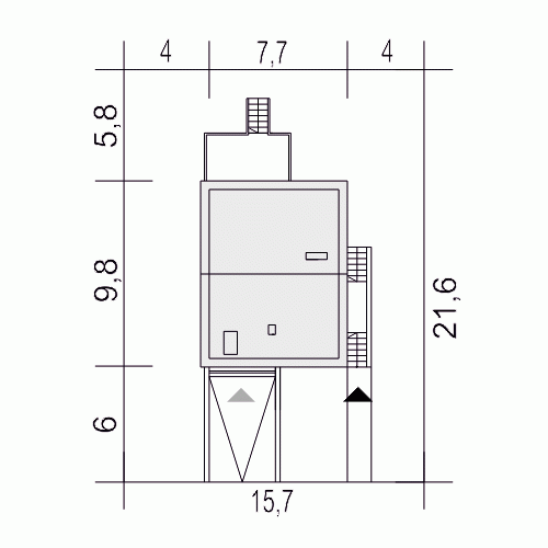
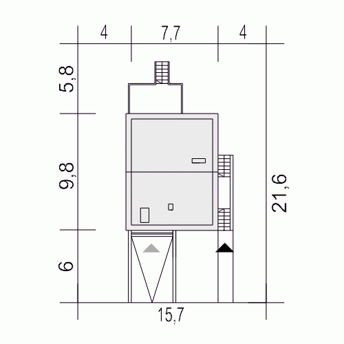
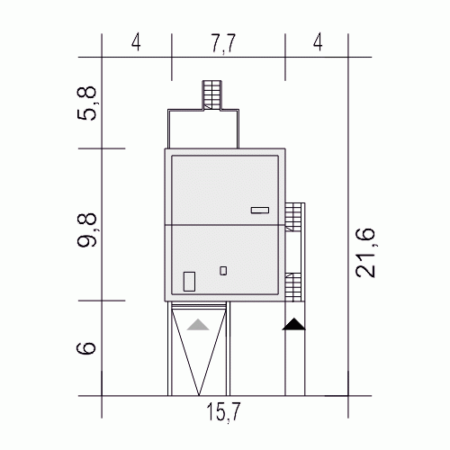
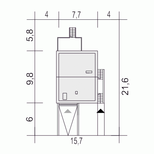
- Powierzchnia dachu97 m²
- Kubatura386 m³
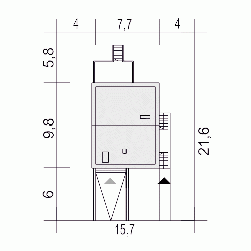
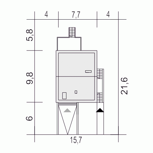
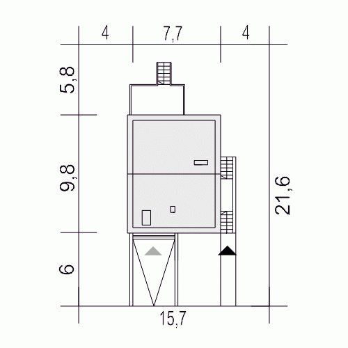
- Długość domu9.8 m
- Szerokość domu7.7 m
- Wysokość domu9.8 m
- Minimalne wymiary działki21.6 x 15.7m
- GarażJednostanowiskowy
- Rodzaj dachuDwuspadowy
- Kąt nach. dachu40°
Instalacja grzewcza
- Instalacja grzewczaGaz
Zawartość projektu
Zgodnie ze znowelizowaną Ustawą Prawo Budowlane art.34 ust.3, na projekt budowlany składają się trzy części:
- projekt zagospodarowania działki lub terenu
- projekt architektoniczno-budowlany
- projekt techniczny
Nasze projekty oferujemy w 3 egzemplarzach, zawierających projekt architektoniczno-budowlany i projekt techniczny. Projekt zagospodarowania działki lub terenu nie wchodzi w skład projektu oferowanego do sprzedaży. Projekt ten należy zlecić we własnym zakresie lokalnemu projektantowi, który opracuje go na podstawie danych zawartych w projekcie architektoniczno-budowlanym i technicznym, po dostosowaniu projektu do warunków lokalnych i wymagań inwestora.
UWAGA: wszystkie egzemplarze projektu zabezpieczone są hologramami, w części rysunkowej posiadają nadruki zabezpieczające w kolorze zielonym. Zalecamy aby po otrzymaniu przesyłki kontrolować czy na pierwszych stronach projektu znajduje się hologram i czy na rysunkach widoczne są w/w nadruki potwierdzające oryginalność projektu.
Wyrażamy zgodę na wszelkie zmiany zgodne z obowiązującymi przepisami pod warunkiem wprowadzenia ich przez uprawnioną osobę.
Wszystkie zmiany wymienione powyżej powinny być naniesione na oryginał projektu katalogowego trwałą techniką graficzną w kolorze czerwonym lub dołączone jako aneks i podpisane przez osobę uprawnioną dokonująca adaptacji.
**ważne informacje
Projekt w fazie koncepcji dostępny z wydłużonym terminem realizacji. Przy zamówieniu ustalamy termin i pobieramy zadatek 50% podstawowej ceny projektu (jako koszty usługi przygotowania dokumentacji do standardu projektu gotowego, w przypadku rezygnacji z usługi, zadatek nie podlega zwrotowi).
Cena za dodatkowy egzemplarz projektu jest zależna od nazwy projektu!
Dodatki
Bezpłatne dodatki
GratisZestaw umów
GratisZmiany w projekcie
GratisTablica budowy
GratisDziennik budowy
Płatne dodatki

Kosztorys - stan wykończony
540 zł

Projekt wentylacji mechanicznej
1 000 zł















