Projekt domu HAGA dom letniskowy na zgłoszenie do 35m2
- Typ projektuLetniskowy
- Powierzchnia użytkowa16.61 m²
- Kondygnacje
- GarażBez garażu
- DachDwuspadowy
- Kąt nach. dachu30°
- Odbicie lustrzaneTak
- Czas realizacjido 10 dni roboczych Zobacz więcej >
Opis
Zgodność z WT 2021 i Eurokodami
Ze względu na dostosowywanie projektu do standardu WT 2021, czas realizacji może się różnić od standardowego.
Skontaktuj się z nami aby poznać szczegóły dotyczące wybranego projektu.
Opis projektu
Haga - mały domek letniskowy
Zdecydują się na niego wszyscy, którzy nie mają wielkich wymagań, chcą jedynie spokoju i zasłużonego wypoczynku w zaciszu. Dostępność projektu w wersji z obiciem drewnianym sprawia, że z pewnością świetnie będzie się prezentował poza miastem. Drewniana weranda oraz ciepły kolor ścian są idealnym połączeniem, dachówka, pokrywająca dwuspadowy dopełnia całości. Uwagę zwracają wieńczące go spiczaste wykończenia oraz weranda zachęcająca gości do wejścia. Przyjaźnie i z rozwagą zaprojektowane wnętrze, na które składają się: wiatrołap, jadalnia, pokój dzienny wyposażony w miejsce na kominek oraz łazienka dopełniająca całości. Haga to kompletny budynek, w którym znajdziemy wszystko, co do komfortowego wypoczynku konieczne.
Dostępność projektu w wersji standardowej i w obiciu drewnianym ścian sprawia, że Haga jest warta rozwagi Inwestora.
Projekt składa się z części architektonicznej, konstrukcyjnej, wewnętrznych instalacji sanitarnych i instalacji elektrycznej. W projekcie załączone są podstawowe zestawienie stali, drewna i stolarki okienno-drzwiowej. Do projektu dołączamy bezpłatną zgodę na wprowadzenie zmian, oświadczenie projektantów o wykonaniu projektu zgodnie z obowiązującymi normami i przepisami oraz kserokopie uprawnień projektantów wraz z aktualnym wpisem do izby. W przypadku zamówienia projektu w technologii lekkiej, drewnianej konstrukcji szkieletowej, powierzchnia użytkowa budynku jest o około 7% większa.
Konstrukcja
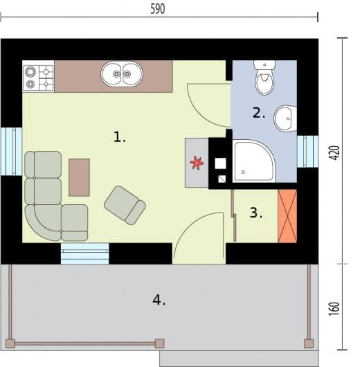
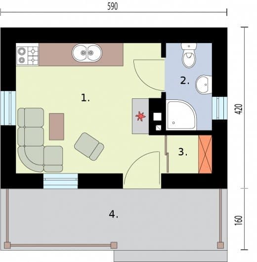
- powierzchnia zabudowy - 24,78m2
- kubatura - 106,00m3
- ściany zewnętrzne murowane grubości 30 cm + 10 cm styropian
- ściany wewnętrzne działowe gr. 12 cm
- wszystkie ściany wykonane z pustaków ceramicznych "POROTHERM"
- sufit podwieszany z płyt GK na ruszcie stalowym przymocowanym do konstrukcji za pomocą wieszaków
- konstrukcja więźby dachowej drewniana w układzie krokwiowym
- pokrycie dachówka ceramiczna
- instalacja grzewcza: ogrzewanie elektryczne
Rzuty
Rzut przyziemia
Dane techniczne
- Powierzchnia użytkowa16.61 m²
- Powierzchnia zabudowy34.22 m²
- Liczba pokoi3
- Powierzchnia dachu56 m²
- Kubatura106 m³
- Wysokość domu5.12 m
- Minimalne wymiary działki13.9 x 12.8m
- GarażBez garażu
- Rodzaj dachuDwuspadowy
- Kąt nach. dachu30°
Zawartość projektu
Projekty są dostępne w wersji książkowej, drukowanej w tak zwanym w nowym trybie 3 egzemplarze projektu architektoniczno-budowlanego oraz 3 egzemplarze projektu technicznego. Na życzenie przesyłamy rzuty i przekroje wersji podstawowych dokumentacji w formacie PDF
Każdy projekt architektoniczno-budowlany domu składa się z następujących części:
- strona tytułowa,
- oświadczenie
- część opisowa projektu architektoniczno-budowlanego,
- projektowana charakterystyka energetyczna z analizą,
- część rysunkowej projektu architektoniczno-budowlanego,
- zaświadczenia i uprawnienia.
Każdy projekt techniczny domu składa się z:
- strony tytułowej,
- oświadczenia,
- części opisowej projektu technicznego,
- części rysunkowej projektu technicznego,
- części konstrukcyjnej,
- zaświadczenia i uprawnień,
- zestawień drewna i stali,
-instalacji elektrycznej i odgromowej,
-instalacji sanitarnych, gazowych i centralnego ogrzewania.
Do projektu na życzenie dołączamy obliczenia statyczno-wytrzymałościowe.
Inwestor otrzymuje 3 opieczętowane sztuki projektu architektoniczno-budowlanego oraz 3 egzemplarze projektu technicznego tworzące komplet, każdy z plombą zabezpieczającą i oryginalnym hologramem biura.
Pierwszy egzemplarz tomu I zawiera zgodę in blanco na wszystkie zmiany wprowadzane do projektu po zakupie przez lokalnego wybranego na własną rękę przez Inwestora architekta adaptującego/kierownika budowy. Do teczki projektów dołączamy także zaświadczenia i aktualne wpisy do Izb autorów projektu oraz wpisy aktualne na czas sporządzenia projektu.
Dodatki
Bezpłatne dodatki
GratisZestaw umów
GratisZmiany w projekcie
GratisTablica budowy
GratisDziennik budowy
Płatne dodatki

Kosztorys
470 zł

Dodatkowy egzemplarz projektu
450 zł

Projekt wentylacji mechanicznej z rekuperatorem
450 zł

Projekt fotowoltaiki dla domu
750 zł

Projekt instalacji z ogrzewaniem podłogowym
400 zł

Elektroniczna wersja projektu
600 zł









