- Typ projektuWolnostojący
- StylNowoczesny
- Powierzchnia użytkowa118.2 m²
- KondygnacjeParterowy, z poddaszem
- GarażDwustanowiskowy
- DachCzterospadowy
- Odbicie lustrzaneTak
- Czas realizacjimax. czas realizacji 10 dni Zobacz więcej >
Opis
Zgodność z WT 2021 i Eurokodami
Ze względu na dostosowywanie projektu do standardu WT 2021, czas realizacji może się różnić od standardowego.
Skontaktuj się z nami aby poznać szczegóły dotyczące wybranego projektu.
Opis projektu
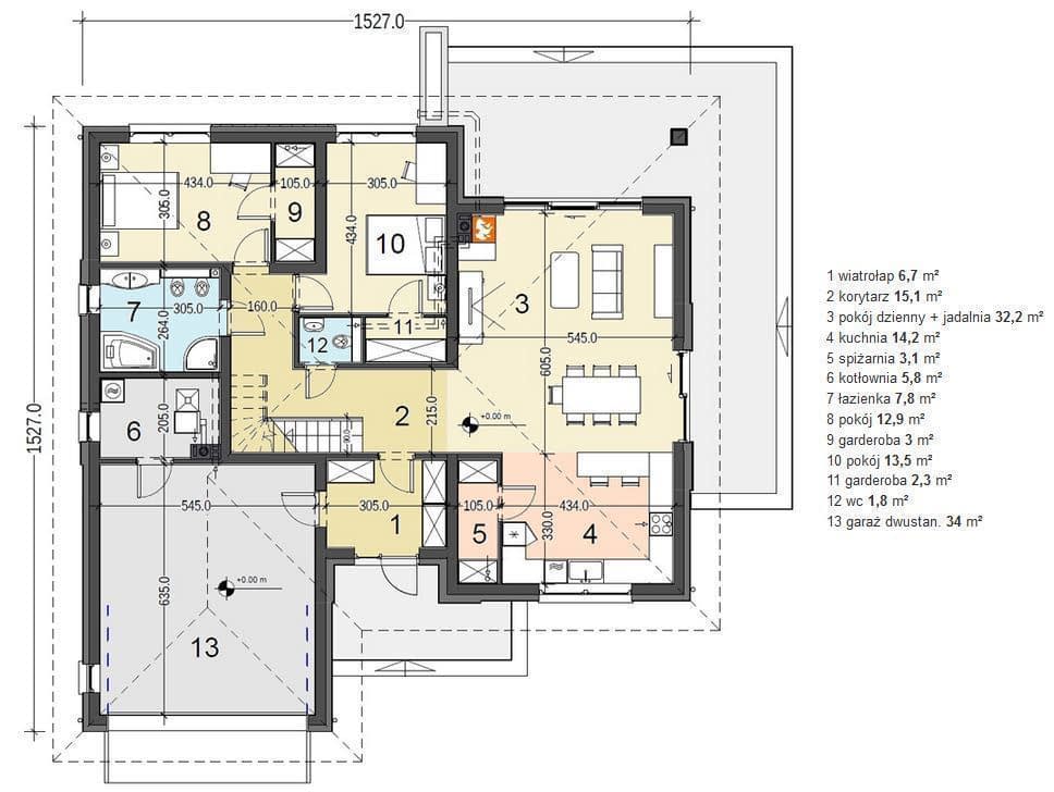
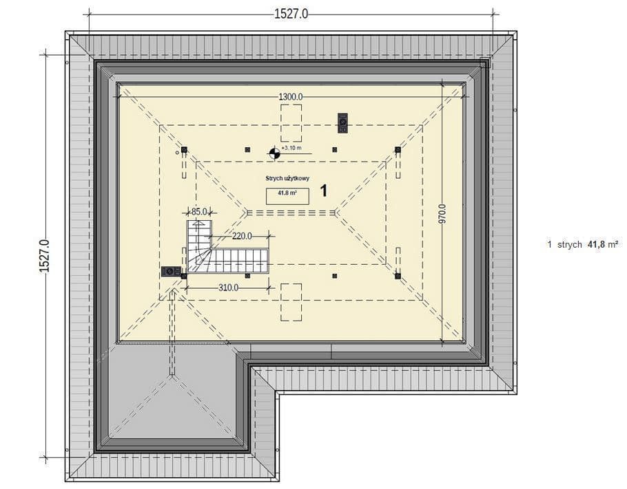
Heros 3 z garażem dwustanowiskowym to prosty w formie dom o przyjemnej dla oka architekturze, stanowiący idealny wybór dla niedużej współczesnej rodziny typu 2+1 lub 2+2. Czytelny układ funkcjonalny zapewni wysoki komfort mieszkania, poprzez podział na strefy oraz izolację kolidujących ze sobą funkcji. Heros 3 zagwarantuje także miejsce garażowe dla dwóch pojazdów dzięki czemu sprosta oczekiwaniom zmotoryzowanej rodziny. Dodatkowo został zaprojektowany obszerny, użytkowy strych nad parterem, wejście na tą kondygnacje można zapewnić przez schody drewniane usytuowane w przestrzeni korytarza - wersja opcjonalna. Przestrzeń strychu można również w razie potrzeby zaadaptować na pomieszczenia mieszkalne. Budynek stanowi kompromis tradycyjnej formy, współczesnej estetyki oraz regionalnych materiałów, takich jak cegła klinkierowa, naturalne drewno czy szlachetna dachówka ceramiczna. Ponadczasowa architektura tego średniej wielkości domu sprawia, że z łatwością wpisze się w niemal każdy krajobraz.
Konstrukcja
Posadowienie bezpośrednie na zbrojonych ławach i stopach fundamentowych wykonanych z betonu B 20. Ściany fundamentowe: murowane z bloczków betonowych M6. Ściany zewnętrzne: bloczki gazobetonowe gr. 25cm na zaprawie systemowej, ciepłochronnej, ocieplony styropianem fasadowym gr. 15cm. Do ocieplenia budynku zaprojektowano użycie styropianu grafitowego gr. 15 cm, o współczynniku „lambda” nie przekraczającym 0,035 W(mK) i „oporze cieplnym” nie mniejszym niż Rd – 4,0 m2k/W. Zastosowanie materiałów budowlanych (ocieplenie ścian, dachu, podłogi na gruncie, okien i drzwi zewnętrznych) użytych w projekcie odpowiada nowym wymaganiom obowiązującym od stycznia 2021 roku (WT2021). Ściany nośne wewnętrzne: bloczki gazobetonowe gr. 25cm na zaprawie cementowo-wapiennej lub systemowej. Ściany wewnętrzne działowe: bloczki gazobetonowe gr. 12cm. Strop gęstożebrowy z wypełnieniem pustakami betonowymi, zalewany wraz z wieńcami betonem B 20. Konstrukcja dachu: drewniana, drewno klasy C24, więźba dachowa o układzie krokwiowo-płatwiowym, z podparciem płatwi słupami, pochylenie połaci dachowych 30 stopni. Budynek, w wersji podstawowej, jest zaprojektowany z pomieszczeniem kotłowni wyposażonej w kocioł ekologiczny na paliwo stałe „pellet” i spełnia wszystkie wymagania dotyczące WT2021. Na etapie adaptacji projektu jest możliwość zaprojektowania ogrzewania gazowego ze wspomaganiem instalacją solarną lub ogrzewania nowoczesną pompa ciepła typu powietrze – woda. Projekt pod względem konstrukcyjnym spełnia normy zgodne z Eurokodami.
Rzuty
Dane techniczne
- Powierzchnia użytkowa118.2 m²
- Powierzchnia zabudowy191.4 m²
- Liczba pokoi3
- Kubatura418.5 m³
- Wysokość domu7.19 m
- Minimalne wymiary działki23.27 x 23.27m
- GarażDwustanowiskowy
- Rodzaj dachuCzterospadowy
Instalacja grzewcza
- Instalacja opcjonalna
Zawartość projektu
* ważne informacje
Każda wersja standardowa projektu została zaprojektowana pod ogrzewanie za pomocą kotła na Pellet.
W przypadku zmiany wersji ogrzewania np:
- gaz + solar to dodatkowo 350 zł do ceny projektu,
- pompa ciepła powietrze-woda + ogrzewanie podłogowe to dodatkowo 350 zł do ceny projektu.
Dodatki
Bezpłatne dodatki
GratisZestaw umów
GratisZmiany w projekcie
GratisTablica budowy
GratisDziennik budowy












