- Typ projektuWolnostojący
- Powierzchnia użytkowa99.8 m²
- Kondygnacje
- GarażBez garażu
- DachDwuspadowy
- Kąt nach. dachu35°
- Odbicie lustrzaneTak
- Czas realizacjimax 7-10 dni roboczych Zobacz więcej >
Opis
Zgodność z WT 2021 i Eurokodami
Ze względu na dostosowywanie projektu do standardu WT 2021, czas realizacji może się różnić od standardowego.
Skontaktuj się z nami aby poznać szczegóły dotyczące wybranego projektu.
Konstrukcja
Strop: żelbetowy wylewany
Ściany: dwuwarstwowe - pustak ceramiczny 25 cm + styropian Termo Organika 20 cm/wełna mineralna 18 cm
Dach: tradycyjna więźba dachowa pokryta dachówką ceramiczną lub cementową swissporTON
Elewacja: tynk silikonowy połączony z deskami elewacyjnymi - modrzew syberyjski
Ogrzewanie: gazowe - piec kondensacyjny oraz ogrzewanie podłogowe w salonie z jadalnią, kuchni, łazience, toalecie, pralni, wiatrołapie i części komunikacyjnej, tradycyjne grzejniki w pozostałych pomieszczeniach
Wentylacja: mechaniczna z rekuperacją
Rzuty
Usytuowanie na działce
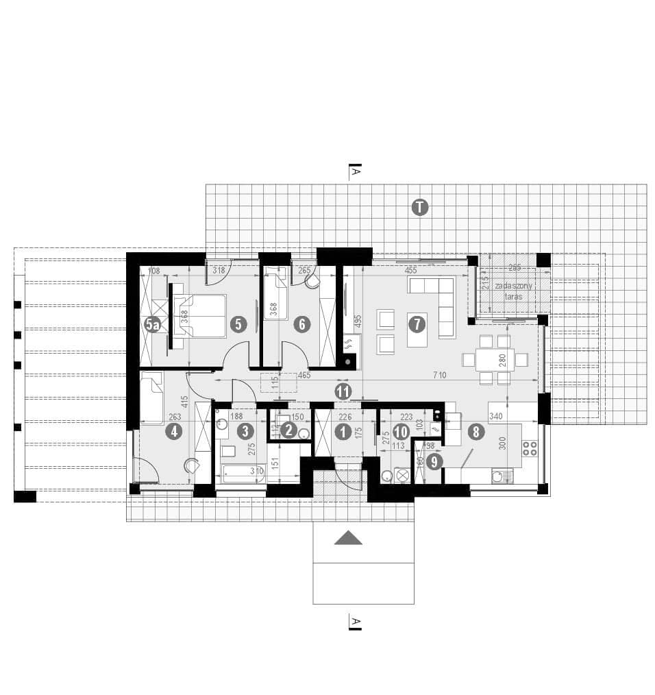
Rzut parteru
- m²
- taras66.63
- łazienka7.22
- kuchnia10.2
- toaleta1.68
- garderoba3.97
- sypialnia10.91
- sypialnia11.7
- salon/jadalnia29.37
- komunikacja5.35
- kotłownia/pralnia4.12
- spiżarnia1.57
- sypialnia9.75
- wiatrołap 3.96
przekrój
Dane techniczne
- Powierzchnia użytkowa99.8 m²
- KominekTak
- Liczba łazienek2
- Powierzchnia dachu204 m²
- Kubatura772 m³
- Długość domu9.25 m
- Szerokość domu21.5 m
- Minimalne wymiary działki16.87 x 25m
- GarażBez garażu
- Rodzaj dachuDwuspadowy
- Kąt nach. dachu35°
Zawartość projektu
Trzy egzemplarze projektu, w skład którego wchodzą:
Projekt Architektoniczny:
- opis techniczny,
- rzuty poziome poszczególnych kondygnacji (parter, poddasze lub piętro),
- rzut dachu i więźby dachowej,
- wszystkie niezbędne przekroje przez całość oraz charakterystyczne fragmenty budynku,
- opisy przegród,
- elewacje budynku wraz ze szczegółowym opisem i kolorystyką użytych materiałów,
- wykaz stolarki okiennej i drzwiowej,
- zestawienie elementów więźby dachowej.
Projekt Techniczny, w skład którego wchodzą:
Projekt Konstrukcji:
- wyciąg z obliczeń statyczno – wytrzymałościowych,
- dokumentacja rysunkowa – konstrukcja,
- zestawienie stali zbrojeniowej.
Projekt wewnętrznych instalacji sanitarnych i gazowych:
- opis techniczny instalacji centralnego ogrzewania wraz z obliczeniami,
- charakterystyka energetyczna budynku,
- analiza porównawcza dla alternatywnego systemu ogrzewania,
- opis techniczny instalacji wodno-kanalizacyjnej oraz instalacji gazowej,
- dokumentacja rysunkowa – instalacje sanitarne i gazowe.
Projekt wewnętrznych instalacji elektrycznych:
- opis techniczny instalacji elektrycznych,
- dokumentacja rysunkowa – instalacje elektryczne,
- rzuty kondygnacji – rozmieszczenie instalacji elektrycznej,
- schemat tablicy bezpiecznikowej,
- instalacja odgromowa.
Standardowy zakres zmian obejmuje:
- zmiana materiałów ściennych i izolacyjnych – przy zachowaniu odpowiedniej wytrzymałości i ciepłochronności,
- zmiana rodzaju stropów przy zachowaniu układu konstrukcyjnego oraz wymaganej wytrzymałości oraz izolacji akustycznej,
- zmiana materiałów wykończeniowych: posadzek, tynków, pokrycia dachu, izolacji przy zachowaniu niezbędnych parametrów wytrzymałości oraz parametrów przenikania ciepła,
- zmiana kolorystyki i wykończenia elewacji,
- zmiana zewnętrznych wymiarów budynku w granicach do 5% z zachowaniem wymiarów rozpiętości konstrukcji wynikających ze zmian materiałowych konstrukcji i izolacji termicznej ścian zewnętrznych,
- zmiana wymiarów fundamentów wynikająca z dostosowania obiektu do warunków gruntowych i głębokości przemarzania gruntu oraz zmiana ław na płytę fundamentową
- zmiana wymiarów przekrojów lub rozstawu elementów więźby dachowej wynikająca z dostosowania konstrukcji dachu budynku do odpowiedniej strefy obciążenia śniegiem i wiatrem,
- zmiana kąta nachylenia połaci dachu max. o 10° oraz wysięgu okapów,
- zmiana wielkości i kształtu tarasu lub rezygnacja z niego,
- zmiana rozwiązań funkcjonalnych wewnątrz budynku polegająca na przesunięciu lub likwidacji ścian działowych,
- zmiana lokalizacji, ilości i kształtu okien oraz drzwi przy zachowaniu charakteru i estetyki elewacji oraz wymaganej izolacyjności,
- wprowadzenie częściowego lub całkowitego podpiwniczenia budynku – po dokonaniu dodatkowych obliczeń konstrukcyjnych,
- zmiany w projektach instalacji wodno-kanalizacyjnej, gazowej, c.o., elektrycznej, przy zachowaniu obowiązujących norm i przepisów, a wynikające ze zmian materiałowych, typów dobranych urządzeń i dostępności mediów na działce budowlanej,
- zmiana sposobu wentylacji budynku z wentylacji grawitacyjnej na wentylację mechaniczną (lub odwrotnie) oraz zmiana źródła ciepła po dokonaniu dodatkowych opracowań.
Dodatki
Bezpłatne dodatki
GratisZestaw umów
GratisZmiany w projekcie
GratisTablica budowy
GratisDziennik budowy
Płatne dodatki

Kosztorys inwestorski
490 zł

Dodatkowy egzemplarz projektu
490 zł

Projekt ogrzewania pompą ciepła
840 zł

Projekt szamba
390 zł

Projekt wentylacji grawitacyjnej
540 zł
Pakiet HOME
1 459 zł690 zł
Pakiet PREMIUM
4 189 zł1 690 zł

Rysunki elewacji w DWG
590 zł

Zestaw rysunków DWG +
990 zł

Uproszczone pliki DWG
590 zł

Projekt kominka z płaszczem wodnym
490 zł













