- Typ projektuWolnostojący
- Powierzchnia użytkowa93.82 m²
- KondygnacjePiętrowy
- GarażJednostanowiskowy
- DachPłaski
- Odbicie lustrzaneNie
- Czas realizacjimax 7-10 dni roboczych Zobacz więcej >
Opis
Zgodność z WT 2021 i Eurokodami
Ze względu na dostosowywanie projektu do standardu WT 2021, czas realizacji może się różnić od standardowego.
Skontaktuj się z nami aby poznać szczegóły dotyczące wybranego projektu.
Konstrukcja
Strop: żelbetowy wylewany
Ściany: dwuwarstwowe - pustak ceramiczny 25 cm + styropian Termo Organika 20 cm/wełna mineralna 18 cm
Dach: stropodach pełny kryty membraną EPDM
Elewacja: tynk silikonowy w połączeniu z deską elewacyjną - modrzew syberyjski
Ogrzewanie: gazowe - piec kondensacyjny, panele solarne na dachu do ogrzewania wody użytkowej oraz ogrzewanie podłogowe w salonie, jadalni, kuchni, łazience, toalecie, pralni, wiatrołapie i części komunikacyjnej, tradycyjne grzejniki w pozostałych pomieszczeniach
Wentylacja: grawitacyjna
Rzuty
Usytuowanie na działce
Rzut parteru
rzut piętra
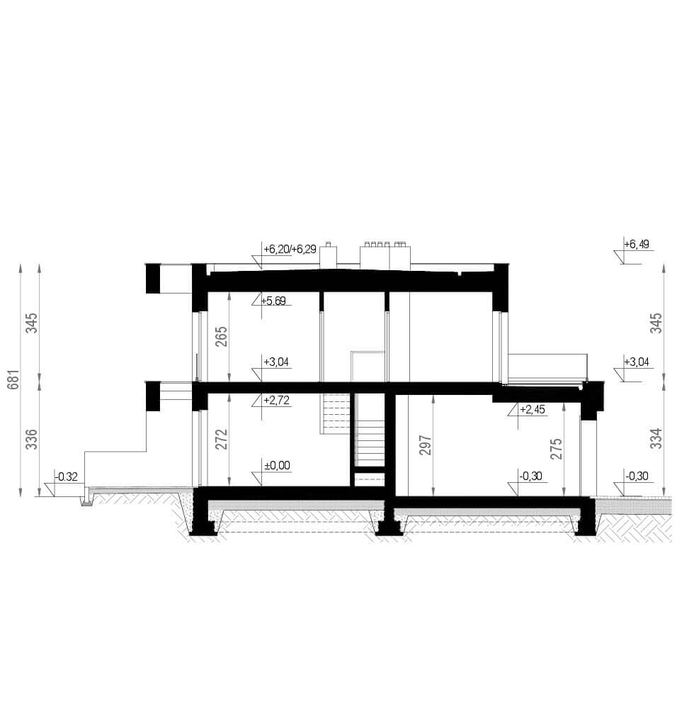
przekrój
Dane techniczne
- Powierzchnia użytkowa93.82 m²
- KominekTak
- Liczba łazienek2
- Powierzchnia dachu233 m²
- Kubatura1984.5 m³
- Długość domu15.2 m
- Szerokość domu28.83 m
- Minimalne wymiary działki21 x 36.43m
- GarażJednostanowiskowy
- Rodzaj dachuPłaski
Zawartość projektu
Trzy egzemplarze projektu, w skład którego wchodzą:
Projekt Architektoniczny:
- opis techniczny,
- rzuty poziome poszczególnych kondygnacji (parter, poddasze lub piętro),
- rzut dachu i więźby dachowej,
- wszystkie niezbędne przekroje przez całość oraz charakterystyczne fragmenty budynku,
- opisy przegród,
- elewacje budynku wraz ze szczegółowym opisem i kolorystyką użytych materiałów,
- wykaz stolarki okiennej i drzwiowej,
- zestawienie elementów więźby dachowej.
Projekt Techniczny, w skład którego wchodzą:
Projekt Konstrukcji:
- wyciąg z obliczeń statyczno – wytrzymałościowych,
- dokumentacja rysunkowa – konstrukcja,
- zestawienie stali zbrojeniowej.
Projekt wewnętrznych instalacji sanitarnych i gazowych:
- opis techniczny instalacji centralnego ogrzewania wraz z obliczeniami,
- charakterystyka energetyczna budynku,
- analiza porównawcza dla alternatywnego systemu ogrzewania,
- opis techniczny instalacji wodno-kanalizacyjnej oraz instalacji gazowej,
- dokumentacja rysunkowa – instalacje sanitarne i gazowe.
Projekt wewnętrznych instalacji elektrycznych:
- opis techniczny instalacji elektrycznych,
- dokumentacja rysunkowa – instalacje elektryczne,
- rzuty kondygnacji – rozmieszczenie instalacji elektrycznej,
- schemat tablicy bezpiecznikowej,
- instalacja odgromowa.
Standardowy zakres zmian obejmuje:
- zmiana materiałów ściennych i izolacyjnych – przy zachowaniu odpowiedniej wytrzymałości i ciepłochronności,
- zmiana rodzaju stropów przy zachowaniu układu konstrukcyjnego oraz wymaganej wytrzymałości oraz izolacji akustycznej,
- zmiana materiałów wykończeniowych: posadzek, tynków, pokrycia dachu, izolacji przy zachowaniu niezbędnych parametrów wytrzymałości oraz parametrów przenikania ciepła,
- zmiana kolorystyki i wykończenia elewacji,
- zmiana zewnętrznych wymiarów budynku w granicach do 5% z zachowaniem wymiarów rozpiętości konstrukcji wynikających ze zmian materiałowych konstrukcji i izolacji termicznej ścian zewnętrznych,
- zmiana wymiarów fundamentów wynikająca z dostosowania obiektu do warunków gruntowych i głębokości przemarzania gruntu oraz zmiana ław na płytę fundamentową
- zmiana wymiarów przekrojów lub rozstawu elementów więźby dachowej wynikająca z dostosowania konstrukcji dachu budynku do odpowiedniej strefy obciążenia śniegiem i wiatrem,
- zmiana kąta nachylenia połaci dachu max. o 10° oraz wysięgu okapów,
- zmiana wielkości i kształtu tarasu lub rezygnacja z niego,
- zmiana rozwiązań funkcjonalnych wewnątrz budynku polegająca na przesunięciu lub likwidacji ścian działowych,
- zmiana lokalizacji, ilości i kształtu okien oraz drzwi przy zachowaniu charakteru i estetyki elewacji oraz wymaganej izolacyjności,
- wprowadzenie częściowego lub całkowitego podpiwniczenia budynku – po dokonaniu dodatkowych obliczeń konstrukcyjnych,
- zmiany w projektach instalacji wodno-kanalizacyjnej, gazowej, c.o., elektrycznej, przy zachowaniu obowiązujących norm i przepisów, a wynikające ze zmian materiałowych, typów dobranych urządzeń i dostępności mediów na działce budowlanej,
- zmiana sposobu wentylacji budynku z wentylacji grawitacyjnej na wentylację mechaniczną (lub odwrotnie) oraz zmiana źródła ciepła po dokonaniu dodatkowych opracowań.
Dodatki
Bezpłatne dodatki
GratisZestaw umów
GratisZmiany w projekcie
GratisTablica budowy
GratisDziennik budowy
Płatne dodatki

Kosztorys inwestorski
450 zł

Dodatkowy egzemplarz projektu
450 zł

Projekt ogrzewania pompą ciepła
840 zł

Projekt szamba
340 zł

Projekt wentylacji grawitacyjnej
490 zł
Pakiet HOME
1 379 zł590 zł
Pakiet PREMIUM
4 019 zł1 290 zł

Dodatkowy egzemplarz projektu garażu
250 zł

Rysunki elewacji w DWG
590 zł

Zestaw rysunków DWG +
990 zł

Uproszczone pliki DWG
590 zł














