- Typ projektuWolnostojący
- StylNowoczesny
- Powierzchnia użytkowa158.14 m²
- KondygnacjeParterowy
- GarażBez garażu
- DachDwuspadowy
- Odbicie lustrzaneTak
- Czas realizacji7 dni Zobacz więcej >
Opis
Zgodność z WT 2021 i Eurokodami
Ze względu na dostosowywanie projektu do standardu WT 2021, czas realizacji może się różnić od standardowego.
Skontaktuj się z nami aby poznać szczegóły dotyczące wybranego projektu.
Opis projektu
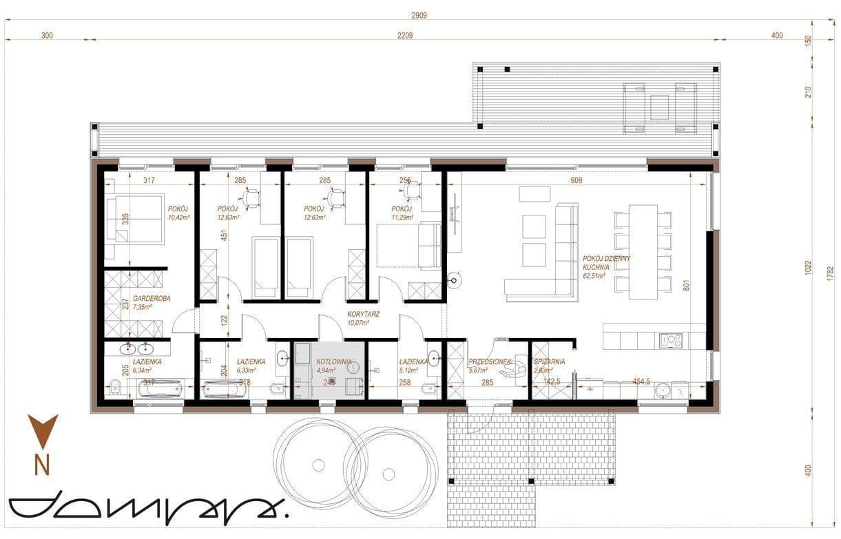
House 25 to projekt domu parterowego cechujący się prostotą wynikającą z zaprojektowanego rzutu regularnego prostokąta oraz układu funkcjonalnego. Stylistykę zewnętrzną podkreśliliśmy materiałami wykończeniowymi: deskami w kolorze szarym, blachą na rąbek elewacji wejściowej oraz pokrycia dachu i dużymi szkleniami elewacji ogrodowej, które otwierają dom na część ogrodową.
Układ przestrzenny projektu domu wyraźnie dzieli dom na dwie części: ogólną dzienną i prywatną z czterema pokojami oraz pomieszczeniami pomocniczymi. Zastosowane rozwiązania konstrukcyjne pozwalają na realizację części dziennej wysokiej do kalenicy dachu, co podkreśli jej przestrzeń oraz uczyni wnętrze atrakcyjnym zarówno funkcjonalnie , jak i pod względem aranżacji wnętrz. W części prywatnej brak wewnętrznych ścian konstrukcyjnych wspomaga łatwe dostosowanie zaprojektowanego układu funkcjonalnego do potrzeb własnych bez konieczności poważnych zmian konstrukcyjnych budynku.
Rzuty
Dane techniczne
- Powierzchnia użytkowa158.14 m²
- Powierzchnia zabudowy225.75 m²
- Liczba łazienek3
- Liczba pokoi5
- Długość domu10.22 m
- Szerokość domu22.09 m
- Wysokość domu6.485 m
- Minimalne wymiary działki17.82 x 29.09m
- GarażBez garażu
- Rodzaj dachuDwuspadowy
Instalacja grzewcza
- Instalacja opcjonalna
Zawartość projektu
Projekt budowlany - zawartość dokumentacji.
Autor projektu upoważnia bezterminowo projektantów posiadających wystarczające [w odniesieniu do zakresu i przeznaczenia projektu] i wymagane przepisami uprawnienia, działających z wyboru Inwestora, do wprowadzenia zmian i włączenie ich w skład pełnej dokumentacji projektu architektoniczno-budowlanego, podpisywanej przez tego projektanta [adaptacji projektu]. Autor projektu upoważnia projektantów, o których mowa powyżej do dokonywania przez tych projektantów i na ich odpowiedzialność następujących zmian w projekcie:
- realizacji budynku w lustrzanym odbiciu;
- zmiana materiałów budowlanych elementów konstrukcyjnych budynku tj. fundamenty, ściany, stropy, schody, więźba dachowa pod warunkiem zachowania bezpieczeństwa konstru
- zmiana usytuowania wewnętrznych ścian konstrucyjnych i niekonstrukcyjnych pod warunkiem zachowania bezpieczeństwa konstrukcji;
- zmiana wymiarów zewnętrznych budynku w zakresie 5%;
- zmiana kąta nachylenia dachu w zakresie 5%;
- podpiwniczenie budynku w całości lub części;
- zmiana usytuowania i geometrii schodów wewnętrznych;
- zmiana usytuowania ścian działowych i wewnętrznych otworów drzwiowych;
- zmiana wewnętrznych instalacji saniatrnych i elektrycznych z dostosowaniem ich do warunków przyłączenia oraz aranżacji wnętrz;
- zmiana źródła ciepła oraz instalacji centralnego ogrzewania z dostosowaniem jej do warunków przyłączenia, lokalnych możliwości oraz aranżacji wnętrz;
- zmiany sposobu wentylacji budynku, a w przypadku rezygnacji z realizacji instalacji wentylacji mechanicznej z odzyskiem ciepła wyraża się zgodę na doprojektowanie kominów wentylacyjnych;
Dodatki
Bezpłatne dodatki
GratisZestaw umów
GratisZmiany w projekcie
GratisTablica budowy
GratisDziennik budowy





