- Typ projektuWolnostojący
- StylTradycyjny
- Powierzchnia użytkowa224.7 m²
- KondygnacjeParterowy, Piętrowy
- GarażDwustanowiskowy
- DachDwuspadowy
- Odbicie lustrzaneTak
- Czas realizacji7 dni Zobacz więcej >
Opis
Zgodność z WT 2021 i Eurokodami
Ze względu na dostosowywanie projektu do standardu WT 2021, czas realizacji może się różnić od standardowego.
Skontaktuj się z nami aby poznać szczegóły dotyczące wybranego projektu.
Opis projektu
Budynek będący kompozycją przestronnego nowoczesnego wnętrza i tradycyjnej formy wpisującej się w otoczenie. Przestrzeń zaplanowana na dwóch kondygnacjach w sposób naturalny wydzielając strefę dzienną i nocną.
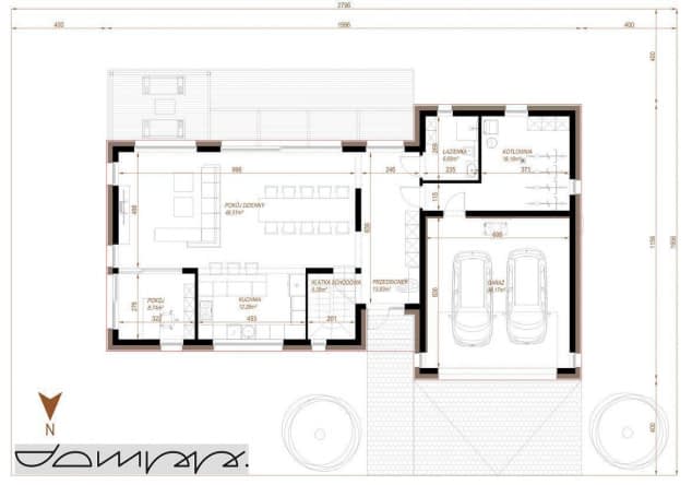
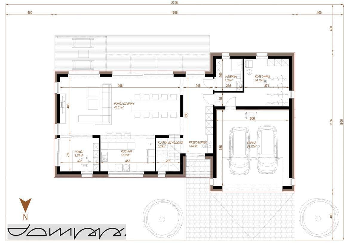
Parter budynku z wyraźnie wyodrębnioną częścią gospodarczą obejmującą garaż dwustanowiskowy i kotłownię zaplanowany został na rzucie prostokąta.
Powierzchnia dzienna zaprojektowana na rzucie prostokąta mieści pokój dzienny z dużymi szkleniami otwierającymi przestrzeń na ogród, od strony frontowej domu uzupełnienie stanowi klatka schodowa, półotwarta kuchnia oraz gabinet.
Na poddaszu zaprojektowaliśmy sypialnię główną z dużym oknem oraz garderobą, dwie dodatkowe sypialnie z niewielkim przynależnymi garderobami, wolną powierzchnię do wykorzystania jako bawialnia, biblioteka oraz pralnię i łazienkę. Poziom poddasza z uwagi na brak elementów konstrukcyjnych umożliwia modyfikację układu funkcjonalnego stosownie do potrzeb.
Rzuty
Dane techniczne
- Powierzchnia użytkowa224.7 m²
- Powierzchnia zabudowy195.91 m²
- Liczba łazienek2
- Liczba pokoi5
- Długość domu11.56 m
- Szerokość domu19.96 m
- Wysokość domu8.95 m
- Minimalne wymiary działki19.56 x 27.96m
- GarażDwustanowiskowy
- Rodzaj dachuDwuspadowy
Instalacja grzewcza
- Instalacja opcjonalna
Zawartość projektu
Projekt budowlany - zawartość dokumentacji.
Autor projektu upoważnia bezterminowo projektantów posiadających wystarczające [w odniesieniu do zakresu i przeznaczenia projektu] i wymagane przepisami uprawnienia, działających z wyboru Inwestora, do wprowadzenia zmian i włączenie ich w skład pełnej dokumentacji projektu architektoniczno-budowlanego, podpisywanej przez tego projektanta [adaptacji projektu]. Autor projektu upoważnia projektantów, o których mowa powyżej do dokonywania przez tych projektantów i na ich odpowiedzialność następujących zmian w projekcie:
- realizacji budynku w lustrzanym odbiciu;
- zmiana materiałów budowlanych elementów konstrukcyjnych budynku tj. fundamenty, ściany, stropy, schody, więźba dachowa pod warunkiem zachowania bezpieczeństwa konstru
- zmiana usytuowania wewnętrznych ścian konstrucyjnych i niekonstrukcyjnych pod warunkiem zachowania bezpieczeństwa konstrukcji;
- zmiana wymiarów zewnętrznych budynku w zakresie 5%;
- zmiana kąta nachylenia dachu w zakresie 5%;
- podpiwniczenie budynku w całości lub części;
- zmiana usytuowania i geometrii schodów wewnętrznych;
- zmiana usytuowania ścian działowych i wewnętrznych otworów drzwiowych;
- zmiana wewnętrznych instalacji saniatrnych i elektrycznych z dostosowaniem ich do warunków przyłączenia oraz aranżacji wnętrz;
- zmiana źródła ciepła oraz instalacji centralnego ogrzewania z dostosowaniem jej do warunków przyłączenia, lokalnych możliwości oraz aranżacji wnętrz;
- zmiany sposobu wentylacji budynku, a w przypadku rezygnacji z realizacji instalacji wentylacji mechanicznej z odzyskiem ciepła wyraża się zgodę na doprojektowanie kominów wentylacyjnych;
Dodatki
Bezpłatne dodatki
GratisZestaw umów
GratisZmiany w projekcie
GratisTablica budowy
GratisDziennik budowy







