- Typ projektuBliźniak
- Powierzchnia użytkowa198.4 m²
- Kondygnacje
- GarażJednostanowiskowy
- DachDwuspadowy
- Kąt nach. dachu35°
- Odbicie lustrzaneTak
- Czas realizacjimax. czas realizacji 10 dni Zobacz więcej >
Opis
Zgodność z WT 2021 i Eurokodami
Ze względu na dostosowywanie projektu do standardu WT 2021, czas realizacji może się różnić od standardowego.
Skontaktuj się z nami aby poznać szczegóły dotyczące wybranego projektu.
Opis projektu
(Uwaga: projekty typu bliźniak oferujemy jako domy dwulokalowe, projekt można zamówić również w zabudowie bliźniaczej)Projekt domu Jukka to atrakcyjny dom dwulokalowy (bliźniak) z poddaszem użytkowym. Jest to dom idealny na typową działkę dla domów wolnostojących o szerokości 21m. To projekt domu prostego w formie, o niedużej powierzchni użytkowej - około 100 m2 na lokal (segment) - co przekłada się na niski koszt budowy i eksploatacji domu. Każdy segment projektu Jukka przeznaczony jest dla 4-5cio osobowej rodziny. W projekcie zastosowano tradycyjną konstrukcję z pustaków ceramicznych izolowanych styropianem. Dwuspadowy dach zaprojektowano jako podniesiony na ściankach kolankowych, o wysokości 1,14 m. Funkcja domu obejmuje część ogólnodostępną i prywatną, zgodnie z podziałem na parter i poddasze. W części ogólnodostępnej zaprojektowano część wejściową z wiatrołapem, holem, WC i schodami schodami prowadzącymi na poddasze. Na parterze mamy tez przewidziany wbudowany garaż. Od strony ogrodowej mamy przwidzainy ustawny salon z kominkiem i jadalnią, oraz wygodny aneks kuchenny. Część prywatna zlokalizowana na poddaszu, obejmuje przedpokój z którego dostaniemy się do 3 sypialni, wspólnej łazienki oraz pomieszczenia pralni z piecem gazowym c.o. Jukka w wariancie dwulokalowym (bliźniaczym), to projekt domu energooszczędnego, bardzo prostego w realizacji , idealnego zarówno dla inwestycji indywidualnych jak i dla inwestycji deweloperskich.
Konstrukcja
Rzuty
Parter
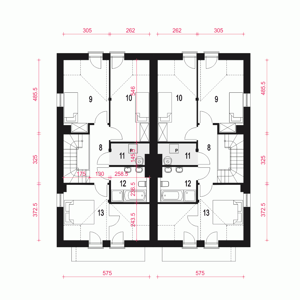
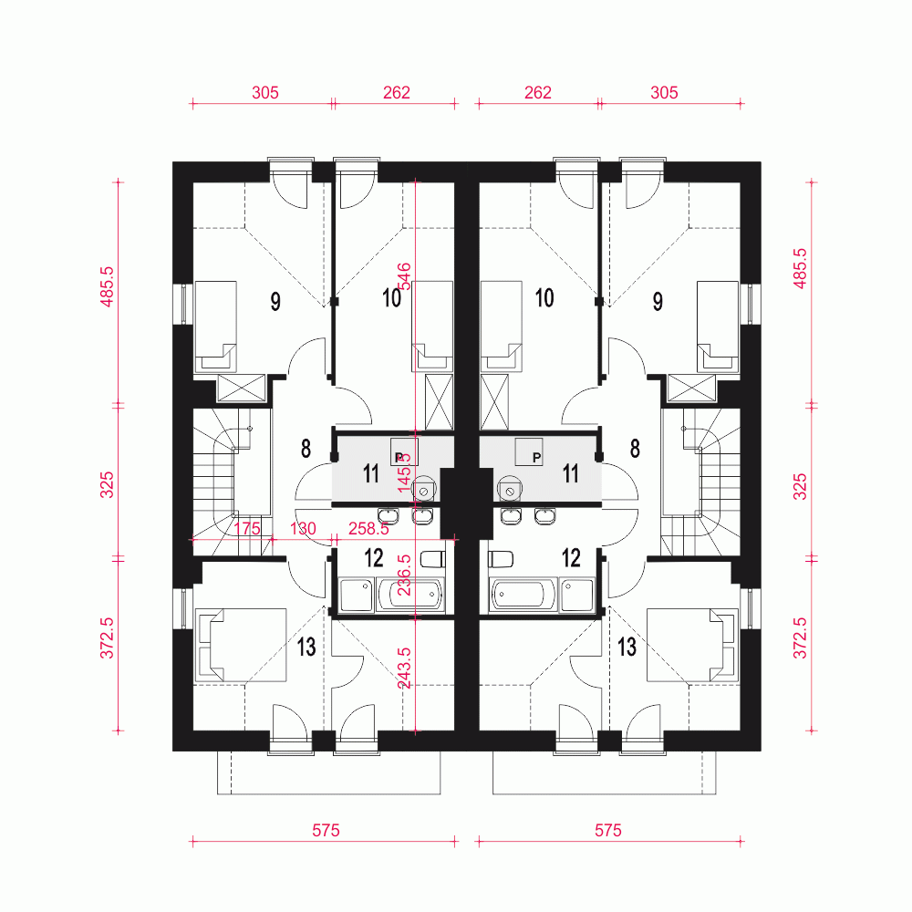
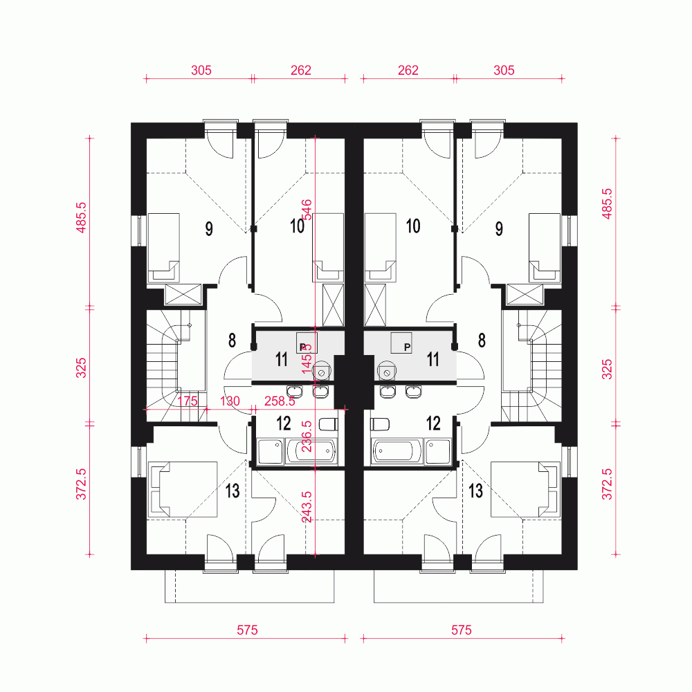
Piętro
- m²
- 8. Przedpkój4.3
- 9. Sypialnia11.6
- 10. Sypialnia12.7
- 11. Pralnia + c.o.*3.4
- 12. Łazienka5.7
- 13. Sypialnia14.5
Przekrój
Usytuowanie na działce
Dane techniczne
- Powierzchnia użytkowa198.4 m²
- Powierzchnia zabudowy168.4 m²
- KominekTak
- Liczba łazienek4
- Liczba pokoi8
- Powierzchnia dachu242 m²
- Długość domu13 m
- Szerokość domu13 m
- Wysokość domu9 m
- Minimalne wymiary działki21 x 21m
- GarażJednostanowiskowy
- Rodzaj dachuDwuspadowy
- Kąt nach. dachu35°
Instalacja grzewcza
- Instalacja grzewczaGaz
Zawartość projektu
Zgodnie ze znowelizowaną Ustawą Prawo Budowlane art.34 ust.3, na projekt budowlany składają się trzy części:
- projekt zagospodarowania działki lub terenu
- projekt architektoniczno-budowlany
- projekt techniczny
Nasze projekty oferujemy w 3 egzemplarzach, zawierających projekt architektoniczno-budowlany i projekt techniczny. Projekt zagospodarowania działki lub terenu nie wchodzi w skład projektu oferowanego do sprzedaży. Projekt ten należy zlecić we własnym zakresie lokalnemu projektantowi, który opracuje go na podstawie danych zawartych w projekcie architektoniczno-budowlanym i technicznym, po dostosowaniu projektu do warunków lokalnych i wymagań inwestora.
UWAGA: wszystkie egzemplarze projektu zabezpieczone są hologramami, w części rysunkowej posiadają nadruki zabezpieczające w kolorze zielonym. Zalecamy aby po otrzymaniu przesyłki kontrolować czy na pierwszych stronach projektu znajduje się hologram i czy na rysunkach widoczne są w/w nadruki potwierdzające oryginalność projektu.
Wyrażamy zgodę na wszelkie zmiany zgodne z obowiązującymi przepisami pod warunkiem wprowadzenia ich przez uprawnioną osobę.
Wszystkie zmiany wymienione powyżej powinny być naniesione na oryginał projektu katalogowego trwałą techniką graficzną w kolorze czerwonym lub dołączone jako aneks i podpisane przez osobę uprawnioną dokonująca adaptacji.
**ważne informacje
Projekt w fazie koncepcji dostępny z wydłużonym terminem realizacji. Przy zamówieniu ustalamy termin i pobieramy zadatek 50% podstawowej ceny projektu (jako koszty usługi przygotowania dokumentacji do standardu projektu gotowego, w przypadku rezygnacji z usługi, zadatek nie podlega zwrotowi).
Cena za dodatkowy egzemplarz projektu jest zależna od nazwy projektu!
Dodatki
Bezpłatne dodatki
GratisZestaw umów
GratisZmiany w projekcie
GratisTablica budowy
GratisDziennik budowy
Płatne dodatki

Kosztorys - stan wykończony
540 zł

Projekt wentylacji mechanicznej
1 000 zł








