Projekt domu Jukka z garażem
Promocja ważna do
24-03-2026
- Typ projektuSzeregowiec
- Powierzchnia użytkowa99 m²
- Kondygnacje
- GarażJednostanowiskowy
- DachDwuspadowy
- Kąt nach. dachu35°
- Odbicie lustrzaneTak
- Czas realizacjimax. czas realizacji 10 dni Zobacz więcej >
Opis
Zgodność z WT 2021 i Eurokodami
Ze względu na dostosowywanie projektu do standardu WT 2021, czas realizacji może się różnić od standardowego.
Skontaktuj się z nami aby poznać szczegóły dotyczące wybranego projektu.
Opis projektu
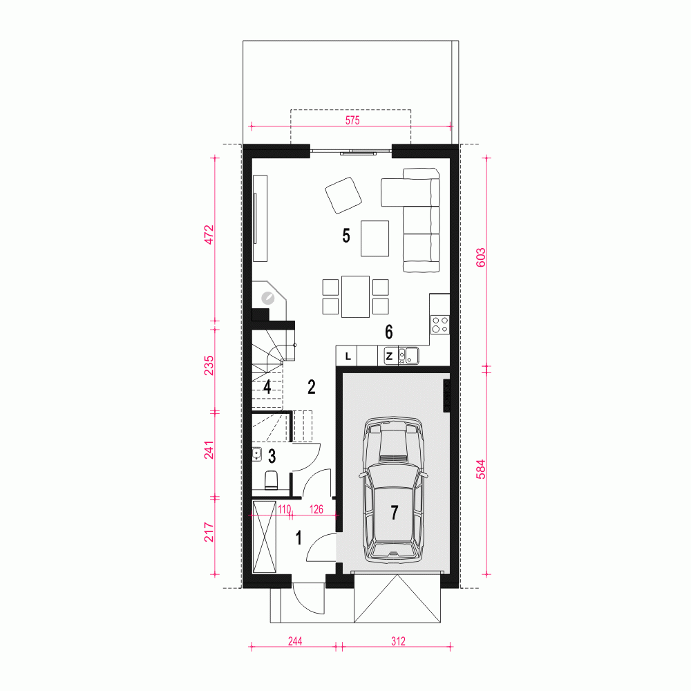
Jukka to atrakcyjny dom parterowy z poddaszem użytkowym w zabudowie szeregowej. To idealny projekt na wąskie działki o bardzo prostej i zwartej formie oraz o niedużej powierzchni użytkowej - blisko 100 m2 - co przekłada się na niski koszt budowy i eksploatacji domu. Projekt Jukka to dom dla 4-5cio osobowej rodziny z wbudowanym garażem, o tradycyjnej konstrukcji ścian z pustaków ceramicznych izolowanych styropianem. Dach dwuspadowy zaprojektowano jako podniesiony na ściankach kolankowych o wysokości 1,14 m. Funkcja domu obejmuje część ogólnodostępną na parterze i prywatną na poddaszu. Na parterze zaprojektowano część wejściową z wiatrołapem, holem, WC i schodami schodami prowadzącymi na poddasze. Dalej mamy przewidziany ustawny salon z kominkiem i jadalnią, oraz wygodny aneks kuchenny. Z salonu dostaniemy się na przydomowy ogród. Na poddasz zlokalizowana na poddaszu, obejmuje przedpokój z którego dostaniemy się do trzech sypialni, wspólnej łazienki oraz pomieszczenia pralni z piecem gazowym c.o. Jukka szeregówka, to projekt domu o parametrach energooszczędnych, o prostej konstrukcji i zwartej formie. To idealny projekt do realizacji inwestycji deweloperskich.
Konstrukcja
fundamenty: betonowe
ściany zewnętrzne: porotherm+styropian termo organika
rodzaj stropu: teriva i
elewacje: tynk strukturalny
pokrycie dachu: dachówka cem. lub cer.
Rzuty
Parter
Piętro
- m²
- 8. Przedpkój4.9
- 9. Sypialnia12.1
- 10. Sypialnia12.5
- 11. Pralnia + c.o.*3.4
- 12. Łazienka5.7
- 13. Sypialnia14.8
Przekrój
Usytuowanie na działce
Dane techniczne
- Powierzchnia użytkowa99 m²
- Powierzchnia zabudowy80.1 m²
- KominekTak
- Liczba łazienek2
- Liczba pokoi4
- Długość domu12.9 m
- Szerokość domu6.3 m
- Wysokość domu9 m
- Minimalne wymiary działki20.9 x 6.3m
- GarażJednostanowiskowy
- Rodzaj dachuDwuspadowy
- Kąt nach. dachu35°
Instalacja grzewcza
- Instalacja grzewczaGaz
Zawartość projektu
Zgodnie ze znowelizowaną Ustawą Prawo Budowlane art.34 ust.3, na projekt budowlany składają się trzy części:
- projekt zagospodarowania działki lub terenu
- projekt architektoniczno-budowlany
- projekt techniczny
Nasze projekty oferujemy w 3 egzemplarzach, zawierających projekt architektoniczno-budowlany i projekt techniczny. Projekt zagospodarowania działki lub terenu nie wchodzi w skład projektu oferowanego do sprzedaży. Projekt ten należy zlecić we własnym zakresie lokalnemu projektantowi, który opracuje go na podstawie danych zawartych w projekcie architektoniczno-budowlanym i technicznym, po dostosowaniu projektu do warunków lokalnych i wymagań inwestora.
UWAGA: wszystkie egzemplarze projektu zabezpieczone są hologramami, w części rysunkowej posiadają nadruki zabezpieczające w kolorze zielonym. Zalecamy aby po otrzymaniu przesyłki kontrolować czy na pierwszych stronach projektu znajduje się hologram i czy na rysunkach widoczne są w/w nadruki potwierdzające oryginalność projektu.
Wyrażamy zgodę na wszelkie zmiany zgodne z obowiązującymi przepisami pod warunkiem wprowadzenia ich przez uprawnioną osobę.
Wszystkie zmiany wymienione powyżej powinny być naniesione na oryginał projektu katalogowego trwałą techniką graficzną w kolorze czerwonym lub dołączone jako aneks i podpisane przez osobę uprawnioną dokonująca adaptacji.
**ważne informacje
Projekt w fazie koncepcji dostępny z wydłużonym terminem realizacji. Przy zamówieniu ustalamy termin i pobieramy zadatek 50% podstawowej ceny projektu (jako koszty usługi przygotowania dokumentacji do standardu projektu gotowego, w przypadku rezygnacji z usługi, zadatek nie podlega zwrotowi).
Cena za dodatkowy egzemplarz projektu jest zależna od nazwy projektu!
Dodatki
Bezpłatne dodatki
GratisZestaw umów
GratisZmiany w projekcie
GratisTablica budowy
GratisDziennik budowy
Płatne dodatki

Kosztorys - stan wykończony
540 zł

Projekt wentylacji mechanicznej
1 000 zł








