- Typ projektuWolnostojący
- Powierzchnia użytkowa101.9 m²
- Kondygnacje
- GarażJednostanowiskowy
- DachDwuspadowy
- Kąt nach. dachu40°
- Odbicie lustrzaneTak
- Czas realizacjimax. czas realizacji 10 dni Zobacz więcej >
Opis
Zgodność z WT 2021 i Eurokodami
Ze względu na dostosowywanie projektu do standardu WT 2021, czas realizacji może się różnić od standardowego.
Skontaktuj się z nami aby poznać szczegóły dotyczące wybranego projektu.
Opis projektu
Julia II to bardzo ekonomiczny i funkcjonalny dom dla 4-5 osobowej rodziny. Projekt domu jednorodzinnego Julia II to atrakcyjna propozycja domu o tradycyjnej stylistyce. Julia II to mniejsza wersja projektu domu Julia. Julia II posiada dach dwuspadowy oparty na ściance kolankowej wysokości około 70cm. Na parterze mamy do dyspozycji część ogólnodostępną obejmującą, strefę wejściową z wiatrołapem i wygodną garderobą, hol, pokój lub gabinet, łazienkę, salonu z jadalnią oraz kuchnię z małą spiżarnią pod schodami. W salonie mamy zaprojektowane duże drzwi tarasowe dające dużą ilość światła i dostęp do tarasu ogrodowego. Taras w wariancie A1 zadaszony jest pełnym dachem opartym na dwóch murowanych słupach, zapewniając pełną ochronę w deszczowe dni. W salonie aneks jadalny zlokalizowano duże okno zapewniające kontakt z otoczeniem w czasie posiłków. Na parterze mamy również część gospodarczą, obejmującą garaż dostępny z garderoby oraz kotłownię z kotłem na paliwo stałe. Do kotłowni mamy dostęp z zewnątrz, od strony ogrodu. Na poddaszu przewidziano część prywatną. Prowadzą tam drewniane schody, którymi dostaniemy się do przedpokoju. Mamy tutaj do dyspozycji trzy nieduże sypialnie oraz jedną większą z dostępem do własnej łazienki. Jest tu też jeszcze jedna łazienka dostępna bezpośrednio z przedpokoju. Strych dostępny z przedpokoju możemy wykorzystać na garderobę lub dodatkowy pokój sypialny. Projekt domu Julia II to ciekawa propozycja dla rodzin poszukujących komfortowego domu jednorodzinnego o tradycyjnej stylistyce i o energooszczędnych parametrach użytkowych.
Konstrukcja
Rzuty
Parter
- m²
- 1. Wiatrołap4
- 2. Garderoba3.9
- 3. Łazienka2.8
- 4. Hol3.7
- 5. Schody2.4
- 6. Schowek0.8
- 7. Kuchnia7.1
- 8. Salon+aneks jadalny21.9
- 9. Pokój9.2
- 10. Kotłownia*6
- 11. Garaż*18.1
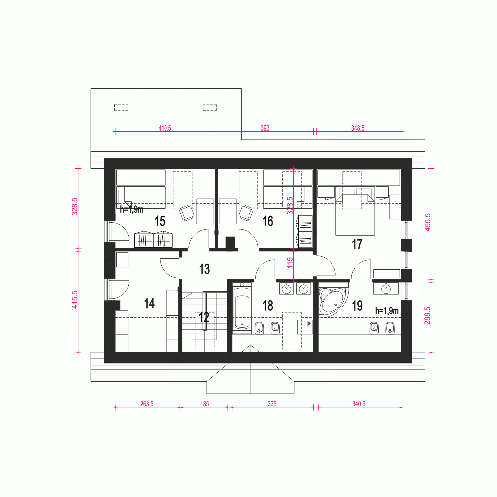
Piętro
- m²
- 12. Schody2.5
- 13. Przedpokój6.7
- 14. Strych (Garderoba)*7.4
- 15. Sypialnia8
- 16. Sypialnia7.5
- 17. Sypialnia10.9
- 18. Łazienka5.2
- 19. Łazienka5.3
Przekrój
Usytuowanie na działce
Dane techniczne
- Powierzchnia użytkowa101.9 m²
- Powierzchnia zabudowy107.8 m²
- KominekTak
- Liczba łazienek3
- Liczba pokoi5
- Powierzchnia dachu195.6 m²
- Kubatura414 m³
- Długość domu8.6 m
- Szerokość domu12.8 m
- Wysokość domu7.9 m
- Minimalne wymiary działki17 x 20.8m
- GarażJednostanowiskowy
- Rodzaj dachuDwuspadowy
- Kąt nach. dachu40°
Instalacja grzewcza
- Instalacja grzewczaGaz, Paliwo stałe
- Instalacja opcjonalna
Zawartość projektu
Zgodnie ze znowelizowaną Ustawą Prawo Budowlane art.34 ust.3, na projekt budowlany składają się trzy części:
- projekt zagospodarowania działki lub terenu
- projekt architektoniczno-budowlany
- projekt techniczny
Nasze projekty oferujemy w 3 egzemplarzach, zawierających projekt architektoniczno-budowlany i projekt techniczny. Projekt zagospodarowania działki lub terenu nie wchodzi w skład projektu oferowanego do sprzedaży. Projekt ten należy zlecić we własnym zakresie lokalnemu projektantowi, który opracuje go na podstawie danych zawartych w projekcie architektoniczno-budowlanym i technicznym, po dostosowaniu projektu do warunków lokalnych i wymagań inwestora.
UWAGA: wszystkie egzemplarze projektu zabezpieczone są hologramami, w części rysunkowej posiadają nadruki zabezpieczające w kolorze zielonym. Zalecamy aby po otrzymaniu przesyłki kontrolować czy na pierwszych stronach projektu znajduje się hologram i czy na rysunkach widoczne są w/w nadruki potwierdzające oryginalność projektu.
Wyrażamy zgodę na wszelkie zmiany zgodne z obowiązującymi przepisami pod warunkiem wprowadzenia ich przez uprawnioną osobę.
Wszystkie zmiany wymienione powyżej powinny być naniesione na oryginał projektu katalogowego trwałą techniką graficzną w kolorze czerwonym lub dołączone jako aneks i podpisane przez osobę uprawnioną dokonująca adaptacji.
**ważne informacje
Projekt w fazie koncepcji dostępny z wydłużonym terminem realizacji. Przy zamówieniu ustalamy termin i pobieramy zadatek 50% podstawowej ceny projektu (jako koszty usługi przygotowania dokumentacji do standardu projektu gotowego, w przypadku rezygnacji z usługi, zadatek nie podlega zwrotowi).
Cena za dodatkowy egzemplarz projektu jest zależna od nazwy projektu!
Dodatki
Bezpłatne dodatki
GratisZestaw umów
GratisZmiany w projekcie
GratisTablica budowy
GratisDziennik budowy
Płatne dodatki

Kosztorys - stan wykończony
540 zł

Projekt wentylacji mechanicznej
1 000 zł








