- Typ projektuBliźniak
- StylNowoczesny
- Powierzchnia użytkowa151.2 m²
- KondygnacjePiętrowy
- GarażDwustanowiskowy
- DachWielospadowy
- Kąt nach. dachu25°
- Odbicie lustrzaneNie
- Czas realizacjimax. czas realizacji 10 dni Zobacz więcej >
Opis
Zgodność z WT 2021 i Eurokodami
Ze względu na dostosowywanie projektu do standardu WT 2021, czas realizacji może się różnić od standardowego.
Skontaktuj się z nami aby poznać szczegóły dotyczące wybranego projektu.
Opis projektu
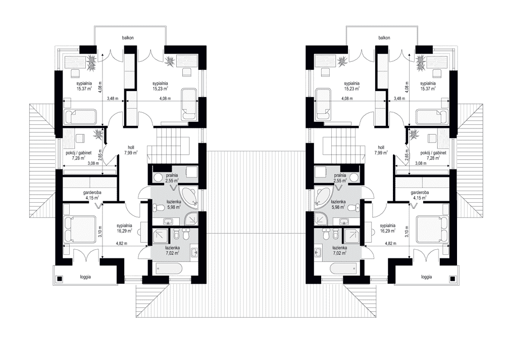
Projekt domu Kasjopea 2 został zaprojektowany jako budynek bliźniaczy. Dwie piętrowe połówki bliźniaka zostały połączone dwustanowiskowymi garażami przekrytymi dwuspadowym dachem. Dzięki temu obie części budynku są od siebie wizualnie oddzielone - nie stanowią jednej, zlewającej się bryły. Prosta forma prostopadłościanu została urozmaicona wystającymi wykuszami i daszkami, a także podcieniami, balkonami i loggią. Projekt domu Kasjopea 2 spodoba się Inwestorom lubiącym nowoczesną architekturę, lecz nieprzesadzoną - z odrobiną konserwatyzmu. We wnętrzu domu Kasjopea 2, na parterze zaprojektowano: część dzienną, składającą się z salonu z aneksem jadalnym, holu, częściowo otwartej kuchni, oraz pomieszczenia gospodarczego i garażu. Na piętrze zaplanowano z kolei apartament rodziców - z łazienką, garderobą i balkonem, oraz dwie sypialnie dzieci - z łazienką. Dodatkowo zmieścił się jeszcze jeden pokój, który może być wykorzystany jako gabinet do pracy, ewentualnie sypialnia gościnna lub duża garderoba. Zapraszamy do zapoznania się z pełną ofertą pracowni MG Projekt tej serii: projekt domu Kasjopea, projekt domu Kasjopea 3, projekt domu Kasjopea 4, projekt domu Kasjopea 5, projekt domu Kasjopea 6, projekt domu Kasjopea 7, projekt domu Kasjopea 7B, projekt domu Kasjopea 8.UWAGA! Koszty realizacji oraz dane techniczne dotyczą połowy bliźniaka.
Wariant projektu zwężony o 55 cm, zmiana garażu na jednostanowiskowy.
Konstrukcja
- Fundamentybetonowe wylewane
- Ściany zewnętrznedwuwarstwowe porotherm 25 + 20 styropian (lub wełna mineralna)
- StropTeriva
- Elewacjetynk cienkowarstwowy
- Pokrycie dachublachodachówka lub dachówka
Rzuty
Dane techniczne
- Powierzchnia użytkowa151.2 m²
- Powierzchnia netto161.59 m²
- Powierzchnia zabudowy144.37 m²
- KominekTak
- Liczba łazienek3
- Liczba pokoi5
- Powierzchnia dachu219.06 m²
- Kubatura784 m³
- Długość domu14.94 m
- Szerokość domu12.57 m
- Wysokość domu8.55 m
- Poddaszestrych
- Minimalne wymiary działki22.94 x 31.14m
- GarażDwustanowiskowy
- Rodzaj dachuWielospadowy
- Kąt nach. dachu25°
Koszty budowy
- Stan surowy194283 zł
- Stan surowy zamknięty289412 zł
- Koszt wykończenia308391 zł
- Koszt instalacji97171 zł
Zawartość projektu
W komplecie nowej wersji dokumentacji projektowej znajdują się 3 egzemplarze projektu architektoniczno-budowlanego oraz 3 egzemplarze projektu technicznego
Projekt architektoniczno-budowlany zawierający:
-opis architektoniczny z elementami konstrukcji,
-część rysunkowa: rzut parteru, poddasza/piętra, rzut dachu w skali 1:100, przekroje skala 1:50,
elewacje skala 1:100.
Projekt techniczny zawierający:
-opis techniczny i konstrukcyjny (obliczenia statyczne - w zależności od projektu włączone w projekt lub stanowiące odrębną teczkę).
Część rysunkowa architektura i konstrukcja:
-rzuty fundamentów, parteru, poddasza, stropu, więźby, dachu / w skali 1:50,
-przekroje przez budynek / budynek skali 1:50,
-elewacje budynku / w skali 1:50 (*niektóre projekty posiadają rysunki w skali 1:100 lub 1:75),
-zestawienie stolarki budowlanej okiennej i drzwiowej,
-szczegóły konstrukcji i ewentualne szczegóły budowlane,
Część instalacyjna:
-część opisowa do projektów instalacji elektrycznych, wodno-kanalizacyjnych, grzewczych, gazowych (jeśli występują).
Część rysunkowa do projektów instalacji:
-schematy instalacji elektrycznych, schemat rozdzielni, plan instalacji odgromowej,
-schematy instalacji wodno-kanalizacyjnej i ciepłej wody,
-schematy instalacji grzewczych,
-schemat instalacji gazowej (jeśli występują).
Do projektu dołączane jest zestawienie materiałowe, z wykazem elementów drewnianych oraz stali budowlanej.
Do projektu dołączone są kopie uprawnień wszystkich projektantów, oraz aktualne zaświadczenia o przynależności do izb zawodowych.
Projekt zawiera oświadczenie projektantów o poprawności projektu w świetle Prawa Budowlanego, a także zawiera informację dotyczącą bezpieczeństwa i ochrony zdrowia ( BIOZ).
Do projektu dołączona jest także zgoda na zmiany adaptacyjne. Zgoda dołączana jest do każdego projektu bezpłatnie. Na Państwa życzenie zakres zgody na zmiany możemy dowolnie rozszerzyć.
Pracownia zezwala na następujące zmiany i odstępstwa od projektu architektoniczno-budowlanego w trakcie jego przystosowywania do lokalizacji:
- Zmianę obrysu zewnętrznego ścian zewnętrznych.
- Zmianę obrysu wewnętrznego ścian zewnętrznych.
- Zmianę układu ścian wewnętrznych działowych.
- Zmianę funkcji, ilości i usytuowania poszczególnych pomieszczeń na dowolnej kondygnacji w projekcie.
- Zmianę ukształtowania, ilości i kąta nachylenia połaci dachowych.
- Zmianę ilości, umiejscowienia i wielkości otworów okiennych i drzwiowych.
- Zmianę rodzaju materiału i technologii wykonania ścian zewnętrznych oraz wewnętrznych oraz ścian fundamentowych.
- Zmianę rodzaju i technologii wykonania stropów nad dowolną kondygnacją.
- Zmianę umiejscowienia, kształtu i materiału wykonania schodów w budynku.
- Zmianę wielkości, kształtu i materiałów, bądź likwidacja: tarasów, podestów i balkonów.
- Likwidację lub dodanie dowolnej ilości:
- lukarn,
- wykuszy,
- podcieni,
- balkonów,
- loggii,
- kolumn,
- pilastrów,
- ganków,
- werand.
- Zmianę materiałów wykończeniowych, instalacyjnych, izolacyjnych.
- Zmianę rodzaju pokrycia dachowego.
- Doprojektowanie bądź likwidacja podpiwniczenia - częściowego lub całkowitego.
Dodatki
Bezpłatne dodatki
GratisZestaw umów
GratisZmiany w projekcie
PromocjaProjekt szamba szczelnego
GratisTablica budowy
GratisDziennik budowy
Płatne dodatki

Pakiet wentylacja mechaniczna i kominek DGP
550 zł

Kosztorys inwestorski
600 zł

Pakiet odkurzacz centralny
550 zł

Wersja elektroniczna projektu
600 zł

Pakiet instalacja solarna
550 zł

Pakiet ogrzewanie podłogowe
550 zł

Pakiet powietrzna pompa ciepła
550 zł

Pakiet płaszcz wodny
550 zł

Pakiet kotłownia na paliwo stałe
550 zł

Pakiet klimatyzacja w domu
550 zł

Projekt ogrodzenia
750 zł

Pakiet instalacja fotowoltaiczna
550 zł

Pakiet kominek z DGP
500 zł

Pakiet gruntowa pompa ciepła
550 zł

Projekt altan i grilów ogrodowych
850 zł

Dodatkowy egzemplarz do projektu
650 zł



























