Projekt domu Kołysanka z garażem
- Typ projektuWolnostojący
- Powierzchnia użytkowa142.7 m²
- Kondygnacje
- GarażJednostanowiskowy
- DachDwuspadowy
- Kąt nach. dachu45°
- Odbicie lustrzaneTak
- Czas realizacjimax. czas realizacji 10 dni Zobacz więcej >
Opis
Zgodność z WT 2021 i Eurokodami
Ze względu na dostosowywanie projektu do standardu WT 2021, czas realizacji może się różnić od standardowego.
Skontaktuj się z nami aby poznać szczegóły dotyczące wybranego projektu.
Opis projektu
Kołysanka to kompaktowy dom jednorodzinny z poddaszem użytkowym, idealny dla 4–5-osobowej rodziny. Prosta bryła, dwuspadowy dach i elewacja z jasnego tynku oraz beżowego klinkieru nadają mu nowoczesny, a zarazem przytulny charakter. Zadaszone wejście w formie podcienia chroni przed niekorzystną pogodą.Na parterze znajduje się otwarta strefa dzienna z salonem, jadalnią i kuchnią ze spiżarnią. Kominek w centrum salonu tworzy ciepły klimat. Dodatkowy pokój z łazienką może służyć jako gabinet lub sypialnia. Zaplanowano też WC, schowek pod schodami i dostęp do garażu z przejściem do kotłowni z wyjściem na ogród.Poddasze mieści trzy sypialnie oraz przestronną łazienkę z wanną i prysznicem. Duże przeszklenia zapewniają doskonałe doświetlenie i otwierają dom na ogród. Projekt łączy elegancję z funkcjonalnością i sprawdzi się zarówno na działce podmiejskiej, jak i w spokojnym, naturalnym otoczeniu.
Konstrukcja
fundamenty: betonowe
ściany zewnętrzne: porotherm+styropian termo organika
ściany wewnętrzne: porotherm
rodzaj stropu: teriva
elewacje: tynk strukturalny, cegła klinkierowa
pokrycie dachu: dachówka ceramiczna
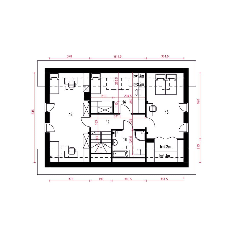
Rzuty
Parter
- m²
- 1. Wiatrołap3.8
- 2. Komunikacja8.3
- 3. Schody4
- 4. Kuchnia6.2
- 5. Spiżarnia2.3
- 6. Salon23.7
- 7. Pokój12
- 8. Łazienka3.7
- 9. WC1.8
- 10. Pom. techniczne*8.2
- 11. Garaż*21.6
Piętro
Dane techniczne
- Powierzchnia użytkowa142.7 m²
- Powierzchnia zabudowy123.7 m²
- KominekTak
- Liczba łazienek2
- Liczba pokoi5
- Powierzchnia dachu227.3 m²
- Długość domu9.4 m
- Szerokość domu13.6 m
- Wysokość domu9 m
- Minimalne wymiary działki17.4 x 21.6m
- GarażJednostanowiskowy
- Rodzaj dachuDwuspadowy
- Kąt nach. dachu45°
Instalacja grzewcza
- Instalacja grzewczaGaz
Zawartość projektu
Zgodnie ze znowelizowaną Ustawą Prawo Budowlane art.34 ust.3, na projekt budowlany składają się trzy części:
- projekt zagospodarowania działki lub terenu
- projekt architektoniczno-budowlany
- projekt techniczny
Nasze projekty oferujemy w 3 egzemplarzach, zawierających projekt architektoniczno-budowlany i projekt techniczny. Projekt zagospodarowania działki lub terenu nie wchodzi w skład projektu oferowanego do sprzedaży. Projekt ten należy zlecić we własnym zakresie lokalnemu projektantowi, który opracuje go na podstawie danych zawartych w projekcie architektoniczno-budowlanym i technicznym, po dostosowaniu projektu do warunków lokalnych i wymagań inwestora.
UWAGA: wszystkie egzemplarze projektu zabezpieczone są hologramami, w części rysunkowej posiadają nadruki zabezpieczające w kolorze zielonym. Zalecamy aby po otrzymaniu przesyłki kontrolować czy na pierwszych stronach projektu znajduje się hologram i czy na rysunkach widoczne są w/w nadruki potwierdzające oryginalność projektu.
Wyrażamy zgodę na wszelkie zmiany zgodne z obowiązującymi przepisami pod warunkiem wprowadzenia ich przez uprawnioną osobę.
Wszystkie zmiany wymienione powyżej powinny być naniesione na oryginał projektu katalogowego trwałą techniką graficzną w kolorze czerwonym lub dołączone jako aneks i podpisane przez osobę uprawnioną dokonująca adaptacji.
**ważne informacje
Projekt w fazie koncepcji dostępny z wydłużonym terminem realizacji. Przy zamówieniu ustalamy termin i pobieramy zadatek 50% podstawowej ceny projektu (jako koszty usługi przygotowania dokumentacji do standardu projektu gotowego, w przypadku rezygnacji z usługi, zadatek nie podlega zwrotowi).
Cena za dodatkowy egzemplarz projektu jest zależna od nazwy projektu!
Dodatki
Bezpłatne dodatki
GratisZestaw umów
GratisZmiany w projekcie
GratisTablica budowy
GratisDziennik budowy
Płatne dodatki

Kosztorys - stan wykończony
540 zł

Projekt wentylacji mechanicznej
1 000 zł











