- Typ projektuWolnostojący
- Powierzchnia użytkowa57.3 m²
- KondygnacjeParterowy, z poddaszem, z piwnicą
- GarażBez garażu
- Kąt nach. dachu45°
- Odbicie lustrzaneTak
- Czas realizacjido 10 dni roboczych Zobacz więcej >
Opis
Zgodność z WT 2021 i Eurokodami
Ze względu na dostosowywanie projektu do standardu WT 2021, czas realizacji może się różnić od standardowego.
Skontaktuj się z nami aby poznać szczegóły dotyczące wybranego projektu.
Opis projektu
Budynek jednorodzinny, parterowy, z poddaszem mieszkalnym, niepodpiwniczony, 3 pokoje, kuchniaRzuty
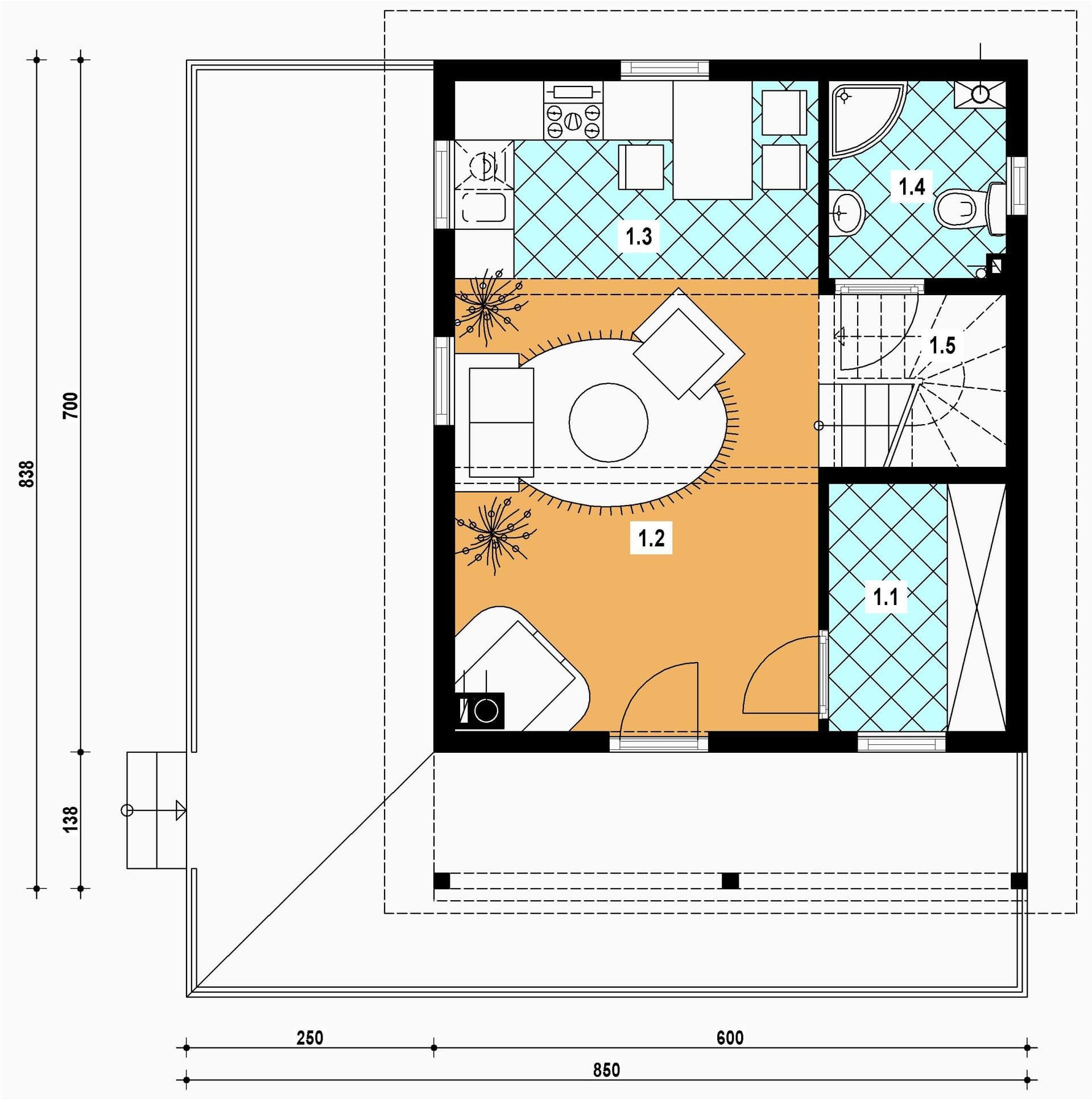
Parter
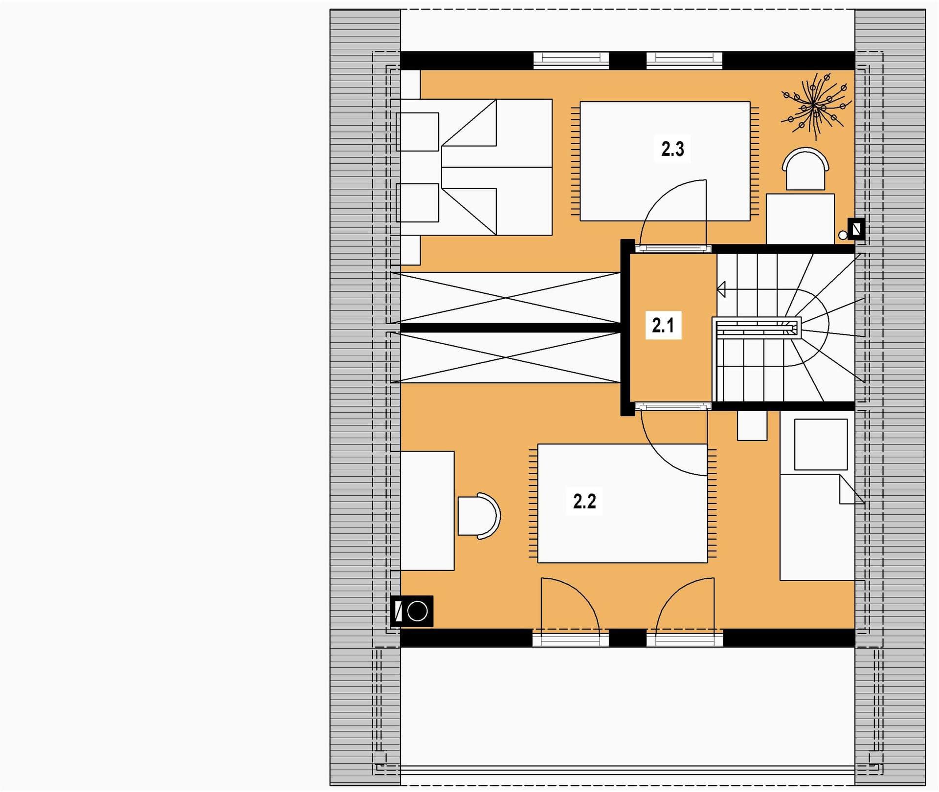
Poddasze
Dane techniczne
- Powierzchnia użytkowa57.3 m²
- Powierzchnia zabudowy42 m²
- Kubatura241.7 m³
- Wysokość domu7.44 m
- Piwnicatak
- PoddaszeUżytkowe
- Minimalne wymiary działki14 x 16.5m
- GarażBez garażu
- Kąt nach. dachu45°
Zawartość projektu
Dokumentacja obejmuje 3 egzemplarze projektu architektoniczno-budowlanego oraz 3 teczki projektu technicznego.
Architektura
- Opis techniczny do części architektonicznej
- Część rysunkowa
- Zestawienie podstawowych materiałów
Konstrukcja
- Opis techniczny
- Obliczenia statyczne
- Schematy konstrukcyjne
Projekt wewnętrznej instalacji C.O.; WOD-KAN; GAZ
- Opis techniczny instalacji
- Zestawienie podstawowych materiałów
- Część rysunkowa
Projekt elektrycznych instalacji wewnętrznych
- Opis techniczny
- Część rysunkowa
Projektant dokonujący adaptacji projektu gotowego może wprowadzić w nim następujący zakres zmian bez naruszenia praw autorskich firmy:
- Zaprojektować użycie innych materiałów budowlanych na konstrukcję budynku {ściany i stropy} pod warunkiem zachowania wymagań konstrukcji i ochrony cieplnej budynku oraz jego elewacji.
- Wprowadzić zmiany w usytuowaniu niekonstrukcyjnych ścianek działowych i otworów drzwiowych wewnątrz domu.
- Wprowadzić zmiany materiałów wykończeniowych na zewnątrz oraz wewnątrz domu.
- Wprowadzić zmiany usytuowania i rodzaju armatury sanitarnej i instalacji elektrycznej.
- Wprowadzić częściowe lub całkowite podpiwniczenie budynku przy zachowaniu poziomu posadzki parteru na wysokości nie przekraczającej 60 cm ponad poziom terenu projektowanego.
- Przesuwać okna na elewacji pod warunkiem zachowania prawidłowej kompozycji elewacji polegające na zachowaniu wspólnej linii usytuowania okien nad sobą lub obok siebie.
- Projekt powiększenia lub zmniejszenia garażu może być wykonany przez projektanta adaptującego w zakresie adaptacji projektu gotowego do konkretnej działki budowlanej.
Wprowadzenie innych zmian do projektu wymaga uzyskania pisemnej zgody autora projektu, która jest wystawiana po uprzednim zgłoszeniu inwestora. Wszelkie zmiany należy nanieść na projekcie w kolorze czerwonym trwałą i czytelną techniką (lub wykonać rysunki zamienne)
Uwaga: Istnieje możliwość zakupu dodatkowego egzemplarza projektu.
Dodatki
Bezpłatne dodatki
GratisZestaw umów
GratisZmiany w projekcie
GratisTablica budowy
GratisDziennik budowy














