Projekt domu La Coruna A
- Typ projektuWolnostojący
- Powierzchnia użytkowa152.3 m²
- KondygnacjeParterowy
- GarażBez garażu
- DachDwuspadowy
- Kąt nach. dachu38°
- Odbicie lustrzaneTak
- Czas realizacjido 5 dni roboczych Zobacz więcej >
Opis
Zgodność z WT 2021 i Eurokodami
Ze względu na dostosowywanie projektu do standardu WT 2021, czas realizacji może się różnić od standardowego.
Skontaktuj się z nami aby poznać szczegóły dotyczące wybranego projektu.
Opis projektu
Projekt domu La Coruna A to propozycja dla rodziny pięcio-sześcioosobowej. Dom zaprojektowano w nowoczesnej i eleganckiej stylistyce. Zwarta bryła budynku z dobudowanym garażem została urozmaicona lukarnami oraz podcieniem w strefie wejściowej. Projekt domu, dopełniają subtelne detale takie jak drewniana pergola od strony ogrodu, ażurowe okiennice oraz lekkie szklane balustrady.
La Coruna A, to dom zaprojektowany z najwyższą troską o komfort użytkowników. Otwarta kuchnia, jadalnia oraz salon tworzą jedną przestrzeń dzienną. Duże okna w salonie z możliwością wyjścia na taras sprawiają, że powierzchnia salonu wydaje się zdecydowanie większa. Na parterze przewidziano również pokój gościny blisko strefy wejściowej do domu, schowek pod schodami, łazienkę oraz pomieszczenie gospodarcze. Z niego dostajemy się do garażu z drugim pomieszczeniem gospodarczym, idealnym na kocioł na paliwo stałe. Na poddaszu domu przewidziano cztery przestronne sypialnie, łazienkę oraz pokój rekreacji.
Ogromną zaletę domu stanowi łatwa i tania realizacja. La Coruna to projekt dla osób poszukujących komfortowego, nowoczesnego i eleganckiego domu.
Rzuty
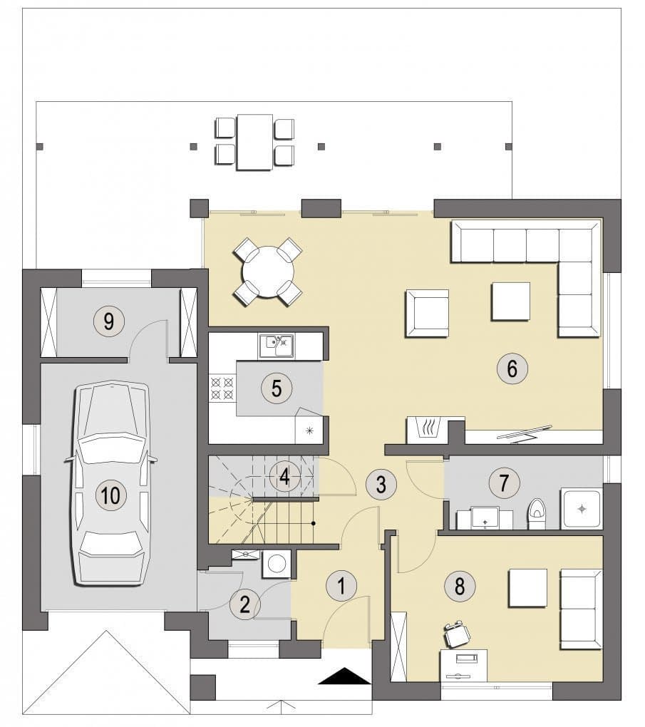
Parter
- m²
- 1. wiatrołap3.6
- 2. pom. gospodarcze3.1
- 3. hol4.9
- 4. spiżarnia1.2
- 5. kuchnia5.9
- 6. pokój dzienny + jadalnia34.3
- 7. łazienka5.3
- 8. pokój14.3
- 9. pom. gospodarcze5
- 10. garaż17.7
Poddasze
Dane techniczne
- Powierzchnia użytkowa152.3 m²
- Powierzchnia zabudowy127.1 m²
- Wysokość domu8.86 m
- PoddaszeUżytkowe
- Minimalne wymiary działki19.74 x 20.84m
- GarażBez garażu
- Rodzaj dachuDwuspadowy
- Kąt nach. dachu38°
Zawartość projektu
Projekty są oferowane w formie zgodnej z nowym Prawem Budowlanym i składają się z 3 egzemplarzy projektu architektoniczno-budowlanych i 3 egzemplarzy projektu technicznego.
Nowelizacja ustawy prawa budowlanego wprowadziła podział projektu budowlanego na:
- projekt techniczny
- projekt architektoniczno-budowlany
- projekt zagospodarowania działki lub terenu, (wykonuje miejscowy projektant adaptujący)
Projekt zagospodarowania działki lub terenu, obejmujący usytuowanie budynku, układ komunikacyjny oraz informacje dotyczące obszaru oddziaływania obiektu wraz z projektem architektoniczno-budowlanym będą tą częścią projektu budowlanego, która będzie zatwierdzana przez organ administracji architektoniczno-budowlanej. Projekt techniczny nie będzie przedkładany do urzędu i zatwierdzany, natomiast ma być przekazany kierownikowi budowy.
Projekt architektoniczno-budowlany zawiera:
- opis architektoniczny z elementami konstrukcji,
- część rysunkowa:
- rzut parteru, poddasza/piętra, rzut dachu w skali1:100,
- przekroje, skala 1:50,
- elewacje, skala 1:100.
Projekt techniczny zawiera:
- opis techniczny i konstrukcyjny - obliczenia statyczne,
- część rysunkowa architektura i konstrukcja:
- rzuty fundamentów, parteru, poddasza, stropu, więźby, dachu w skali 1:100,
- przekroje przez budynek w skali 1:75,
- elewacje budynku w skali 1:100
- zestawienie stolarki okiennej i drzwiowej,
- szczegóły konstrukcji. - część instalacyjna:
- część opisowa do projektów instalacji elektrycznych, wodno-kanalizacyjnych, grzewczych, gazowych (jeśli występują), - część rysunkowa do projektów instalacji:
- schemat instalacji elektrycznych, schemat rozdzielni,
- schemat instalacji wodno-kanalizacyjnej i ciepłej wody,
- schemat instalacji grzewczych,
- schemat instalacji gazowej (jeśli występuje).
Do projektu dołączone są również:
- kopie uprawnień wszystkich projektantów oraz zaświadczenia o przynależności do izb zawodowych,
- oświadczenie projektantów o poprawności projektu w świetle Prawa Budowlanego,
- informacje dotyczące bezpieczeństwa i ochrony zdrowia w zakresie budynku (BIOZ),
- zgoda na zmiany adaptacyjne.
Zmiany, które będziesz chciał wprowadzić uwzględnimy w treści dokumentu, który bezpłatnie dołączamy do każdego zamówionego projektu (Autorska zgoda na zmiany w projekcie) i zostaną one naniesione na projekt przez architekta adaptującego. W treści standardowo dołączanego dokumentu znajdują się:
- Dostosowanie budynku do warunków gruntowych.
- Zmiana wymiarów fundamentów, wynikająca z dostosowania obiektu do warunków gruntowych.
- Wprowadzenie całkowitego lub częściowego podpiwniczenia budynku - pod warunkiem nie przekroczenia poziomu posadzki na parterze o 50 cm ponad poziom terenu.
- Zmiana wymiarów przekrojów lub rozstawu elementów więźby dachowej, wynikająca z dostosowania budynku do odpowiedniej strefy śniegowej lub wiatrowej.
- Zmiana rodzaju stropów - przy zachowaniu układu konstrukcji.
- Zmiana warstw ścian zewnętrznych - przy zachowaniu współczynnika przenikalności cieplnej.
- Zmiana kąta nachylenia dachu do 5°- przy zwróceniu uwagi na nośność elementów więźby dachowej.
- Zmiana instalacji wodno - kanalizacyjnej, gazowej, CO, elektrycznej - przy zachowaniu obowiązujących norm.
- Zmiana materiałów wykończeniowych - posadzek, tynków, dachówki, izolacji cieplnej i przeciwwilgociowej - przy zachowaniu niezbędnych parametrów wytrzymałości (szczególnie dla zmiany pokrycia dachowego) oraz parametrów przenikania ciepła.
- Zmiana rozwiązań funkcjonalnych wewnątrz budynku poprzez przesunięcie lub likwidację ścian działowych.
- Zmiana usytuowania, ilości i kształtu okien oraz drzwi.
- Zmiana projektu polegająca na wykonaniu lustrzanego odbicia budynku.
- Zmiana konstrukcji - szerokości biegów schodowych, liczby stopni i wymiarów schodów.
- Zmiana pokrycia dachowego - przy zachowaniu zaprojektowanych spadków i ciężaru pokrycia.
- Dobudowanie garażu lub wiaty garażowej.
Dodatki
Bezpłatne dodatki
GratisZestaw umów
GratisZmiany w projekcie
GratisTablica budowy
GratisDziennik budowy
GratisProjektowana charakterystyka energetyczna
Płatne dodatki

Projekt wentylacji mechanicznej z rekuperacją
450 zł

Ogrzewanie podłogowe
450 zł













