Projekt domu LA LORA 2 dom letniskowy
- Typ projektuLetniskowy
- Powierzchnia użytkowa46.38 m²
- KondygnacjeParterowy
- GarażBez garażu
- DachDwuspadowy
- Kąt nach. dachu30°
- Odbicie lustrzaneTak
- Czas realizacjido 10 dni roboczych Zobacz więcej >
Opis
Zgodność z WT 2021 i Eurokodami
Ze względu na dostosowywanie projektu do standardu WT 2021, czas realizacji może się różnić od standardowego.
Skontaktuj się z nami aby poznać szczegóły dotyczące wybranego projektu.
Opis projektu
Projekt dostępny również jako CAŁOROCZNY!!!
Zobacz czym różni się projekt domku letniskowego od domu całorocznego?
LA LORA 2
Małe jest piękne chciałoby się powiedzieć na widok tego zgrabnego domku. Idealne proporcje, niewielkie rozmiary, przyjazna sylwetka. La Lora z pewnością budzi zaufanie. Znakomicie spisuje w roli całorocznego gniazdka dla niewielkiej rodziny, ale równie dobrze może być traktowany jako letniskowa "odskocznia". Dom jest wyjątkowy także ze względu na starannie dobrana kolorystykę ciepły beż elewacji, równie ciepły brąz drewnianych wykończeń oraz miękkie szarości dachówki, kamiennych podmurówek, schodków i efektownego komina tworzą oryginalną kompozycję estetyczną.
Małe jest nie tylko piękne, a w dodatku i przytulne. Wnętrze domu kryje wszystko, co potrzebne, by mieszkać komfortowo i wygodnie. Przestronny pokój dzienny, z którego przez niewielki taras można wyjść prosto do ogrodu, obiecuje spokojny relaks, a połączona z kuchnią jadalnia to miejsce, które ma szanse stać się sercem rodzinnego ogniska, skupiając domowników przy wspólnych posiłkach. Oprócz sypialni i łazienki znalazło się również miejsce na niewielką garderobę.
Zobacz projekt La Lora bez werandy i grillowędzarnika.
Projekt składa się z części architektonicznej, konstrukcyjnej, wewnętrznych instalacji wod.-kan, c. o. i elektrycznej. W projekcie załączone są podstawowe zestawienie stali, drewna i stolarki okienno-drzwiowej. Do projektu dołączamy bezpłatną zgodę na wprowadzenie zmian, oświadczenie projektantów o wykonaniu projektu zgodnie z obowiązującymi normami i przepisami oraz kserokopie uprawnień projektantów wraz z aktualnym wpisem do izby. W przypadku zamówienia projektu w technologii lekkiej, drewnianej konstrukcji szkieletowej, powierzchnia użytkowa budynku jest o około 7% większa.
Konstrukcja
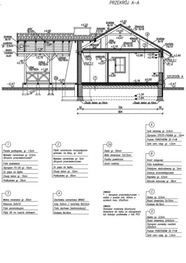
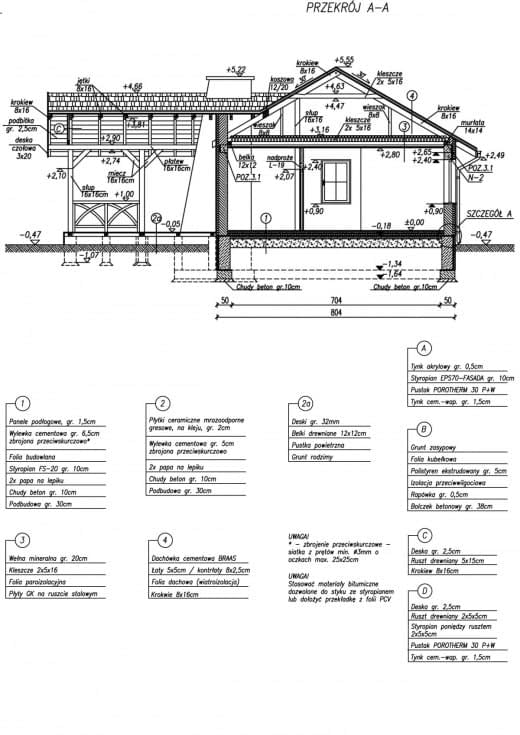
Technologia tradycyjna , ściany zewnętrzne murowane grubości 30 cm + 10 cm styropian, ściany wewnętrzne (nośne) gr. 25 cm i działowe gr. 12 cm. Wszystkie ściany wykonane z pustaków ceramicznych POROTHERM. Konstrukcja więźby dachowej drewniana, pokrycie dachówka ceramiczna.
Rzuty
Parter
Przekrój A-A
Przekrój B-B
Dane techniczne
- Powierzchnia użytkowa46.38 m²
- Powierzchnia zabudowy87.87 m²
- Liczba pokoi5
- Powierzchnia dachu138 m²
- Kubatura392 m³
- Wysokość domu6.02 m
- Minimalne wymiary działki20.12 x 16.16m
- GarażBez garażu
- Rodzaj dachuDwuspadowy
- Kąt nach. dachu30°
Zawartość projektu
Projekty są dostępne w wersji książkowej, drukowanej w tak zwanym w nowym trybie 3 egzemplarze projektu architektoniczno-budowlanego oraz 3 egzemplarze projektu technicznego. Na życzenie przesyłamy rzuty i przekroje wersji podstawowych dokumentacji w formacie PDF
Każdy projekt architektoniczno-budowlany domu składa się z następujących części:
- strona tytułowa,
- oświadczenie
- część opisowa projektu architektoniczno-budowlanego,
- projektowana charakterystyka energetyczna z analizą,
- część rysunkowej projektu architektoniczno-budowlanego,
- zaświadczenia i uprawnienia.
Każdy projekt techniczny domu składa się z:
- strony tytułowej,
- oświadczenia,
- części opisowej projektu technicznego,
- części rysunkowej projektu technicznego,
- części konstrukcyjnej,
- zaświadczenia i uprawnień,
- zestawień drewna i stali,
-instalacji elektrycznej i odgromowej,
-instalacji sanitarnych, gazowych i centralnego ogrzewania.
Do projektu na życzenie dołączamy obliczenia statyczno-wytrzymałościowe.
Inwestor otrzymuje 3 opieczętowane sztuki projektu architektoniczno-budowlanego oraz 3 egzemplarze projektu technicznego tworzące komplet, każdy z plombą zabezpieczającą i oryginalnym hologramem biura.
Pierwszy egzemplarz tomu I zawiera zgodę in blanco na wszystkie zmiany wprowadzane do projektu po zakupie przez lokalnego wybranego na własną rękę przez Inwestora architekta adaptującego/kierownika budowy. Do teczki projektów dołączamy także zaświadczenia i aktualne wpisy do Izb autorów projektu oraz wpisy aktualne na czas sporządzenia projektu.
Dodatki
Bezpłatne dodatki
GratisZestaw umów
GratisZmiany w projekcie
GratisTablica budowy
GratisDziennik budowy
Płatne dodatki

Kosztorys
470 zł

Dodatkowy egzemplarz projektu
450 zł

Projekt wentylacji mechanicznej z rekuperatorem
450 zł

Projekt fotowoltaiki dla domu
750 zł

Projekt instalacji z ogrzewaniem podłogowym
400 zł

Elektroniczna wersja projektu
600 zł










