Projekt domu LIZBONA
- Typ projektuWolnostojący
- Powierzchnia użytkowa181.57 m²
- KondygnacjeParterowy, z poddaszem, z piwnicą
- GarażDwustanowiskowy
- DachWielospadowy
- Kąt nach. dachu40°
- Odbicie lustrzaneTak
- Czas realizacjido 10 dni roboczych Zobacz więcej >
Opis
Zgodność z WT 2021 i Eurokodami
Ze względu na dostosowywanie projektu do standardu WT 2021, czas realizacji może się różnić od standardowego.
Skontaktuj się z nami aby poznać szczegóły dotyczące wybranego projektu.
Konstrukcja
- ściany zewnętrzne murowane grubości 30 cm + 12 cm styropian
- ściany wewnętrzne (nośne) gr. 25 cm i działowe gr. 12 cm
- wszystkie ściany wykonane z pustaków ceramicznych "POROTHERM"
- strop gęstożebrowy "POROTHERM" o gr. 23 cm, nad garażem 27cm
- konstrukcja więźby dachowej drewniana w układzie krokwiowo-jętkowym oraz krokwiowym
- pokrycie dachówka ceramiczna
- projekt posiada kominek
- instalacja grzewcza: kocioł gazowy w kotłowni
Zapytaj o dostępność projektu w wersji szkieletowej.
Rzuty
Rzut parteru
- 04. Kuchnia10.8
- 05. Aneks jadalny12.75
- 06. Pokój dzienny27.33
- 07. Pokój10.45
- 08. Łazienka5.12
- 09. Pom. gospodarcze4.63
- 10. Garaż37.13
- 11. Taras14.6
- 01. Wiatrołap6.34
- 02. Komunikacja9.94
- 03. Spiżarnia2.54
Rzut poddasza
- 01. Komunikacja16.01
- 02. Garderoba6.88
- 03. Pokój17.46
- 04. Pokój17.93
- 05. Pokój20.59
- 06. Garderoba7.6
- 07. Łazienka9.83
- 08. Pralnia / Suszarnia10.47
Rzut piwnicy
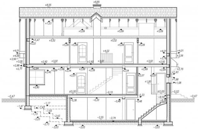
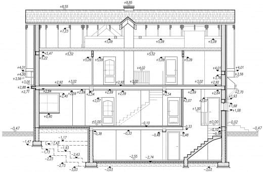
Przekrój A-A
Przekrój B-B
Dane techniczne
- Powierzchnia użytkowa181.57 m²
- Powierzchnia zabudowy170.6 m²
- Liczba pokoi22
- Powierzchnia dachu275.5 m²
- Kubatura1359.5 m³
- Wysokość domu9 m
- Piwnicatak
- PoddaszeUżytkowe
- Minimalne wymiary działki22.3 x 22.2m
- GarażDwustanowiskowy
- Rodzaj dachuWielospadowy
- Kąt nach. dachu40°
Zawartość projektu
Projekty są dostępne w wersji książkowej, drukowanej w tak zwanym w nowym trybie 3 egzemplarze projektu architektoniczno-budowlanego oraz 3 egzemplarze projektu technicznego. Na życzenie przesyłamy rzuty i przekroje wersji podstawowych dokumentacji w formacie PDF
Każdy projekt architektoniczno-budowlany domu składa się z następujących części:
- strona tytułowa,
- oświadczenie
- część opisowa projektu architektoniczno-budowlanego,
- projektowana charakterystyka energetyczna z analizą,
- część rysunkowej projektu architektoniczno-budowlanego,
- zaświadczenia i uprawnienia.
Każdy projekt techniczny domu składa się z:
- strony tytułowej,
- oświadczenia,
- części opisowej projektu technicznego,
- części rysunkowej projektu technicznego,
- części konstrukcyjnej,
- zaświadczenia i uprawnień,
- zestawień drewna i stali,
-instalacji elektrycznej i odgromowej,
-instalacji sanitarnych, gazowych i centralnego ogrzewania.
Do projektu na życzenie dołączamy obliczenia statyczno-wytrzymałościowe.
Inwestor otrzymuje 3 opieczętowane sztuki projektu architektoniczno-budowlanego oraz 3 egzemplarze projektu technicznego tworzące komplet, każdy z plombą zabezpieczającą i oryginalnym hologramem biura.
Pierwszy egzemplarz tomu I zawiera zgodę in blanco na wszystkie zmiany wprowadzane do projektu po zakupie przez lokalnego wybranego na własną rękę przez Inwestora architekta adaptującego/kierownika budowy. Do teczki projektów dołączamy także zaświadczenia i aktualne wpisy do Izb autorów projektu oraz wpisy aktualne na czas sporządzenia projektu.
Dodatki
Bezpłatne dodatki
GratisZestaw umów
GratisZmiany w projekcie
GratisTablica budowy
GratisDziennik budowy
Płatne dodatki

Kosztorys
470 zł

Dodatkowy egzemplarz projektu
450 zł

Projekt wentylacji mechanicznej z rekuperatorem
450 zł

Projekt fotowoltaiki dla domu
750 zł

Projekt instalacji z ogrzewaniem podłogowym
400 zł

Elektroniczna wersja projektu
600 zł













