Promocja ważna do
26-02-2026
- Typ projektuWolnostojący
- Powierzchnia użytkowa93.52 m²
- KondygnacjeParterowy, z poddaszem
- GarażJednostanowiskowy
- DachDwuspadowy
- Kąt nach. dachu45°
- Odbicie lustrzaneTak
- Czas realizacjido 10 dni roboczych Zobacz więcej >
Opis
Zgodność z WT 2021 i Eurokodami
Ze względu na dostosowywanie projektu do standardu WT 2021, czas realizacji może się różnić od standardowego.
Skontaktuj się z nami aby poznać szczegóły dotyczące wybranego projektu.
Opis projektu
Projekt Lolek N to nowoczesna wersja klasycznego projektu Lolek - jednego z najlepiej sprzedających się domów. Wychodząc na przeciw obecnym trendom zmieniliśmy w domu elewacje oraz nieco powiększyliśmy niektóre otwory okienne. Dom stał się modny pozostając jednocześnie prostym i tanim w budowie, a za to zawsze był ceniony. Sprawdzone rozwiązania we wnętrzu domu pozostały tak samo funkcjonalne, jak w wersji tradycyjnej i zapewniają komfortowe warunki mieszkalne dla czteroosobowej rodziny. Strefa dzienna znajduje się na parterze, zaś pomieszczenia sypialne na poddaszu domu. Zaletą domu jest duże pomieszczenie gospodarcze.
- mały jednorodzinny dom parterowy z poddaszem użytkowym i garażem jednostanowiskowym w obrębie bryły budynku, niepodpiwniczony
- przeznaczony dla 4 osób
- na parterze zaprojektowano wiatrołap, hol, salon z kominkiem i wyjściem na taras, otwartą kuchnię z aneksem jadalnym, ogólnodostępny WC, kotłownię oraz garaż
- na poddaszu znajdują się 3 sypialnie (sypialnia rodziców z osobistą garderobą i balkonem) oraz duża, ogólnodostępna łazienka
- istnieje wersja drewniana z kątem dachu 45°: Lolek drewniany
- istnieje wersja tradycyjna ze ścianą trójwarstwową
- bardzo prosty w budowie
- ogrzewanie olejowe, gazowe lub na paliwo stałe (np. ekogroszek, pelety)
Konstrukcja
Ściany zewnętrzne: tradycyjne dwuwarstwowe (pustak ceramiczny + styropian), na fragmentach szalówka drewniana lub tynk imitujący drewnoStrop: żelbetowe monolityczne
Dach: o konstrukcji drewnianej z pokryciem z dachówki ceramicznej, cementowej lub blachodachówki
Schody: ażurowe o konstrukcji drewnianej lub stalowej
Rzuty
Dane techniczne
- Powierzchnia użytkowa93.52 m²
- Powierzchnia netto116 m²
- Powierzchnia zabudowy90.05 m²
- Kubatura585 m³
- Wysokość domu8.8 m
- PoddaszeUżytkowe
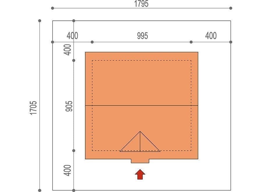
- Minimalne wymiary działki17.05 x 17.95m
- GarażJednostanowiskowy
- Rodzaj dachuDwuspadowy
- Kąt nach. dachu45°
Zawartość projektu
Komplet dokumentacji projektowej składa się z trzech egzemplarzy projektu architektoniczno-budowlanego oraz trzech egzemplarzy projektu technicznego.
Dokumentacja jest zgodna z WT2021 oraz Eurokodami i zawiera:
- informacje jak uzyskać pozwolenie na budowę
- zakres obowiązków projektanta dokonującego adaptacji
- zgoda autora projektu na dokonanie zmian w dokumentacji projektowej
- wytyczne techniczne dla oceny energetycznej budynku
- przedmiar
- zestawienie materiałów, sprzętu i roboczogodzin
- projekt architektoniczny
- wizualizację
- projekt konstrukcyjny
- projekt instalacji sanitarnych
- projekt instalacji elektrycznych
- projekt rekuperacji
- projekt systemu solarów do ogrzania wody użytkowej.
Projektanci wyrażają zgodę na następujące zmiany w dokumentacji projektowej:
- zmiany technologiczne i materiałowe - rodzaj stropu, schodów, materiały ścienne, izolacyjne i wykończeniowe, pokrycie dachowe
- dostosowanie posadowienia budynku do warunków geotechnicznych i zmiana wysokości posadowienia
- dostosowanie konstrukcji budynku do stref obciążenia śniegiem i wiatrem
- wykonanie częściowego lub całkowitego podpiwniczenia budynku
- zmiany usytuowania ścian nośnych, działowych i otworów drzwiowych
- zmiany funkcji i układu pomieszczeń
- zmiana nachylenia kąta połaci dachowej, konstrukcji i kształtu dachu, doprojektowanie, przeprojektowanie lub likwidacja lukarn
- zmiany w wymiarach zewnętrznych i wysokości budynku (powiększenie lub pomniejszenie budynku)
- zmiana materiałów i rozwiązań instalacyjnych, przebiegu instalacji wewnętrznych, zmiana sposobu ogrzewania
- przeprojektowanie kominów
- zmiana usytuowania, ilości, kształtu i wielkości okien i drzwi w elewacjach zewnętrznych budynku
- zmiana kolorystyki budynku
- zmiana kształtu i usytuowania tarasów, schodów zewnętrznych i wewnętrznych budynku
- zmiana wysokości kondygnacji oraz podwyższenie ścianki kolankowej
- likwidacja lub zmniejszenie podcieni i wnęk w bryle budynku
- likwidacja, przeprojektowanie lub doprojektowanie słupów, balkonów i wykuszy
- zmiana poddasza na użytkowe lub nieużytkowe.
Powyższe zmiany mogą dokonać osoby posiadające odpowiednie uprawnienia zgodnie z obowiązującymi normami i przepisami prawa budowlanego. Wyżej wymienione zmiany powinny być naniesione czerwonym pisakiem w czterech oryginalnych egzemplarzach projektu gotowego lub dołączone jako aneks. Dokonanie zmian wybiegających poza wymieniony zakres wymaga zgody autora projektu.
Dodatki
Bezpłatne dodatki
GratisZestaw umów
GratisZmiany w projekcie
GratisTablica budowy
GratisDziennik budowy
Płatne dodatki

Kosztorys inwestorski
600 zł

Dodatkowy egzemplarz projektu
500 zł














