Projekt domu LUBLANA 2 dom letniskowy (zabudowa szeregowa)
- Typ projektuBliźniak
- Powierzchnia użytkowa132.48 m²
- Kondygnacje
- GarażBez garażu
- DachJednospadowy
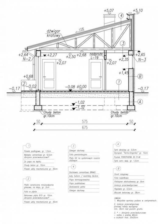
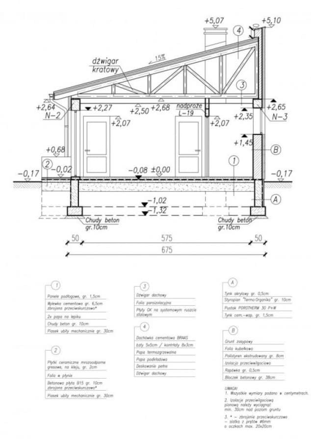
- Kąt nach. dachu15°
- Odbicie lustrzaneTak
- Czas realizacjido 10 dni roboczych Zobacz więcej >
Opis
Zgodność z WT 2021 i Eurokodami
Ze względu na dostosowywanie projektu do standardu WT 2021, czas realizacji może się różnić od standardowego.
Skontaktuj się z nami aby poznać szczegóły dotyczące wybranego projektu.
Opis projektu
LUBLANA 2
Pow. użytkowa - 44,16 m2
Pow. zabudowy - 57,51 m2
Pow. całkowita - 57,51 m2
Kubatura - 227 m3
Kąt dachu - 15
Zobacz projekt Lublana - dom letniskowy
Konstrukcja
Technologia tradycyjna : - ściany zewnętrzne murowane grubości 30 cm, działowe gr. 12 cm. Wszystkie ściany wykonane z pustaków ceramicznych "POROTHERM". - konstrukcja więźby dachowej drewniana, pokrycie dachówka ceramiczna. - istnieje możliwośc adaptacji obiektu na budynek całoroczny - docieplenie warstwą styropianu gr. 10 cm. - instalacja grzewcza w wersji letniskowej i całorocznej: kominek z płaszczem wodnym.
Rzuty
Rzut przyziemia
- 1. Pokój dzienny 19.77
- 2. Kuchnia 3.82
- 3. Łazienka 2.65
- 5. Pokój8.77
- 4. Pokój 9.15
- Razem 3 segmenty 132.48
Przekroj A-A
Dane techniczne
- Powierzchnia użytkowa132.48 m²
- Powierzchnia zabudowy167.17 m²
- Liczba pokoi15
- Powierzchnia dachu175 m²
- Kubatura681 m³
- Wysokość domu5.27 m
- Minimalne wymiary działki13.7 x 29.95m
- GarażBez garażu
- Rodzaj dachuJednospadowy
- Kąt nach. dachu15°
Zawartość projektu
Projekty są dostępne w wersji książkowej, drukowanej w tak zwanym w nowym trybie 3 egzemplarze projektu architektoniczno-budowlanego oraz 3 egzemplarze projektu technicznego. Na życzenie przesyłamy rzuty i przekroje wersji podstawowych dokumentacji w formacie PDF
Każdy projekt architektoniczno-budowlany domu składa się z następujących części:
- strona tytułowa,
- oświadczenie
- część opisowa projektu architektoniczno-budowlanego,
- projektowana charakterystyka energetyczna z analizą,
- część rysunkowej projektu architektoniczno-budowlanego,
- zaświadczenia i uprawnienia.
Każdy projekt techniczny domu składa się z:
- strony tytułowej,
- oświadczenia,
- części opisowej projektu technicznego,
- części rysunkowej projektu technicznego,
- części konstrukcyjnej,
- zaświadczenia i uprawnień,
- zestawień drewna i stali,
-instalacji elektrycznej i odgromowej,
-instalacji sanitarnych, gazowych i centralnego ogrzewania.
Do projektu na życzenie dołączamy obliczenia statyczno-wytrzymałościowe.
Inwestor otrzymuje 3 opieczętowane sztuki projektu architektoniczno-budowlanego oraz 3 egzemplarze projektu technicznego tworzące komplet, każdy z plombą zabezpieczającą i oryginalnym hologramem biura.
Pierwszy egzemplarz tomu I zawiera zgodę in blanco na wszystkie zmiany wprowadzane do projektu po zakupie przez lokalnego wybranego na własną rękę przez Inwestora architekta adaptującego/kierownika budowy. Do teczki projektów dołączamy także zaświadczenia i aktualne wpisy do Izb autorów projektu oraz wpisy aktualne na czas sporządzenia projektu.
Dodatki
Bezpłatne dodatki
GratisZestaw umów
GratisZmiany w projekcie
GratisTablica budowy
GratisDziennik budowy
Płatne dodatki

Kosztorys
470 zł

Dodatkowy egzemplarz projektu
450 zł

Projekt wentylacji mechanicznej z rekuperatorem
450 zł

Projekt fotowoltaiki dla domu
750 zł

Projekt instalacji z ogrzewaniem podłogowym
400 zł

Elektroniczna wersja projektu
600 zł









