Projekt domu Magnetyt z garażem 2st.
- Typ projektuWolnostojący
- Powierzchnia użytkowa166.5 m²
- Kondygnacje
- GarażDwustanowiskowy
- DachWielospadowy
- Kąt nach. dachu35°
- Odbicie lustrzaneTak
- Czas realizacjimax. czas realizacji 10 dni Zobacz więcej >
Opis
Zgodność z WT 2021 i Eurokodami
Ze względu na dostosowywanie projektu do standardu WT 2021, czas realizacji może się różnić od standardowego.
Skontaktuj się z nami aby poznać szczegóły dotyczące wybranego projektu.
Opis projektu
Dom jednorodzinny Magnetyt to propozycja parterowego domu z garażem na dwa samochody. Zastosowana kolorystyka utrzymana jest w modnych trendach, biel elewacji doskonale współgra z naturalnym drewnem. Nowoczesny charakter budynku uzyskano również poprzez zastosowanie dużych przeszkleń oraz zewnętrznych elementów stalowych- pergola. Centrum budynku stanowi wspólna przestrzeń dla rodziny w postaci połączonych ze sobą : kuchni, salonu i jadalni. Funkcja domu została wyposażona także w pokój małżeński z własna łazienką, garderoba oraz indywidualnym wyjściem na taras. Strefa nocna dla dzieci to 3 wygodne sypialnie ze wspólną łazienką. Zaprojektowano również oddzielne WC, dostępną z wiatrołapu kotłownię a dalej garaż. Nowoczesny Magnetyt to idealna propozycja dla współczesnej rodziny.
Konstrukcja
fundamenty: betonowe
ściany: porotherm+styropian
rodzaj stropu: mitek
elewacje: tynk strukturalny
pokrycie dachu: blacha
Rzuty
Parter
- m²
- 1. Wiatrołap+garderoba7.6
- 2. Spiżarnia3.3
- 3. Kuchnia16.2
- 4. Jadalnia19.5
- 5. Salon32.7
- 6. Korytarz12.8
- 7. Pokój17.9
- 8. Łazienka6
- 9. Pokój13.5
- 10. Pokój12.7
- 11. Łazienka8.8
- 12. WC1.8
- 13. Pokój13.7
- 14. Pom. tech. CO, pralnia*5.3
- 15. Garaż*39.3
Przekrój
Usytuowanie na działce
Dane techniczne
- Powierzchnia użytkowa166.5 m²
- Powierzchnia zabudowy261.5 m²
- KominekTak
- Liczba łazienek2
- Liczba pokoi5
- Powierzchnia dachu275 m²
- Kubatura482 m³
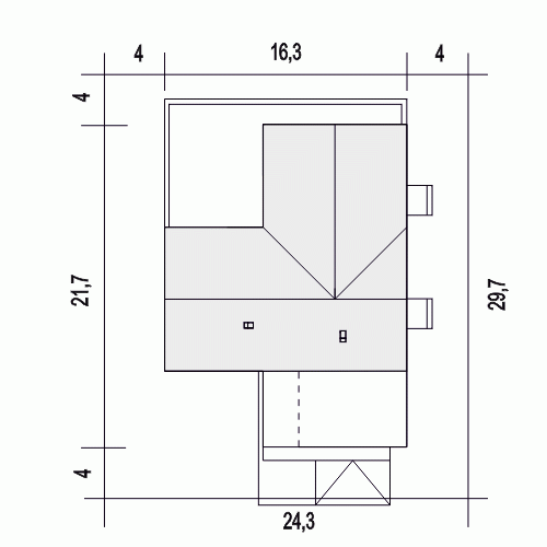
- Długość domu21.7 m
- Szerokość domu16.3 m
- Wysokość domu7 m
- Minimalne wymiary działki29.7 x 24.3m
- GarażDwustanowiskowy
- Rodzaj dachuWielospadowy
- Kąt nach. dachu35°
Instalacja grzewcza
- Instalacja grzewczaGaz
- Instalacja opcjonalna
Zawartość projektu
Zgodnie ze znowelizowaną Ustawą Prawo Budowlane art.34 ust.3, na projekt budowlany składają się trzy części:
- projekt zagospodarowania działki lub terenu
- projekt architektoniczno-budowlany
- projekt techniczny
Nasze projekty oferujemy w 3 egzemplarzach, zawierających projekt architektoniczno-budowlany i projekt techniczny. Projekt zagospodarowania działki lub terenu nie wchodzi w skład projektu oferowanego do sprzedaży. Projekt ten należy zlecić we własnym zakresie lokalnemu projektantowi, który opracuje go na podstawie danych zawartych w projekcie architektoniczno-budowlanym i technicznym, po dostosowaniu projektu do warunków lokalnych i wymagań inwestora.
UWAGA: wszystkie egzemplarze projektu zabezpieczone są hologramami, w części rysunkowej posiadają nadruki zabezpieczające w kolorze zielonym. Zalecamy aby po otrzymaniu przesyłki kontrolować czy na pierwszych stronach projektu znajduje się hologram i czy na rysunkach widoczne są w/w nadruki potwierdzające oryginalność projektu.
Wyrażamy zgodę na wszelkie zmiany zgodne z obowiązującymi przepisami pod warunkiem wprowadzenia ich przez uprawnioną osobę.
Wszystkie zmiany wymienione powyżej powinny być naniesione na oryginał projektu katalogowego trwałą techniką graficzną w kolorze czerwonym lub dołączone jako aneks i podpisane przez osobę uprawnioną dokonująca adaptacji.
**ważne informacje
Projekt w fazie koncepcji dostępny z wydłużonym terminem realizacji. Przy zamówieniu ustalamy termin i pobieramy zadatek 50% podstawowej ceny projektu (jako koszty usługi przygotowania dokumentacji do standardu projektu gotowego, w przypadku rezygnacji z usługi, zadatek nie podlega zwrotowi).
Cena za dodatkowy egzemplarz projektu jest zależna od nazwy projektu!
Dodatki
Bezpłatne dodatki
GratisZestaw umów
GratisZmiany w projekcie
GratisTablica budowy
GratisDziennik budowy
Płatne dodatki

Kosztorys - stan wykończony
540 zł

Projekt wentylacji mechanicznej
1 000 zł
















