Promocja ważna do
23-04-2026
- Typ projektuWolnostojący
- Powierzchnia użytkowa108.43 m²
- KondygnacjeParterowy, z poddaszem
- GarażBez garażu
- Kąt nach. dachu30°
- Odbicie lustrzaneTak
- Czas realizacjido 10 dni roboczych Zobacz więcej >
Opis
Zgodność z WT 2021 i Eurokodami
Ze względu na dostosowywanie projektu do standardu WT 2021, czas realizacji może się różnić od standardowego.
Skontaktuj się z nami aby poznać szczegóły dotyczące wybranego projektu.
Opis projektu
Jednogarażowa nowość Maja II N+ to kolejna odmiana kultowej Mai z poddaszem użytkowym. Tym razem elewacje obfitują w aktualnie modne, chłodne materiały. Jest to bez wątpienia dom dla osób lubiących proste, klasyczne i funkcjonalne bryły. Budynek jest nieduży, ale zaskakuje rozwiązaniami architektonicznymi. Jego atuty to z pewnością otwarty na dwie kondygnacje salon z modnymi oknami otwierającymi przestrzeń domu na ogród oraz zadaszony taras z kominkiem. Na parterze znajdują się również dwa pokoje oddzielone od głównej strefy dziennej komunikacją i klatką schodową. Poddasze Mai to typowa strefa nocna z sypialniami i łazienką. Istnieje wersja dwugarażowa tego domu – Maja II N 2G+ z nieznacznie większą powierzchnia użytkową, dzięki której każda z sypialni na poddaszu zyskała oddzielną garderobę.
- jednorodzinny dom parterowy z poddaszem użytkowym i jednostanowiskowym garażem (istnieje wersja dwustanowiskowa - Maja II N 2G+)
- niepodpiwniczony
- przeznaczony dla 4–5 osób
- na parterze zaprojektowano wiatrołap, hol, salon z kominkiem i wyjściem na taras, otwartą kuchnię, dodatkowy pokój / gabinet, sypialnię, ogólnodostępny WC, ogólnodostępną łazienkę, kotłownię oraz garaż
- na poddaszu znajdują się 2 sypialnie oraz ogólnodostępna łazienka
- charakteryzuje się klasyczną bryłą z nowoczesnymi detalami wraz z ekonomicznym i funkcjonalnym rozwiązaniem układu pomieszczeń
- ogrzewanie olejowe, gazowe lub na paliwo stałe (np. ekogroszek, pelety)
Konstrukcja
Ściany zewnętrzne: tradycyjne dwuwarstwowe (pustak ceramiczny + styropian), na fragmentach szalówka drewniana lub tynk imitujący drewnoStrop: żelbetowy monolityczny
Dach: dwuspadowy o konstrukcji drewnianej, pokryty dachówką ceramiczną, cementową lub blachodachówką
Schody: żelbetowe monolityczne
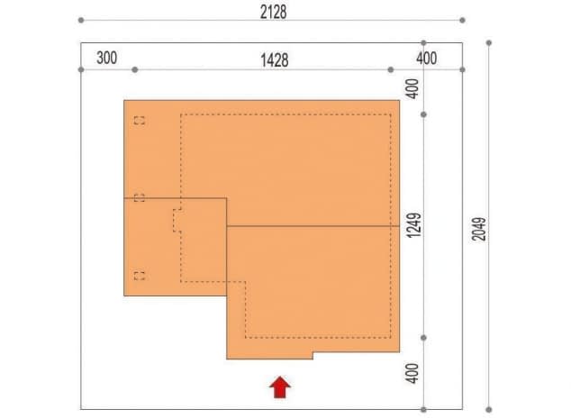
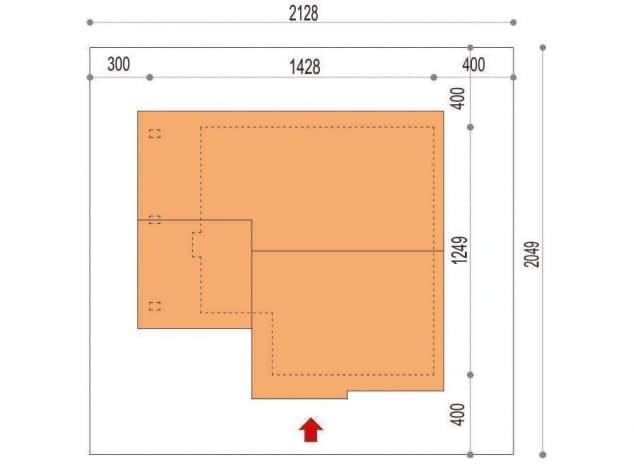
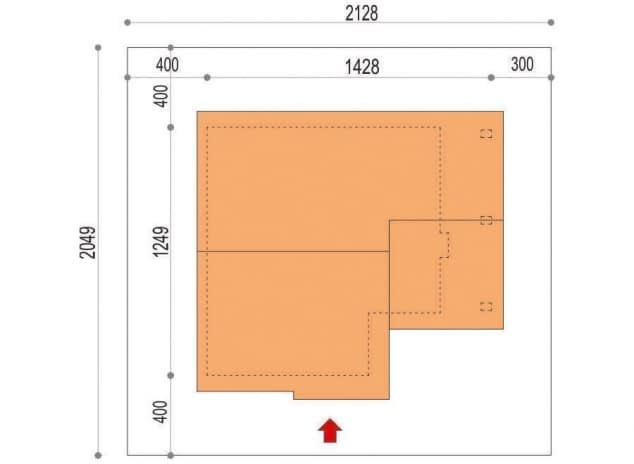
Rzuty
Dane techniczne
- Powierzchnia użytkowa108.43 m²
- Powierzchnia netto132.1 m²
- Powierzchnia zabudowy159.14 m²
- Kubatura827 m³
- Wysokość domu7.29 m
- PoddaszeUżytkowe
- Minimalne wymiary działki20.49 x 21.28m
- GarażBez garażu
- Kąt nach. dachu30°
Zawartość projektu
Komplet dokumentacji projektowej składa się z trzech egzemplarzy projektu architektoniczno-budowlanego oraz trzech egzemplarzy projektu technicznego.
Dokumentacja jest zgodna z WT2021 oraz Eurokodami i zawiera:
- informacje jak uzyskać pozwolenie na budowę
- zakres obowiązków projektanta dokonującego adaptacji
- zgoda autora projektu na dokonanie zmian w dokumentacji projektowej
- wytyczne techniczne dla oceny energetycznej budynku
- przedmiar
- zestawienie materiałów, sprzętu i roboczogodzin
- projekt architektoniczny
- wizualizację
- projekt konstrukcyjny
- projekt instalacji sanitarnych
- projekt instalacji elektrycznych
- projekt rekuperacji
- projekt systemu solarów do ogrzania wody użytkowej.
Projektanci wyrażają zgodę na następujące zmiany w dokumentacji projektowej:
- zmiany technologiczne i materiałowe - rodzaj stropu, schodów, materiały ścienne, izolacyjne i wykończeniowe, pokrycie dachowe
- dostosowanie posadowienia budynku do warunków geotechnicznych i zmiana wysokości posadowienia
- dostosowanie konstrukcji budynku do stref obciążenia śniegiem i wiatrem
- wykonanie częściowego lub całkowitego podpiwniczenia budynku
- zmiany usytuowania ścian nośnych, działowych i otworów drzwiowych
- zmiany funkcji i układu pomieszczeń
- zmiana nachylenia kąta połaci dachowej, konstrukcji i kształtu dachu, doprojektowanie, przeprojektowanie lub likwidacja lukarn
- zmiany w wymiarach zewnętrznych i wysokości budynku (powiększenie lub pomniejszenie budynku)
- zmiana materiałów i rozwiązań instalacyjnych, przebiegu instalacji wewnętrznych, zmiana sposobu ogrzewania
- przeprojektowanie kominów
- zmiana usytuowania, ilości, kształtu i wielkości okien i drzwi w elewacjach zewnętrznych budynku
- zmiana kolorystyki budynku
- zmiana kształtu i usytuowania tarasów, schodów zewnętrznych i wewnętrznych budynku
- zmiana wysokości kondygnacji oraz podwyższenie ścianki kolankowej
- likwidacja lub zmniejszenie podcieni i wnęk w bryle budynku
- likwidacja, przeprojektowanie lub doprojektowanie słupów, balkonów i wykuszy
- zmiana poddasza na użytkowe lub nieużytkowe.
Powyższe zmiany mogą dokonać osoby posiadające odpowiednie uprawnienia zgodnie z obowiązującymi normami i przepisami prawa budowlanego. Wyżej wymienione zmiany powinny być naniesione czerwonym pisakiem w czterech oryginalnych egzemplarzach projektu gotowego lub dołączone jako aneks. Dokonanie zmian wybiegających poza wymieniony zakres wymaga zgody autora projektu.
Dodatki
Bezpłatne dodatki
GratisZestaw umów
GratisZmiany w projekcie
GratisTablica budowy
GratisDziennik budowy
Płatne dodatki

Kosztorys inwestorski
600 zł

Dodatkowy egzemplarz projektu
500 zł














