Projekt domu Makolągwa BL1 z garażem
- Typ projektuBliźniak
- Powierzchnia użytkowa190.2 m²
- Kondygnacje
- GarażJednostanowiskowy
- DachDwuspadowy
- Kąt nach. dachu35°
- Odbicie lustrzaneTak
- Czas realizacjimax. czas realizacji 10 dni Zobacz więcej >
Opis
Zgodność z WT 2021 i Eurokodami
Ze względu na dostosowywanie projektu do standardu WT 2021, czas realizacji może się różnić od standardowego.
Skontaktuj się z nami aby poznać szczegóły dotyczące wybranego projektu.
Opis projektu
(Uwaga: projekty typu bliźniak oferujemy jako domy dwulokalowe, projekt można zamówić również w zabudowie bliźniaczej)Poniższy opis dotyczy jednego segmentu: Makolągwa to propozycja niedużego domu dedykowanego 4-5 osobowej rodzinie o prostej bryle i optymalnej funkcji. Dom wyposażony został w częściowo wbudowany w garaż, dostępny jest poprzez wiatrołap z wejściem do kotłowni. dalej mamy kuchnię ze spiżarnią, jadalnię oraz salon z kominkiem. Mamy tu również dodatkowy pokój mogący spełniać funkcję gabinetu lub pokoju gościnnego oraz niewielką łazienkę z natryskiem. Pod schodami wygospodarowano miejsce na szafy. Na piętrze zaprojektowano 3 sypialnie, garderobę oraz łazienkę. Makolągwa to przykład domu dla osób praktycznych z ekonomicznym podejściem do inwestycji.
Konstrukcja
Rzuty
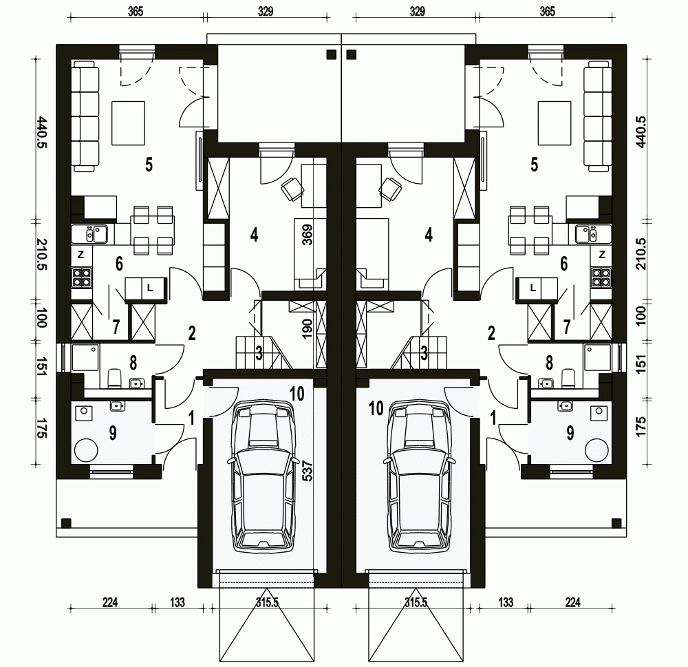
Parter
- m²
- 1. Wiatrołap3
- 2. Komunik., garderoba6.7
- 3. Schody4.2
- 4. Pokój10.7
- 5. Salon16
- 6. Kuchnia, jadalnia8.3
- 7. Spiżarnia1.5
- 8. Łazienka3
- 9. Pom.techniczne*3.8
- 10. Garaż*16.6
Piętro
- m²
- 11. Przedpokój6.2
- 12. Sypialnia9.2
- 13. Sypialnia9.6
- 14. Strych (Garderoba)*2.9
- 15. Łazienka5.7
- 16. Sypialnia11.1
Przekrój
Usytuowanie na działce
Dane techniczne
- Powierzchnia użytkowa190.2 m²
- Powierzchnia zabudowy194.6 m²
- KominekTak
- Liczba łazienek4
- Liczba pokoi10
- Powierzchnia dachu199.6 m²
- Długość domu15.1 m
- Szerokość domu8 m
- Wysokość domu8.5 m
- Minimalne wymiary działki23.1 x 16m
- GarażJednostanowiskowy
- Rodzaj dachuDwuspadowy
- Kąt nach. dachu35°
Instalacja grzewcza
- Instalacja grzewczaGaz
Zawartość projektu
Zgodnie ze znowelizowaną Ustawą Prawo Budowlane art.34 ust.3, na projekt budowlany składają się trzy części:
- projekt zagospodarowania działki lub terenu
- projekt architektoniczno-budowlany
- projekt techniczny
Nasze projekty oferujemy w 3 egzemplarzach, zawierających projekt architektoniczno-budowlany i projekt techniczny. Projekt zagospodarowania działki lub terenu nie wchodzi w skład projektu oferowanego do sprzedaży. Projekt ten należy zlecić we własnym zakresie lokalnemu projektantowi, który opracuje go na podstawie danych zawartych w projekcie architektoniczno-budowlanym i technicznym, po dostosowaniu projektu do warunków lokalnych i wymagań inwestora.
UWAGA: wszystkie egzemplarze projektu zabezpieczone są hologramami, w części rysunkowej posiadają nadruki zabezpieczające w kolorze zielonym. Zalecamy aby po otrzymaniu przesyłki kontrolować czy na pierwszych stronach projektu znajduje się hologram i czy na rysunkach widoczne są w/w nadruki potwierdzające oryginalność projektu.
Wyrażamy zgodę na wszelkie zmiany zgodne z obowiązującymi przepisami pod warunkiem wprowadzenia ich przez uprawnioną osobę.
Wszystkie zmiany wymienione powyżej powinny być naniesione na oryginał projektu katalogowego trwałą techniką graficzną w kolorze czerwonym lub dołączone jako aneks i podpisane przez osobę uprawnioną dokonująca adaptacji.
**ważne informacje
Projekt w fazie koncepcji dostępny z wydłużonym terminem realizacji. Przy zamówieniu ustalamy termin i pobieramy zadatek 50% podstawowej ceny projektu (jako koszty usługi przygotowania dokumentacji do standardu projektu gotowego, w przypadku rezygnacji z usługi, zadatek nie podlega zwrotowi).
Cena za dodatkowy egzemplarz projektu jest zależna od nazwy projektu!
Dodatki
Bezpłatne dodatki
GratisZestaw umów
GratisZmiany w projekcie
GratisTablica budowy
GratisDziennik budowy
Płatne dodatki

Kosztorys - stan wykończony
540 zł

Projekt wentylacji mechanicznej
1 000 zł















