Projekt domu MALIBU 2
- Typ projektuWolnostojący
- Powierzchnia użytkowa134.71 m²
- Kondygnacjez poddaszem
- GarażBez garażu
- DachCzterospadowy
- Kąt nach. dachu43°
- Odbicie lustrzaneTak
- Czas realizacjido 10 dni roboczych Zobacz więcej >
Opis
Konstrukcja
Technologia tradycyjna : - ściany zewnętrzne murowane grubości 30 cm + 10 cm styropian - ściany wewnętrzne (nośne) gr. 25 cm i działowe gr. 12 cm - wszystkie ściany wykonane z pustaków ceramicznych "POROTHERM" - strop gęstożebrowy "POROTHERM" o gr. 23 cm - pokrycie dachówka ceramiczna. - dach wielospadowy oparty na więźbie o konstrukcji drewnianej w układzie mieszanym. - instalacja grzewcza : kocioł gazowy w kotłowni.
Rzuty
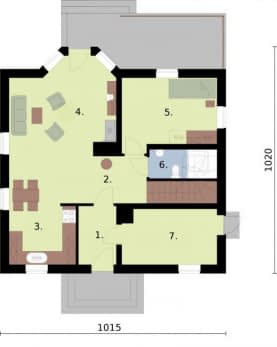
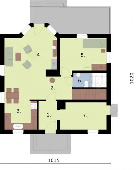
Rzut przyziemia
- 1. Wiatrołap4.48
- 2. Komunikacja8.27
- 6. Łazienka3.95
- 7. Kotłownia10.38
- 3. Kuchnia7.91
- 4. Salon26.64
- 5. Pokój13.22
Rzut poddasza
Dane techniczne
- Powierzchnia użytkowa134.71 m²
- Powierzchnia zabudowy96 m²
- Liczba pokoi12
- Powierzchnia dachu173 m²
- Kubatura613.83 m³
- Wysokość domu8.91 m
- PoddaszeUżytkowe
- Minimalne wymiary działki18.15 x 18.2m
- GarażBez garażu
- Rodzaj dachuCzterospadowy
- Kąt nach. dachu43°
Zawartość projektu
Projekty są dostępne w wersji książkowej, drukowanej w tak zwanym w nowym trybie 3 egzemplarze projektu architektoniczno-budowlanego oraz 3 egzemplarze projektu technicznego. Na życzenie przesyłamy rzuty i przekroje wersji podstawowych dokumentacji w formacie PDF
Każdy projekt architektoniczno-budowlany domu składa się z następujących części:
- strona tytułowa,
- oświadczenie
- część opisowa projektu architektoniczno-budowlanego,
- projektowana charakterystyka energetyczna z analizą,
- część rysunkowej projektu architektoniczno-budowlanego,
- zaświadczenia i uprawnienia.
Każdy projekt techniczny domu składa się z:
- strony tytułowej,
- oświadczenia,
- części opisowej projektu technicznego,
- części rysunkowej projektu technicznego,
- części konstrukcyjnej,
- zaświadczenia i uprawnień,
- zestawień drewna i stali,
-instalacji elektrycznej i odgromowej,
-instalacji sanitarnych, gazowych i centralnego ogrzewania.
Do projektu na życzenie dołączamy obliczenia statyczno-wytrzymałościowe.
Inwestor otrzymuje 3 opieczętowane sztuki projektu architektoniczno-budowlanego oraz 3 egzemplarze projektu technicznego tworzące komplet, każdy z plombą zabezpieczającą i oryginalnym hologramem biura.
Pierwszy egzemplarz tomu I zawiera zgodę in blanco na wszystkie zmiany wprowadzane do projektu po zakupie przez lokalnego wybranego na własną rękę przez Inwestora architekta adaptującego/kierownika budowy. Do teczki projektów dołączamy także zaświadczenia i aktualne wpisy do Izb autorów projektu oraz wpisy aktualne na czas sporządzenia projektu.
Dodatki
Bezpłatne dodatki
GratisZestaw umów
GratisZmiany w projekcie
GratisTablica budowy
GratisDziennik budowy
Płatne dodatki

Kosztorys
370 zł

Dodatkowy egzemplarz projektu
450 zł

Projekt wentylacji mechanicznej z rekuperatorem
450 zł

Projekt fotowoltaiki dla domu
750 zł

Projekt instalacji z ogrzewaniem podłogowym
400 zł








