Projekt domu MARMARIS dom letniskowy
- Typ projektuLetniskowy
- Powierzchnia użytkowa36.73 m²
- KondygnacjeParterowy
- GarażBez garażu
- DachDwuspadowy
- Kąt nach. dachu30°
- Odbicie lustrzaneTak
- Czas realizacjido 10 dni roboczych Zobacz więcej >
Opis
Zgodność z WT 2021 i Eurokodami
Ze względu na dostosowywanie projektu do standardu WT 2021, czas realizacji może się różnić od standardowego.
Skontaktuj się z nami aby poznać szczegóły dotyczące wybranego projektu.
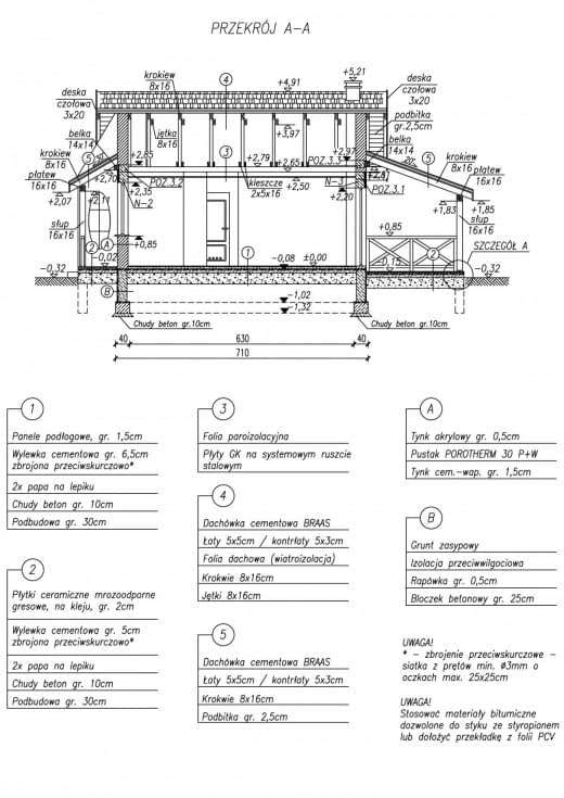
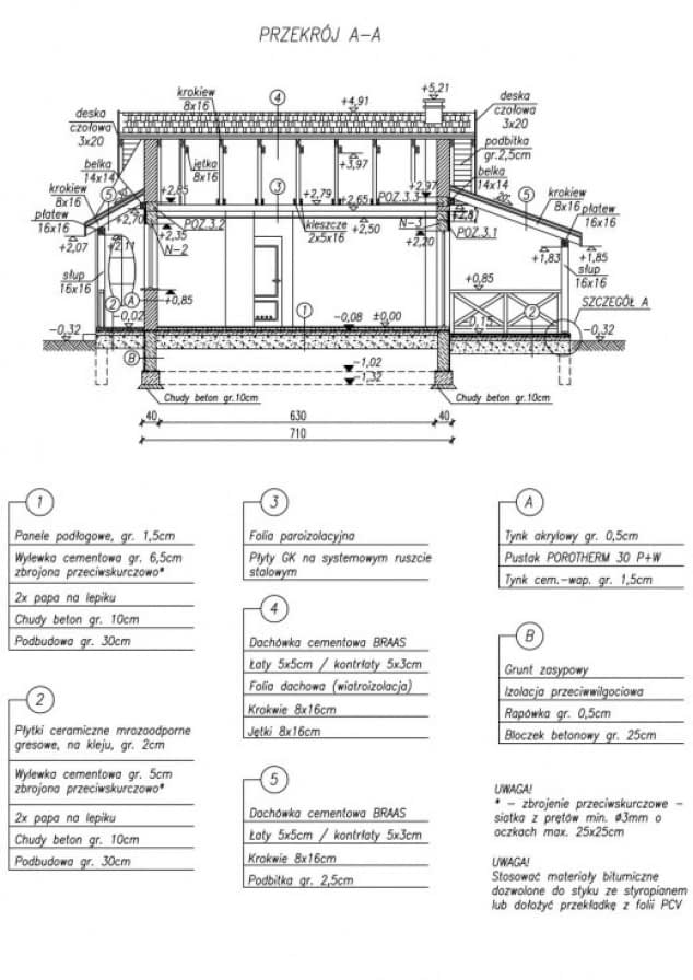
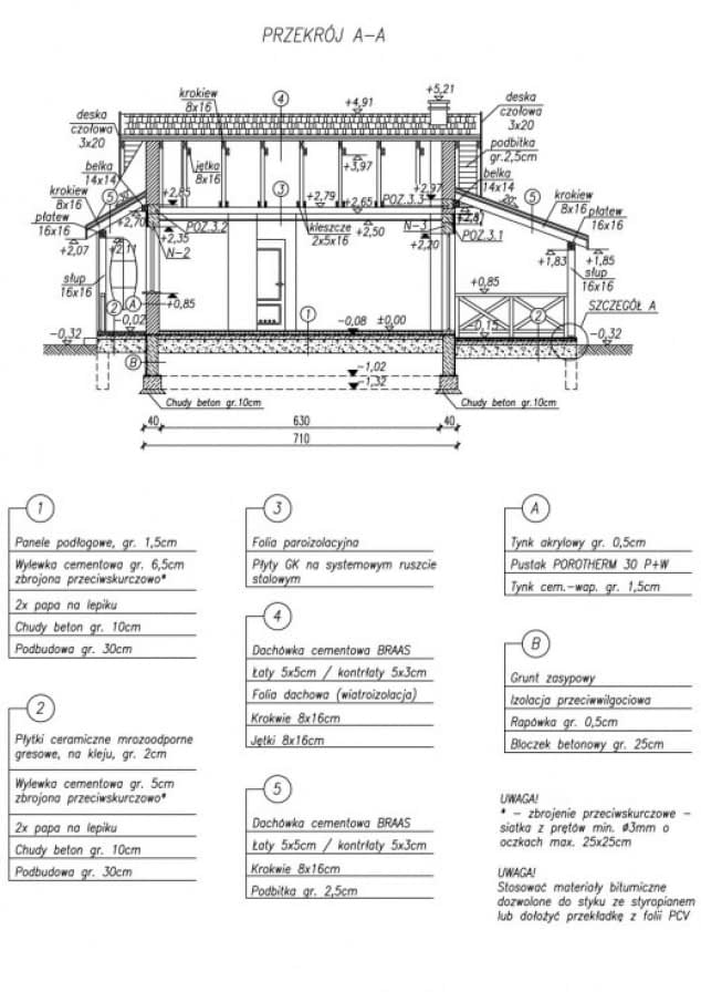
Konstrukcja
- powierzchnia zabudowy - 46,55m2
- kubatura - 236,00m3
- ściany zewnętrzne murowane grubości 30 cm
- ściany wewnętrzne działowe gr. 12 cm
- wszystkie ściany wykonane z pustaków ceramicznych "POROTHERM"
- ściany podwieszane z płyt GK na ruszcie stalowym przymocowanych do konstrukcji za pomocą wieszaków
- konstrukcja więźby dachowej drewniana w układzie krokwiowo-kleszczowym
- pokrycie dachówka ceramiczna
- projekt posiada kominek
Rzuty
Parter
- Wiatrołap2.28
- Komunikacja z garderobą2.65
- Łazienka4.31
- Sypialnia8.2
- Pokój dzienny z aneksem kuchennym19.29
- Weranda10.18
Przekrój A-A
Dane techniczne
- Powierzchnia użytkowa36.73 m²
- Powierzchnia zabudowy46.55 m²
- Liczba pokoi5
- Powierzchnia dachu90 m²
- Kubatura236 m³
- Wysokość domu5.23 m
- Minimalne wymiary działki14.65 x 15m
- GarażBez garażu
- Rodzaj dachuDwuspadowy
- Kąt nach. dachu30°
Zawartość projektu
Projekty są dostępne w wersji książkowej, drukowanej w tak zwanym w nowym trybie 3 egzemplarze projektu architektoniczno-budowlanego oraz 3 egzemplarze projektu technicznego. Na życzenie przesyłamy rzuty i przekroje wersji podstawowych dokumentacji w formacie PDF
Każdy projekt architektoniczno-budowlany domu składa się z następujących części:
- strona tytułowa,
- oświadczenie
- część opisowa projektu architektoniczno-budowlanego,
- projektowana charakterystyka energetyczna z analizą,
- część rysunkowej projektu architektoniczno-budowlanego,
- zaświadczenia i uprawnienia.
Każdy projekt techniczny domu składa się z:
- strony tytułowej,
- oświadczenia,
- części opisowej projektu technicznego,
- części rysunkowej projektu technicznego,
- części konstrukcyjnej,
- zaświadczenia i uprawnień,
- zestawień drewna i stali,
-instalacji elektrycznej i odgromowej,
-instalacji sanitarnych, gazowych i centralnego ogrzewania.
Do projektu na życzenie dołączamy obliczenia statyczno-wytrzymałościowe.
Inwestor otrzymuje 3 opieczętowane sztuki projektu architektoniczno-budowlanego oraz 3 egzemplarze projektu technicznego tworzące komplet, każdy z plombą zabezpieczającą i oryginalnym hologramem biura.
Pierwszy egzemplarz tomu I zawiera zgodę in blanco na wszystkie zmiany wprowadzane do projektu po zakupie przez lokalnego wybranego na własną rękę przez Inwestora architekta adaptującego/kierownika budowy. Do teczki projektów dołączamy także zaświadczenia i aktualne wpisy do Izb autorów projektu oraz wpisy aktualne na czas sporządzenia projektu.
Dodatki
Bezpłatne dodatki
GratisZestaw umów
GratisZmiany w projekcie
GratisTablica budowy
GratisDziennik budowy
Płatne dodatki

Kosztorys
470 zł

Dodatkowy egzemplarz projektu
450 zł

Projekt wentylacji mechanicznej z rekuperatorem
450 zł

Projekt fotowoltaiki dla domu
750 zł

Projekt instalacji z ogrzewaniem podłogowym
400 zł

Elektroniczna wersja projektu
600 zł









