Projekt domu Mazurek II BL1 z garażem
Promocja ważna do
24-04-2026
- Typ projektuBliźniak
- Powierzchnia użytkowa212.6 m²
- Kondygnacje
- GarażJednostanowiskowy
- DachDwuspadowy
- Kąt nach. dachu35°
- Odbicie lustrzaneTak
- Czas realizacjimax. czas realizacji 10 dni Zobacz więcej >
Opis
Zgodność z WT 2021 i Eurokodami
Ze względu na dostosowywanie projektu do standardu WT 2021, czas realizacji może się różnić od standardowego.
Skontaktuj się z nami aby poznać szczegóły dotyczące wybranego projektu.
Opis projektu
(Uwaga: projekty typu bliźniak oferujemy jako domy dwulokalowe, projekt można zamówić również w zabudowie bliźniaczej)Opis dotyczy jednego segmentu:Propozycja Mazurek II to niewielki, komfortowy dom z garażem na jedno auto. Projekt poprzez prostą konstrukcję i zwartą bryłę stawia na ekonomię zarówno podczas budowy jak i w eksploatacji. Mazurek II dedykowany jest dla 4-5 osobowej rodziny. Parter budynku to salon połączony z kuchnią i jadalnią, pokój mogący pełnić rolę gabinetu lub pokoju gościnnego, nieduża łazienka, pomieszczenie techniczne z piecem. Pod schodami prowadzącymi na piętro wygospodarowano miejsce na spiżarnię albo garderobę. Piętro to 3 sypialnie, łazienka z miejscem na pralkę. Projekt przewidziany jest do zabudowy wolnostojącej, bliźniaczej oraz szeregowej.
Konstrukcja
Rzuty
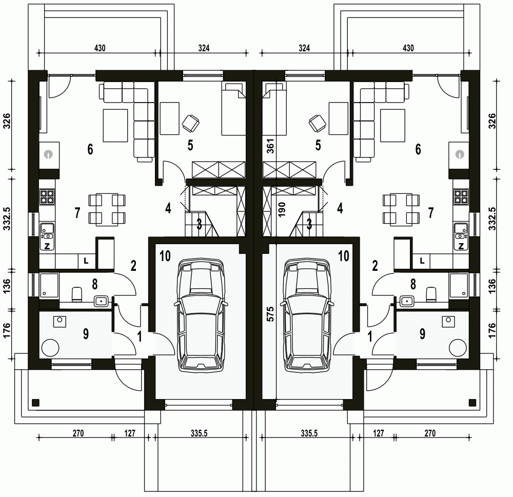
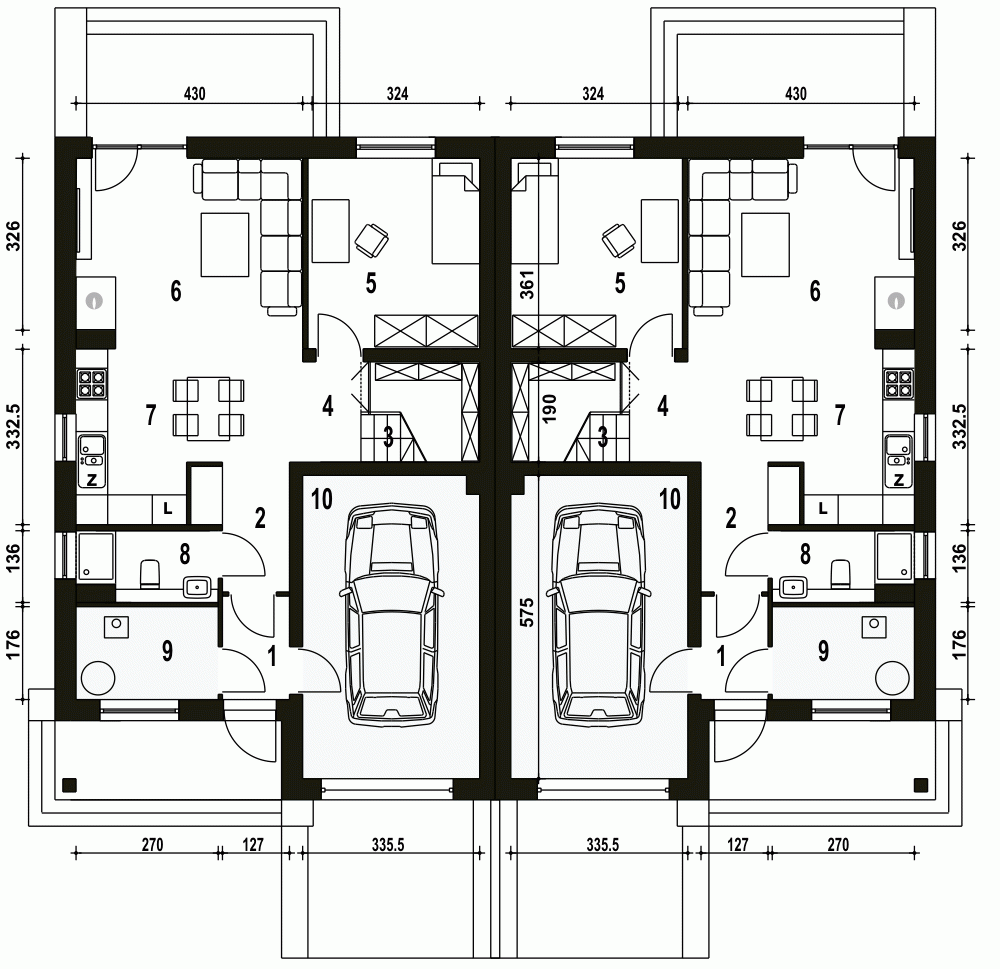
Parter
- m²
- 1. Wiatrołap2.4
- 2. Hol3.7
- 3. Schody4.2
- 4. Przedp.+Spiżarnia3.3
- 5. Pokój11.5
- 6. Salon19.8
- 7. Kuchnia, jadalnia6.8
- 8. Łazienka3.3
- 9. Pom.techniczne*4.4
- 10. Garaż*19
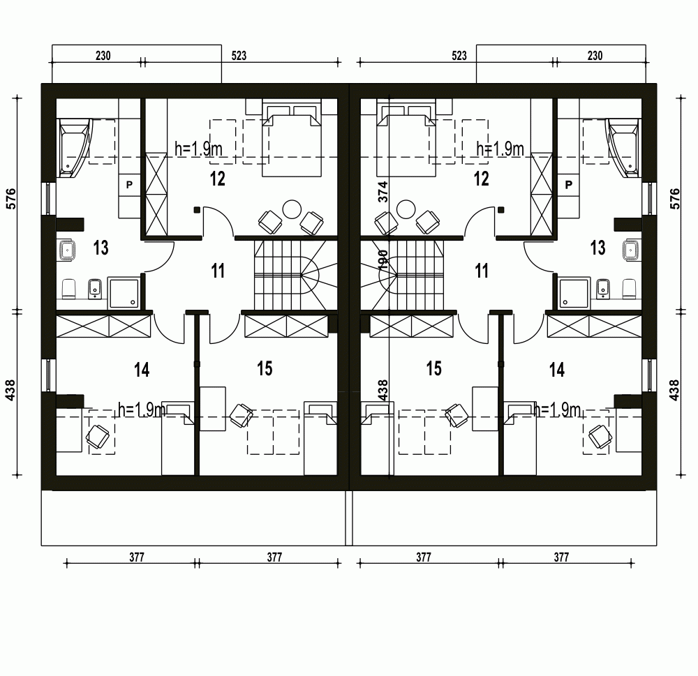
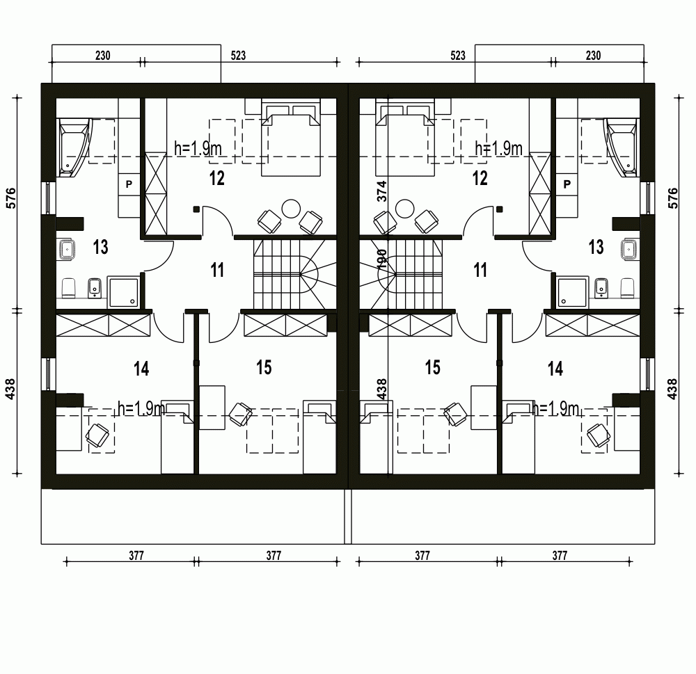
Piętro
Przekrój
Usytuowanie na działce
Dane techniczne
- Powierzchnia użytkowa212.6 m²
- Powierzchnia zabudowy201 m²
- KominekTak
- Liczba łazienek4
- Liczba pokoi10
- Powierzchnia dachu229 m²
- Kubatura708 m³
- Długość domu12.7 m
- Szerokość domu16.8 m
- Wysokość domu8.4 m
- Minimalne wymiary działki20.7 x 24.8m
- GarażJednostanowiskowy
- Rodzaj dachuDwuspadowy
- Kąt nach. dachu35°
Instalacja grzewcza
- Instalacja grzewczaGaz, Paliwo stałe
- Instalacja opcjonalna
Zawartość projektu
Zgodnie ze znowelizowaną Ustawą Prawo Budowlane art.34 ust.3, na projekt budowlany składają się trzy części:
- projekt zagospodarowania działki lub terenu
- projekt architektoniczno-budowlany
- projekt techniczny
Nasze projekty oferujemy w 3 egzemplarzach, zawierających projekt architektoniczno-budowlany i projekt techniczny. Projekt zagospodarowania działki lub terenu nie wchodzi w skład projektu oferowanego do sprzedaży. Projekt ten należy zlecić we własnym zakresie lokalnemu projektantowi, który opracuje go na podstawie danych zawartych w projekcie architektoniczno-budowlanym i technicznym, po dostosowaniu projektu do warunków lokalnych i wymagań inwestora.
UWAGA: wszystkie egzemplarze projektu zabezpieczone są hologramami, w części rysunkowej posiadają nadruki zabezpieczające w kolorze zielonym. Zalecamy aby po otrzymaniu przesyłki kontrolować czy na pierwszych stronach projektu znajduje się hologram i czy na rysunkach widoczne są w/w nadruki potwierdzające oryginalność projektu.
Wyrażamy zgodę na wszelkie zmiany zgodne z obowiązującymi przepisami pod warunkiem wprowadzenia ich przez uprawnioną osobę.
Wszystkie zmiany wymienione powyżej powinny być naniesione na oryginał projektu katalogowego trwałą techniką graficzną w kolorze czerwonym lub dołączone jako aneks i podpisane przez osobę uprawnioną dokonująca adaptacji.
**ważne informacje
Projekt w fazie koncepcji dostępny z wydłużonym terminem realizacji. Przy zamówieniu ustalamy termin i pobieramy zadatek 50% podstawowej ceny projektu (jako koszty usługi przygotowania dokumentacji do standardu projektu gotowego, w przypadku rezygnacji z usługi, zadatek nie podlega zwrotowi).
Cena za dodatkowy egzemplarz projektu jest zależna od nazwy projektu!
Dodatki
Bezpłatne dodatki
GratisZestaw umów
GratisZmiany w projekcie
GratisTablica budowy
GratisDziennik budowy
Płatne dodatki

Kosztorys - stan wykończony
540 zł

Projekt wentylacji mechanicznej
1 000 zł















