Projekt domu Melonik z garażem
- Typ projektuWolnostojący
- Powierzchnia użytkowa116.9 m²
- Kondygnacje
- GarażJednostanowiskowy
- Kąt nach. dachu40°
- Odbicie lustrzaneTak
- Czas realizacjido 10 dni roboczych Zobacz więcej >
Opis
Zgodność z WT 2021 i Eurokodami
Ze względu na dostosowywanie projektu do standardu WT 2021, czas realizacji może się różnić od standardowego.
Skontaktuj się z nami aby poznać szczegóły dotyczące wybranego projektu.
Opis projektu
Projekt domu Melonik to przykład nowoczesnego, taniego domu z poddaszem i z garażem jednostanowiskowym. Wnętrze podzielono na otwarty na kuchnię salon i dodatkowy pokój na parterze oraz trzy sypialnie na poddaszu. Duże pomieszczenie gospodarcze jest jednocześnie też śluzą oddzielającą garaż od części mieszkalnej. Okno tarasowe od ogrodu otacza rama obłożona drewnem, stanowiąca też zadaszenie części tarasu. Na dwuspadowym dachu można od strony południowej przewidzieć zastosowanie kolektorów, albo montaż fotowoltaiki. Na wszystkie zmiany na etapie adaptacji wydajemy zgodę bezpłatnie. Dokumentacja oferowana jest również w wersji lustrzanej.Rzuty
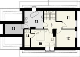
Parter
- 1. wiatrołap3.9
- 2. hall8.6
- 3. pokój dzienny z kuchnią30.2
- 4. pokój13
- 5. łazienka3.8
- 6. spiżarka1.8
- 7.pom. gospodarcze6.3
- 8. garaż19.3
Piętro
Rzut na działce
Dane techniczne
- Powierzchnia użytkowa116.9 m²
- Powierzchnia zabudowy112.8 m²
- Kubatura616 m³
- Wysokość domu8.13 m
- Minimalne wymiary działki20.8 x 16.7m
- GarażJednostanowiskowy
- Kąt nach. dachu40°
Zawartość projektu
Dokumentacja projektowa dostarczana jest Państwu w trzech identycznych egzemplarzach projektu architektoniczno-budowlanego służących do uzyskania pozwolenia na budowę jednego domu wraz z jednym, dwutomowym egzemplarzem projektu technicznego, który nie jest załączany do wniosku o pozwolenie na budowę i nie podlega urzędowemu zatwierdzeniu. Wszystkie projekty domów są zgodne z warunkami technicznymi WT 2021.
W projekcie architektoniczno-budowlanym opisane zostały podstawowe dane budynku, takie jak: zestawienie powierzchni pomieszczeń, warstwy budowlane, materiały wykończeniowe, dane dotyczące warunków ochrony przeciwpożarowej. Rysunki przedstawiają elewacje, rzuty fundamentów i wszystkich kondygnacji, rzut dachu oraz przekrój. Wykonane są w skali 1:100 za wyjątkiem przekrojów pokazanych w większej skali - 1:50.
Pierwszy tom projektu technicznego zawiera opis branż konstrukcyjnej, instalacji sanitarnych oraz wewnętrznych instalacji elektrycznych, a także charakterystykę energetyczną oraz analizę środowiskowo-ekonomiczną. Na rysunkach konstrukcyjnych pokazane są fundamenty wraz z przekrojami szczegółowymi oraz rzut konstrukcji i stropu, na którym zlokalizowane są wszystkie elementy z podaniem sposobu ich zbrojenia, więźba wraz z zestawieniem drewna oraz zestawienie stolarki otworowej. Projekt instalacji elektrycznych obejmuje rozdzielnicę budynku i lokalizację wszystkich gniazd wtykowych, źródeł światła i wyłączników, fotowoltaikę oraz schematy instalacji odgromowej. W części instalacji sanitarnych zawarte są rzuty kondygnacji z poszczególnymi instalacjami (w zakresie wewnętrznej instalacji wod.-kan, c.o., gazu i wentylacji mechanicznej z rekuperacją) oraz rozwinięcia. Drugi tom projektu technicznego stanowią obliczenia konstrukcyjne.
Darmowy zielony pakiet do projektu oznacza, że w tej samej cenie można otrzymać wariant z ogrzewaniem przy zastosowaniu ekologicznej pompy ciepła powietrze-woda i podłogówką we wszystkich pomieszczeniach, zamiast standardowego pieca gazowego zasilającego stalowe grzejniki płytowe.
Prosimy podczas składania zamówienia poinformować nas o wybranej opcji centralnego ogrzewania, która ma znaleźć się w dokumentacji.
Bezpłatna zgoda na zmiany na etapie adaptacji: do każdego z projektów wydajemy całkowicie bezpłatną zgodę na wprowadzenie praktycznie dowolnych zmian dopasowujących domek do indywidualnych wymagań inwestora. Radzimy jednak bezwzględnie wprowadzić je jeszcze przed uzyskaniem pozwolenia na budowę i przy udziale adaptujących też inne branże, nie tylko architekturę. Szczególne polecany jest udział konstruktora, jeżeli zmieniane są poszczególne elementy konstrukcyjne lub wręcz cały schemat konstrukcji. Prosimy nie zapomnieć o podaniu planowanych zmian podczas składania zamówienia na projekt, ale można też o zgodę wystąpić w dowolnym terminie już po jego zakupie.
Polecane projekty
Dodatki
Bezpłatne dodatki
GratisZestaw umów
GratisZmiany w projekcie
GratisZielony pakiet z pompą ciepła
GratisTablica budowy
GratisDziennik budowy
Płatne dodatki

Kosztorys stanu deweloperskiego
950 zł














