- Typ projektuWolnostojący
- Powierzchnia użytkowa192.4 m²
- KondygnacjeParterowy, z poddaszem, z piwnicą
- GarażJednostanowiskowy
- DachDwuspadowy
- Kąt nach. dachu42°
- Odbicie lustrzaneTak
- Czas realizacjimax. czas realizacji 10 dni Zobacz więcej >
Opis
Zgodność z WT 2021 i Eurokodami
Ze względu na dostosowywanie projektu do standardu WT 2021, czas realizacji może się różnić od standardowego.
Skontaktuj się z nami aby poznać szczegóły dotyczące wybranego projektu.
Opis projektu
Dom z bali drewnianych. Podpiwniczony. Na parterze duży salon z kuchnią, kominkiem oraz wyjściami na zadaszony taras. Pokój, łazienka, wc, komunikacja, wiatrołap, korytarz, garaż oraz kotłownia. Na poddaszu cztery pokoje, łazienka, komunikacja, dwa balkony. W podpiwniczeniu trzy duże pomieszczenia gospodarcze, łazienka i komunikacja. Zwarta bryła budynku oraz dach dwuspadowy sprzyjają szybkiej i taniej budowie oraz niskim kosztom eksploatacji.Rzuty
Parter
- 1.1 - wiatrołap6.17 m²
- 1.2 - komunikacja14.37 m²
- 1.3 - salon36.5 m²
- 1.4 - kuchnia14.11 m²
- 1.5 - pokój11.4 m²
- 1.6 - korytarz3.7 m²
- 1.7 - wc1.63 m²
- 1.8 - łazienka6.69 m²
- 1.9 - kotłownia12.13 m²
- 1.1 - garaż21.41 m²
Poddasze
- 2.1 - komunikacja11.66 m²
- 2.2 - pokój18.04 m²
- 2.3 - pokój19.77 m²
- 2.4 - pokój18.45 m²
- 2.5 - pokój22.26 m²
- 2.6 - łazienka8.12 m²
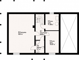
Piwnica
- 0.1 - komunikacja8.83 m²
- 0.2 - pom.gosp.52.4 m²
- 0.3 - łazienka5.7 m²
- 0.4 - pom. gosp.15.57 m²
- 0.5 - pom. gosp.11.56 m²
Sytuacja
Dane techniczne
- Powierzchnia użytkowa192.4 m²
- Powierzchnia netto356.87 m²
- Powierzchnia zabudowy159.48 m²
- KominekTak
- Liczba łazienek3
- Liczba pokoi6
- Powierzchnia dachu329 m²
- Kubatura980 m³
- Wysokość domu9 m
- Energia pierwotna67.96 kWh/m²/rok
- Minimalne wymiary działki24.35 x 17.5m
- GarażJednostanowiskowy
- Rodzaj dachuDwuspadowy
- Kąt nach. dachu42°
Instalacja grzewcza
- Instalacja grzewczakomplet instalacji, kocioł elektryczny, instalacja solarna
Zawartość projektu
Zamówiony u nas projekt gotowy otrzymacie Państwo w komplecie składającym się z trzech egzemplarzy projektu architektoniczno-budowlanego wykonanego zgodnie z przepisami Prawa budowlanego (Prawo budowlane - tekst jednolity, Dz. U. 2020 poz. 1333).
Część opisowa projektu architektoniczno-budowlanego składa się z:
opisu architektonicznego zawierającego m.in. opis przyjętych rozwiązań, zestawienia powierzchni (użytkowej, zabudowy, netto), kubatury oraz powierzchni poszczególnych pomieszczeń.
Część rysunkowa projektu architektoniczno-budowlanego składa się między innymi z:
rzutów kondygnacji użytkowych (parteru i jeśli występują: poddasza, piętra, piwnic),
rzutu dachu,
przekroi poprzecznych i ewentualnie podłużnych,
elewacji,
zestawienia stolarki okiennej i drzwiowej.
Ponadto projekt gotowy obejmuje trzy egzemplarze opracowań branżowych stanowiące części projektu technicznego, a mianowicie:
projekt konstrukcji,
projekt instalacji wodno-kanalizacyjnej,
projekt instalacji centralnego ogrzewania,
projekt instalacji gazowej (jeżeli występuje),
projekt instalacji elektrycznej i odgromowej.
Część opisowa projektu technicznego składa się z:
- opisu konstrukcyjnego zawierającego m.in. opis materiałów, z których wykonane są elementy konstrukcyjne, obliczenia statyczne wraz z przyjętymi obciążeniami, zestawienia drewna konstrukcyjnego i zestawienie stali,
- opisu instalacji centralnego ogrzewania, wod-kan, gazowej (jeżeli występuje), elektrycznej i odgromowej precyzującego przyjęte w tych branżach rozwiązania, sposób wykonania instalacji i zapotrzebowania na poszczególne media.
Część rysunkowa projektu technicznego składa się między innymi z:
- rzutu fundamentów,
- rzutów konstrukcyjnych poszczególnych kondygnacji,
- rysunków niezbędnych elementów konstrukcyjnych, zbrojenia płyt oraz innych elementów żelbetowych,
- rzutu więźby dachowej,
- rzutów instalacji centralnego ogrzewania oraz schematu technologicznego kotłowni (jeżeli występują),
- rzutów instalacji wod-kan,
- rzutów oraz rozwinięcia instalacji gazowej (jeżeli występuje),
- rzutów instalacji elektrycznej,
- schematu tablicy TM,
- rzutu instalacji odgromowej.
Do dokumentacji dołączone są projektowana charakterystyka energetyczna, kopie uprawnień oraz przynależności do izb zawodowych projektantów oraz standardowa zgoda na zmiany w projekcie. Komplet dokumentacji znajduje się w praktycznej i estetycznej teczce.
Inne warianty tego projektu
Dodatki
Bezpłatne dodatki
GratisZestaw umów
GratisZmiany w projekcie
GratisTablica budowy
GratisDziennik budowy
Płatne dodatki

Dodatkowy egzemplarz projektu
500 zł














