- Typ projektuWolnostojący
- Powierzchnia użytkowa103.9 m²
- Kondygnacje
- GarażJednostanowiskowy
- DachDwuspadowy
- Kąt nach. dachu45°
- Odbicie lustrzaneTak
- Czas realizacjimax. czas realizacji 10 dni Zobacz więcej >
Opis
Zgodność z WT 2021 i Eurokodami
Ze względu na dostosowywanie projektu do standardu WT 2021, czas realizacji może się różnić od standardowego.
Skontaktuj się z nami aby poznać szczegóły dotyczące wybranego projektu.
Opis projektu
Morwa z garażem to projekt niewielkiego ekonomicznego domu jednorodzinnego z dwuspadowym dachem ustawionym kalenicowo w stosunku do elewacji frontowej. Przewidziany został dla czteroosobowej rodzinie. Zadaszone wejście, prowadzi do wiatrołapu, gdzie znajdują się szafy. i dalej do części dziennej. Do salonu przylega funkcjonalny gabinet. Kuchnia jest otwarta i posiada spiżarnię. W centralnej części domu znajduje się kominek. Z salonu można wyjść na zewnętrzny taras. Obok kuchni przewidziano miejsce na stół. Z holu można się dostać do niewielkiej łazienki i pomieszczenia technicznego z piecem CO, pralką i suszarką. Pod biegiem schodowym zaprojektowano niewielką garderobę. Z holu prowadzą wygodne schody na poddasze, są tu trzy wygodne sypialnie oraz wspólną łazienkęTen projekt to propozycja ekonomicznego i ekologicznego domu.
Konstrukcja
Rzuty
Parter
- m²
- 1. Wiatrołap3
- 2. Hol z garderobą5.5
- 3. Łazienka3.3
- 4. Schody3.8
- 5. Pokój10.8
- 6. Salon22.8
- 7. Kuchnia6.3
- 8. Spiżarnia1.5
- 9. Pom. techniczne CO*4.6
- 10. Garaż*20
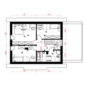
Piętro
Dane techniczne
- Powierzchnia użytkowa103.9 m²
- Powierzchnia zabudowy102.3 m²
- KominekTak
- Liczba łazienek2
- Liczba pokoi5
- Powierzchnia dachu179.4 m²
- Długość domu8.1 m
- Szerokość domu13.7 m
- Wysokość domu8.8 m
- Minimalne wymiary działki16.1 x 21.7m
- GarażJednostanowiskowy
- Rodzaj dachuDwuspadowy
- Kąt nach. dachu45°
Instalacja grzewcza
- Instalacja grzewczaGaz
Zawartość projektu
Zgodnie ze znowelizowaną Ustawą Prawo Budowlane art.34 ust.3, na projekt budowlany składają się trzy części:
- projekt zagospodarowania działki lub terenu
- projekt architektoniczno-budowlany
- projekt techniczny
Nasze projekty oferujemy w 3 egzemplarzach, zawierających projekt architektoniczno-budowlany i projekt techniczny. Projekt zagospodarowania działki lub terenu nie wchodzi w skład projektu oferowanego do sprzedaży. Projekt ten należy zlecić we własnym zakresie lokalnemu projektantowi, który opracuje go na podstawie danych zawartych w projekcie architektoniczno-budowlanym i technicznym, po dostosowaniu projektu do warunków lokalnych i wymagań inwestora.
UWAGA: wszystkie egzemplarze projektu zabezpieczone są hologramami, w części rysunkowej posiadają nadruki zabezpieczające w kolorze zielonym. Zalecamy aby po otrzymaniu przesyłki kontrolować czy na pierwszych stronach projektu znajduje się hologram i czy na rysunkach widoczne są w/w nadruki potwierdzające oryginalność projektu.
Wyrażamy zgodę na wszelkie zmiany zgodne z obowiązującymi przepisami pod warunkiem wprowadzenia ich przez uprawnioną osobę.
Wszystkie zmiany wymienione powyżej powinny być naniesione na oryginał projektu katalogowego trwałą techniką graficzną w kolorze czerwonym lub dołączone jako aneks i podpisane przez osobę uprawnioną dokonująca adaptacji.
**ważne informacje
Projekt w fazie koncepcji dostępny z wydłużonym terminem realizacji. Przy zamówieniu ustalamy termin i pobieramy zadatek 50% podstawowej ceny projektu (jako koszty usługi przygotowania dokumentacji do standardu projektu gotowego, w przypadku rezygnacji z usługi, zadatek nie podlega zwrotowi).
Cena za dodatkowy egzemplarz projektu jest zależna od nazwy projektu!
Dodatki
Bezpłatne dodatki
GratisZestaw umów
GratisZmiany w projekcie
GratisTablica budowy
GratisDziennik budowy
Płatne dodatki

Kosztorys - stan wykończony
540 zł

Projekt wentylacji mechanicznej
1 000 zł











