Projekt domu Murano S z garażem
- Typ projektuWolnostojący
- Powierzchnia użytkowa100 m²
- Kondygnacje
- GarażJednostanowiskowy
- DachPłaski
- Kąt nach. dachu40°
- Odbicie lustrzaneTak
- Czas realizacjido 10 dni roboczych Zobacz więcej >
Opis
Zgodność z WT 2021 i Eurokodami
Ze względu na dostosowywanie projektu do standardu WT 2021, czas realizacji może się różnić od standardowego.
Skontaktuj się z nami aby poznać szczegóły dotyczące wybranego projektu.
Opis projektu
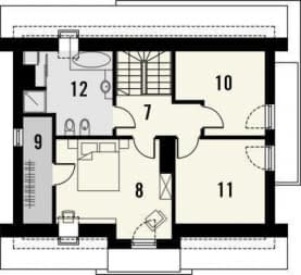
Projekt domu Murano S (by Sonia) jest propozycją nowej loftowej stylizacji z zewnątrz chętnie kupowanego domu z poddaszem użytkowym. Charakterystyczne jest zestawienie białego i ciemnoszarego tynku ze szlachetnym klinkierem oraz nowoczesne szklane balustrady. Ten efektowny dom z garażem wbudowanym w parterze jest też tani w budowie. Prosta bryła, ekonomiczny dach dwuspadowy i nieskomplikowana konstrukcja sprawiają, że można go wybudować za rozsądne pieniądze. Większość przyziemia zajmuje salon połączony w jedno wnętrze z kuchnią. Przy wejściu zaprojektowano garderobę, a z kuchni dostępna jest wnęka na spiżarnię. Poddasze podzielono na trzy pokoje, łazienkę z pralnią oraz strych, który może pełnić także rolę garderoby. Murano S można nabyć w wersji standard i w lustrzanym odbiciu.
Rzuty
Parter
Piętro
Rzut na działce
Dane techniczne
- Powierzchnia użytkowa100 m²
- Powierzchnia zabudowy94.7 m²
- Kubatura554 m³
- Wysokość domu8.13 m
- Minimalne wymiary działki19 x 16.6m
- GarażJednostanowiskowy
- Rodzaj dachuPłaski
- Kąt nach. dachu40°
Instalacja grzewcza
- Instalacja opcjonalna
Koszty budowy
- Stan surowy137240 zł
Zawartość projektu
Dokumentacja projektowa dostarczana jest Państwu w trzech identycznych egzemplarzach projektu architektoniczno-budowlanego służących do uzyskania pozwolenia na budowę jednego domu wraz z jednym, dwutomowym egzemplarzem projektu technicznego, który nie jest załączany do wniosku o pozwolenie na budowę i nie podlega urzędowemu zatwierdzeniu. Wszystkie projekty domów są zgodne z warunkami technicznymi WT 2021.
W projekcie architektoniczno-budowlanym opisane zostały podstawowe dane budynku, takie jak: zestawienie powierzchni pomieszczeń, warstwy budowlane, materiały wykończeniowe, dane dotyczące warunków ochrony przeciwpożarowej. Rysunki przedstawiają elewacje, rzuty fundamentów i wszystkich kondygnacji, rzut dachu oraz przekrój. Wykonane są w skali 1:100 za wyjątkiem przekrojów pokazanych w większej skali - 1:50.
Pierwszy tom projektu technicznego zawiera opis branż konstrukcyjnej, instalacji sanitarnych oraz wewnętrznych instalacji elektrycznych, a także charakterystykę energetyczną oraz analizę środowiskowo-ekonomiczną. Na rysunkach konstrukcyjnych pokazane są fundamenty wraz z przekrojami szczegółowymi oraz rzut konstrukcji i stropu, na którym zlokalizowane są wszystkie elementy z podaniem sposobu ich zbrojenia, więźba wraz z zestawieniem drewna oraz zestawienie stolarki otworowej. Projekt instalacji elektrycznych obejmuje rozdzielnicę budynku i lokalizację wszystkich gniazd wtykowych, źródeł światła i wyłączników, fotowoltaikę oraz schematy instalacji odgromowej. W części instalacji sanitarnych zawarte są rzuty kondygnacji z poszczególnymi instalacjami (w zakresie wewnętrznej instalacji wod.-kan, c.o., gazu i wentylacji mechanicznej z rekuperacją) oraz rozwinięcia. Drugi tom projektu technicznego stanowią obliczenia konstrukcyjne.
Darmowy zielony pakiet do projektu oznacza, że w tej samej cenie można otrzymać wariant z ogrzewaniem przy zastosowaniu ekologicznej pompy ciepła powietrze-woda i podłogówką we wszystkich pomieszczeniach, zamiast standardowego pieca gazowego zasilającego stalowe grzejniki płytowe.
Prosimy podczas składania zamówienia poinformować nas o wybranej opcji centralnego ogrzewania, która ma znaleźć się w dokumentacji.
Bezpłatna zgoda na zmiany na etapie adaptacji: do każdego z projektów wydajemy całkowicie bezpłatną zgodę na wprowadzenie praktycznie dowolnych zmian dopasowujących domek do indywidualnych wymagań inwestora. Radzimy jednak bezwzględnie wprowadzić je jeszcze przed uzyskaniem pozwolenia na budowę i przy udziale adaptujących też inne branże, nie tylko architekturę. Szczególne polecany jest udział konstruktora, jeżeli zmieniane są poszczególne elementy konstrukcyjne lub wręcz cały schemat konstrukcji. Prosimy nie zapomnieć o podaniu planowanych zmian podczas składania zamówienia na projekt, ale można też o zgodę wystąpić w dowolnym terminie już po jego zakupie.
Dodatki
Bezpłatne dodatki
GratisZestaw umów
GratisZmiany w projekcie
GratisZielony pakiet z pompą ciepła
GratisTablica budowy
GratisDziennik budowy
Płatne dodatki

Kosztorys stanu deweloperskiego
950 zł












