- Typ projektuWolnostojący
- StylNowoczesny
- Powierzchnia użytkowa116.78 m²
- KondygnacjeParterowy
- GarażDwustanowiskowy
- DachCzterospadowy
- Odbicie lustrzaneTak
- Czas realizacji14 dni roboczych Zobacz więcej >
Opis
Zgodność z WT 2021 i Eurokodami
Ze względu na dostosowywanie projektu do standardu WT 2021, czas realizacji może się różnić od standardowego.
Skontaktuj się z nami aby poznać szczegóły dotyczące wybranego projektu.
Opis projektu
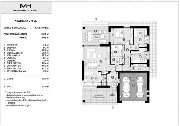
NewHouse 771 w3 to dopracowany, parterowy projekt domu z trzema sypialniami, zaprojektowany z myślą o wygodzie codziennego życia rodziny.
Do domu wchodzimy przez wiatrołap z miejscem na dużą szafę, który oddziela strefę wejściową od części mieszkalnej i pomaga utrzymać porządek w domu.
Z wiatrołapu można przejść zarówno do garażu, jak i do części mieszkalnej domu.
Centralnym miejscem domu jest strefa dzienna, w której znajdują się: salon, jadalnia, kuchnia. W salonie znajduje się również kominek, który w tym wariancie projektu został przeniesiony na ścianę spiżarni. Bezpośrednio przy kuchni znajduje się duża spiżarni.
W prywatnej części domu zaplanowano trzy sypialnie: główna sypialnia z wyjściem na zadaszony taras, dwie sypialnie dziecięce z dużymi szafami wnękowymi oraz rodzinna łazienka z wanną i prysznicem.
Dodatkowo zaplanowano pralnię połączoną z kotłownią, z której prowadzi wyjście na zewnątrz budynku. W projekcie przewidziano garaż dwustanowiskowy w bryle domu.
Kotłownia została w tej wersji projektu przeniesiona za garaż, dzięki czemu przestrzeń techniczna jest dobrze odseparowana od części mieszkalnej.
Konstrukcja
- Fundamenty Tradycyjnie - na ławach fundamentowych
- Ściany Dwuwarstwowe pustak ceramiczny 25 cm + styropian 20 cm / wełna mineralna 16 cm
- Strop Żelbetowy, wylewany
- Dach Wielospadowy, kryty dachówką ceramiczną
- Elewacja Biały i grafitowy tynk silikonowy, połączony z drewnem elewacyjnym lub lamelami elewacyjnymi Super Premium Qulanti
- Ogrzewanie gazowe - piec kondensacyjny, ogrzewanie podłogowe we wszystkich pomieszczeniach
- Wentylacja mechaniczna z rekuperacją
Rzuty
Dane techniczne
- Powierzchnia użytkowa116.78 m²
- Powierzchnia zabudowy189.38 m²
- Liczba łazienek2
- Liczba pokoi3
- Powierzchnia dachu327.86 m²
- Kubatura1095 m³
- Długość domu16.4 m
- Szerokość domu14.35 m
- Wysokość domu7.79 m
- Minimalne wymiary działki24.4 x 22.35m
- GarażDwustanowiskowy
- Rodzaj dachuCzterospadowy
Instalacja grzewcza
- Instalacja opcjonalna
Zawartość projektu
Zgodnie z obowiązującym Rozporządzeniem Ministra Rozwoju w sprawie szczegółowego zakresu i formy projektu budowlanego dokumentacja projektowa składa się z 3 egzemplarzy projektu architektoniczno – budowlanego oraz 3 egzemplarzy projektu technicznego.
W skład projektu architektoniczno – budowlanego wchodzi:
- opis techniczny zgodny z §20 ust. 1 pkt 1 – 4 , 6 – 13 w/w Rozporządzenia,
- rzuty wszystkich kondygnacji w zakresie niezbędnym do przedstawienia układu funkcjonalno- -przestrzennego i rozwiązań architektoniczno-budowlanych,
- charakterystyczne przekroje, w zakresie niezbędnym do przedstawienia układu funkcjonalno-przestrzennego, z nawiązaniem do poziomu terenu, ukazujące powiązanie z podłożem oraz przyległymi obiektami,
- widoki elewacji oraz dachu lub przekrycia w liczbie dostatecznej do wyjaśnienia formy architektonicznej obiektu budowlanego, w tym jego wyglądu zewnętrznego ze wszystkich widocznych stron, ze wskazaniem materiałów wykończeniowych i kolorystyki,
- zestawienie stolarki okiennej i drzwiowej,
- zestawienie więźby dachowej.
W skład projektu technicznego wchodzi:
I. Projekt konstrukcji:
- opis techniczny wraz z obliczeniami statycznymi,
- rysunki techniczne,
- zestawienie stali zbrojeniowej.
II. Projekt wewnętrznych instalacji sanitarnych:
- opis techniczny instalacji wodno-kanalizacyjnej, centralnego ogrzewania, instalacji gazowej, wentylacji mechanicznej,
- obliczenia instalacyjne,
- rysunki techniczne rozwiązań instalacyjnych.
III. Projekt wewnętrznych instalacji elektrycznych:
- opis techniczny instalacji elektrycznych,
- schematy instalacji elektrycznych,
- rysunki techniczne.
Osoba dokonująca adaptacji projektu może bez dodatkowej zgody autora wprowadzić następujące zmiany do opracowania:
- Zmiana materiałów ściennych i izolacyjnych – przy zachowaniu odpowiedniej wytrzymałości i ciepłochronności oraz odpowiedniego, założonego oporu dyfuzyjnego i innych właściwości fizykochemicznych dla wybranych przegród,
- Zmiana rodzaju stropów wraz z dostosowaniem układu konstrukcyjnego budynku przy zachowaniu wymaganej wytrzymałości oraz izolacji akustycznej,
- Zmiana materiałów wykończeniowych: posadzek, tynków, pokrycia dachu, izolacji przy zachowaniu niezbędnych parametrów wytrzymałościowych oraz parametrów przenikania ciepła,
- Zmiana kolorystyki i wykończenia elewacji,
- Zmiana zewnętrznych wymiarów budynku w granicach do 5% przy zachowaniu dopuszczalnych wymiarów rozpiętości konstrukcji wynikających z zastosowanych materiałów i technologii oraz z zachowaniem odpowiednich (zgodnych z przepisami) izolacji termicznych ścian zewnętrznych,
- Zmiana wymiarów fundamentów wynikająca z dostosowania obiektu do warunków gruntowych i głębokości przemarzania gruntu oraz zmiana ław na płytę fundamentową,
- Zmiana wymiarów przekrojów lub rozstawu elementów więźby dachowej wynikająca z dostosowania konstrukcji dachu budynku do odpowiedniej strefy obciążenia śniegiem i wiatrem,
- Zmiana kąta nachylenia połaci dachu max. o 10° oraz wysięgu okapów – po dokonaniu dodatkowych obliczeń konstrukcyjnych,
- Zmiana ustroju więźby dachowej przy zachowaniu odpowiedniej wytrzymałości i nośności konstrukcji dachu oraz z zachowaniem głównych założeń geometrycznych dachu,
- Zmiana wielkości i kształtu tarasu naziemnego lub rezygnacja z niego,
- Zmiana rozwiązań funkcjonalnych wewnątrz budynku polegająca m.in. na przesunięciu lub likwidacji ścian działowych,
- Zmiana lokalizacji, ilości i kształtu okien oraz drzwi przy zachowaniu charakteru i estetyki elewacji oraz wymaganej izolacyjności, doświetlenia pomieszczeń oraz warunków ewakuacji,
- Wprowadzenie częściowego lub całkowitego podpiwniczenia budynku – po dokonaniu dodatkowych obliczeń konstrukcyjnych,
- Zmiany w projektach instalacji wodno-kanalizacyjnej, c.o., elektrycznej oraz gazowej i wentylacji mechanicznej (jeżeli występuje) przy zachowaniu obowiązujących norm i przepisów, a wynikające ze zmian materiałowych, typów dobranych urządzeń i dostępności mediów na działce budowlanej,
- Zmiana sposobu wentylacji budynku z wentylacji grawitacyjnej na wentylację mechaniczną (lub odwrotnie) oraz zmiana źródła ciepła po dokonaniu dodatkowych opracowań.
Dodatki
Bezpłatne dodatki
GratisZestaw umów
GratisZmiany w projekcie
GratisTablica budowy
GratisDziennik budowy
GratisProjekt w wersji pdf
Płatne dodatki

Zbiornik na nieczystości (szambo)
450 zł

Projekt dodatkowego ogrzewania podłogowego
500 zł

Pompa ciepła powietrzna + ogrzewanie podłogowe
800 zł

Szczegółowy kosztorys inwestorski
450 zł

Dodatkowy egzemplarz projektu
500 zł














