- Typ projektuWolnostojący
- StylTradycyjny
- Powierzchnia użytkowa153.83 m²
- Kondygnacjez poddaszem
- GarażJednostanowiskowy
- DachDwuspadowy
- Kąt nach. dachu30°
- Odbicie lustrzaneTak
- Czas realizacji7-10 dni roboczych Zobacz więcej >
Opis
Zgodność z WT 2021 i Eurokodami
Ze względu na dostosowywanie projektu do standardu WT 2021, czas realizacji może się różnić od standardowego.
Skontaktuj się z nami aby poznać szczegóły dotyczące wybranego projektu.
Opis projektu
Wygodny dom energooszczędny z użytkowym poddaszem, kolejna wersja Nikko (DCP264), w której zrezygnowaliśmy z wykusza w pokoju dziennym oraz zaplanowaliśmy dodatkową sypialnię na poddaszu. Do dyspozycji mieszkańców jest więc część wspólna na parterze, z salonem z kominkiem, kuchnią ze spiżarnią, gabinetem, łazienką i wc oraz część nocna na poddaszu z czterema sypialniami, dwiema łazienkami i tarasem nad garażem. Zlokalizowana za garażem kotłownia ma niezależne wyjście na zewnątrz, a do garażu można wejść bezpośrednio z domu. Tras od strony ogrodowej został ozdobiony pergolą, która także chroni przed nadmiernym słońcem.UWAGA: Dostępna wersja z pompą ciepła. Zapytaj o projekt.
Rzuty
Parter
- m²
- 1. Wiatrołap5.83
- 2. Komunikacja4.12
- 3. Spiżarnia0.52
- 4. Kuchnia10.87
- 5. Pokój dzienny33
- 6. Pokój12.16
- 7. Łazienka3.55
- 8. Wc1.7
- 9. Pom.gosp.3.19
- 10. Kotłownia7.87
- 11. Garaż20.1
- 12. Podest2.63
- 13. Taras1.3
- 14. Taras19.62
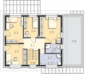
Poddasze
- m²
- 1. Komunikacja8
- 2. Pokój13.08
- 3. Pokój14.3
- 4. Pokój9.49
- 5. Pokój16.57
- 6. Łazienka4.57
- 7. Łazienka7.44
- 8. Schody5.44
- 9. Taras26.27
Usytuowanie na działce
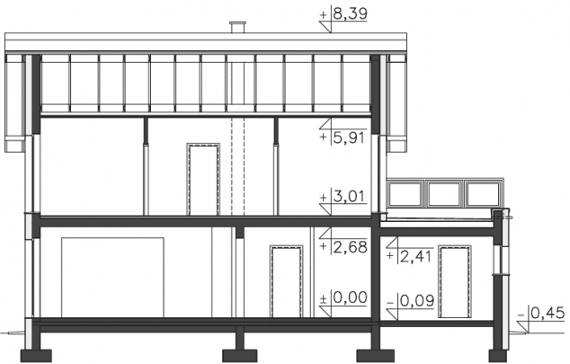
Przekrój
Dane techniczne
- Powierzchnia użytkowa153.83 m²
- Powierzchnia netto210.91 m²
- Powierzchnia zabudowy134.66 m²
- KominekTak
- Liczba łazienek4
- Liczba pokoi6
- Kubatura857 m³
- Minimalne wymiary działki18.6 x 22.3m
- GarażJednostanowiskowy
- Rodzaj dachuDwuspadowy
- Kąt nach. dachu30°
Instalacja grzewcza
- Instalacja grzewczaGaz
- Instalacja opcjonalna
- EUco18.84 kwH/m²/rok
Koszty budowy
- Koszt budowy676300 zł
- Stan surowy427300 zł
Zawartość projektu
Dokumentacje projektowe naszych domów są zgodne z Rozporządzeniem Ministra Rozwoju z dnia 11 września 2020 r. w sprawie szczegółowego zakresu i formy projektu budowlanego. Projekt gotowy, w skład którego wchodzi projekt architektoniczno-budowlany, projekt techniczny, charakterystyka energetyczna, wymaga przystosowania do warunków lokalnych przez projektanta adaptującego.
Projekt architektoniczno-budowlany i projekt techniczny stanowią zakres projektu gotowego i sprzedawane są w 3 egzemplarzach każdy – razem 6 zeszytów
Projekt architektoniczno-budowlany zawiera część opisową oraz część rysunkową.
Część opisowa projektu architektoniczno-budowlanego obejmuje następujący zakres:
- Przeznaczenie i program użytkowy budynku
- Charakterystyczne parametry techniczne
- Forma architektoniczna i funkcja obiektu
- Wpływ obiektu na środowisko
- Sposób posadowienia
- Technologia wykonania
- Warunki ochrony przeciwpożarowej
- Instalacje
Część rysunkowa projektu architektoniczno-budowlanego obejmuje następujące rysunki:
- Elewacje - frontowa, ogrodowa, boczne
- Rzut parteru - Rzut więźby dachowej
- Aksonometria więźby dachowej
- Rzut dachu
- Przekroje poprzeczne
- Zestawienie stolarki
Projekt techniczny zawiera część opisową, część rysunkową oraz charakterystykę energetyczną.
Część opisowa projektu technicznego obejmuje następujący zakres:
- Układ konstrukcyjny budynku w tym: schematy konstrukcyjne, obliczenia statyczne – założenia ogólne, podstawowe wyniki obliczeń , zestawienie obciążeń dopuszczalnych dla wiązarów dachowych- jeśli występują,
- Sposób posadowienia
- Rozwiązania konstrukcyjno-materiałowe: ściany, strop/stropy, nadproża okienne i drzwiowe, wieńce, dach, schody na poddasze nieużytkowe, kominy i wentylacje, izolacje, powłoki zabezpieczające, posadzki i podłogi, tynki i okładziny, stolarka okienna i drzwiowa, obróbki blacharskie, rynny i rury spustowe, taras i płyta wejściowa
- Zestawienia materiałów w tym: dane powierzchniowe przegród, zestawienie stali zbrojeniowej
- Opis instalacji sanitarnych w tym: instalacja wodociągowa, kanalizacja wewnętrzna, instalacja gazu – jeśli występuje, instalacja centralnego ogrzewania, dobór źródła ciepła,
- Opis instalacji elektrycznych w tym: zasilanie budynku, instalacje elektryczne, instalacja telefoniczna – jeśli występuje, instalacje wyrównawcze, ochrona przeciwpożarowa, ochrona instalacji, instalacja odgromowa, ochrona przeciwporażeniowa, obliczenia techniczne
Część rysunkowa obejmuje następujące rysunki:
- Rzut fundamentów
- Przekroje ław fundamentowych / płyty fundamentowej
- Stopy fundamentowe – jeśli występują
- Rysunek zestawczy konstrukcji
- Szczegóły wieńców – jeśli występują
- Rozwinięcie ścian zewnętrznych
- Rzuty kondygnacji - instalacja wod-kan., gazowa
- Aksonometria instalacji wodociągowej
- Aksonometria instalacji gazowej
- Rozwinięcie instalacji kanalizacyjnej
- Rzut parteru - instalacja c.o.
- Rozwinięcie instalacji c.o.
- Rzuty kondygnacji - instalacja elektryczna
- Schemat rozdziału energii
Charakterystyka energetyczna zawiera:
- wyniki obliczeń energetycznych określających całkowite zapotrzebowanie na energię
- analizę alternatywnych źródeł ciepła i wyniki optymalizacji energetycznej.
Dopuszczalne zmiany w ramach adaptacji nie wymagające zgody projektanta:
- dostosowanie fundamentów do warunków geotechnicznych występujących na danym terenie,
- zmiana programu funkcjonalnego budynku związana z likwidacją lub przesuwaniem ścianek działowych i otworów drzwiowych, również w ścianach nośnych,
- zmiana szerokości i kształtu schodów,
- zmiana technologii stropów przy zachowaniu koncepcji układu konstrukcyjnego,
- zmiana nachylenia połaci dachowych w granicach 5 st.,
- zmiana ilości, wielkości i rozmieszczenia otworów okiennych i drzwiowych,
- zmiana technologii budowlanych i materiałów wykończeniowych pod warunkiem nie pogorszenia ich jakości i parametrów termicznych,
- zmiana rodzaju ogrzewania i zmiany adaptacyjne projektów instalacyjnych,
- wykonanie projektu podpiwniczenia budynku lub jego likwidacji,
- zabudowanie wiaty garażowej lub rezygnacja z wiaty (jeśli występuje w projekcie),
- rezygnacja z balkonów przy ścianach szczytowych (jeśli występują w projekcie),
- realizacja projektu w wersji lewostronnej (lustrzanego odbicia).
Najczęściej pojawiające się zmiany, które wprowadzamy lub na które wydajemy bezpłatną zgodę to:
- zmiana kąta nachylenia dachu,
- podpiwniczenie budynku,
- zmiana technologii ścian, stropu, fundamentów,
- zmiana wymiarów domu,
- likwidacja, doprojektowanie lub poszerzenie garażu,
- podniesienie ścianki kolankowej,
- zmiany wielkości i usytuowania okien i drzwi,
- zmiany funkcji pomieszczeń,
- zmiana systemu ogrzewania (gaz/paliwo stałe/pompa ciepła oraz grzejniki/ogrzewanie podłogowe).
Dodatki
Bezpłatne dodatki
GratisDziennik budowy
GratisTablica budowy
GratisZestaw umów
GratisZmiany w projekcie
Płatne dodatki

Kosztorys ślepy
369 zł

Kosztorys inwestorski
738 zł

Dodatkowy egzemplarz projektu
492 zł








