Projekt domu Nowalia II B
Promocja ważna do
24-04-2026
- Typ projektuWolnostojący
- Powierzchnia użytkowa134.6 m²
- Kondygnacje
- GarażBez garażu
- DachDwuspadowy
- Kąt nach. dachu40°
- Odbicie lustrzaneTak
- Czas realizacjimax. czas realizacji 10 dni Zobacz więcej >
Opis
Zgodność z WT 2021 i Eurokodami
Ze względu na dostosowywanie projektu do standardu WT 2021, czas realizacji może się różnić od standardowego.
Skontaktuj się z nami aby poznać szczegóły dotyczące wybranego projektu.
Opis projektu
Projekt Nowalia II została zaprojektowana na planie kwadratu. Prosta forma budynku oraz dwuspadowy dach wpłynie pozytywnie na koszty budowy. Jest to dom wolnostojący z poddaszem użytkowym.Strefa dzienna na parterze składa się z: salonu z kominkiem, jadalni, otwartej kuchni ze spiżarnią. Na parterze przewidziano również sypialnię z łazienką, wiatrołap, hol z garderobą WC, kotłownia z piecem CO. Na poddasze wchodzi się schodami z salonu. Tu zaprojektowano hol oraz trzy sypialnie i salon kąpielowy.Dom nadaje się dla 4-5 osobowej rodziny. Architektura zewnętrzna łączy w sobie elementy tradycyjne i nowoczesne.
Konstrukcja
Rzuty
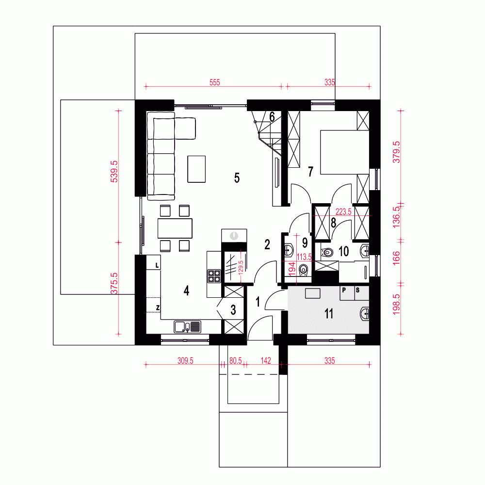
Parter
- m²
- 1. Wiatrołap2.7
- 2. Hol z garderobą6.8
- 3. Spiżarnia1.5
- 4. Kuchnia9.9
- 5. Salon z jadalnią26.7
- 6. Schody3.6
- 7. Pokój12.5
- 8. Garderoba2.9
- 9. Łazienka3.1
- 10. WC2.1
- 11. Pom. tech. CO*6.5
Piętro
Przekrój
Usytuowanie na działce
Dane techniczne
- Powierzchnia użytkowa134.6 m²
- Powierzchnia zabudowy101.6 m²
- KominekTak
- Liczba łazienek2
- Liczba pokoi5
- Powierzchnia dachu165 m²
- Kubatura392 m³
- Długość domu10.2 m
- Szerokość domu10.2 m
- Wysokość domu9.2 m
- Minimalne wymiary działki18.2 x 18.2m
- GarażBez garażu
- Rodzaj dachuDwuspadowy
- Kąt nach. dachu40°
Instalacja grzewcza
- Instalacja grzewczaGaz
Zawartość projektu
Zgodnie ze znowelizowaną Ustawą Prawo Budowlane art.34 ust.3, na projekt budowlany składają się trzy części:
- projekt zagospodarowania działki lub terenu
- projekt architektoniczno-budowlany
- projekt techniczny
Nasze projekty oferujemy w 3 egzemplarzach, zawierających projekt architektoniczno-budowlany i projekt techniczny. Projekt zagospodarowania działki lub terenu nie wchodzi w skład projektu oferowanego do sprzedaży. Projekt ten należy zlecić we własnym zakresie lokalnemu projektantowi, który opracuje go na podstawie danych zawartych w projekcie architektoniczno-budowlanym i technicznym, po dostosowaniu projektu do warunków lokalnych i wymagań inwestora.
UWAGA: wszystkie egzemplarze projektu zabezpieczone są hologramami, w części rysunkowej posiadają nadruki zabezpieczające w kolorze zielonym. Zalecamy aby po otrzymaniu przesyłki kontrolować czy na pierwszych stronach projektu znajduje się hologram i czy na rysunkach widoczne są w/w nadruki potwierdzające oryginalność projektu.
Wyrażamy zgodę na wszelkie zmiany zgodne z obowiązującymi przepisami pod warunkiem wprowadzenia ich przez uprawnioną osobę.
Wszystkie zmiany wymienione powyżej powinny być naniesione na oryginał projektu katalogowego trwałą techniką graficzną w kolorze czerwonym lub dołączone jako aneks i podpisane przez osobę uprawnioną dokonująca adaptacji.
**ważne informacje
Projekt w fazie koncepcji dostępny z wydłużonym terminem realizacji. Przy zamówieniu ustalamy termin i pobieramy zadatek 50% podstawowej ceny projektu (jako koszty usługi przygotowania dokumentacji do standardu projektu gotowego, w przypadku rezygnacji z usługi, zadatek nie podlega zwrotowi).
Cena za dodatkowy egzemplarz projektu jest zależna od nazwy projektu!
Dodatki
Bezpłatne dodatki
GratisZestaw umów
GratisZmiany w projekcie
GratisTablica budowy
GratisDziennik budowy
Płatne dodatki

Kosztorys - stan wykończony
540 zł

Projekt wentylacji mechanicznej
1 000 zł
















