Projekt domu Nowinka II bliźniak A1-BL1
- Typ projektuDwurodzinny
- Powierzchnia użytkowa201.2 m²
- Kondygnacje
- GarażBez garażu
- DachDwuspadowy
- Kąt nach. dachu35°
- Odbicie lustrzaneTak
- Czas realizacjimax. czas realizacji 10 dni Zobacz więcej >
Opis
Zgodność z WT 2021 i Eurokodami
Ze względu na dostosowywanie projektu do standardu WT 2021, czas realizacji może się różnić od standardowego.
Skontaktuj się z nami aby poznać szczegóły dotyczące wybranego projektu.
Opis projektu
(Uwaga: ten projekt typu bliźniak oferujemy tylko jako dom dwulokalowy).Opis dotyczy jednego segmentu: Projekt małego domu Nowinka II jest propozycją dla osób chcących wybudować wygodny dom jednorodzinny w nowoczesnym ekologicznym stylu oraz w ekonomiczny sposób. Bryła tego domu jest prosta, zwarta i przykryta dwuspadowym dachem o kącie nachylenia połaci dachowych 35 st. Projekt tego klasycznego małego domu zawiera 5 pokoi wraz z salonem, otwartą kwadratową kuchnię, dwie łazienki, garderobę pod schodami, miejsce na nowoczesny centralnie umiejscowiony kominek oraz dużą kotłownię za garażem na dowolny piec CO. W bryle budynku zawarty jest garaż jednostanowiskowy. Dobudowana wiata w projekcie domu Nowinka II zapewnia drugie miejsce postojowe , co jest idealnym rozwiązaniem dla rodzin posiadających dwa samochody.
Konstrukcja
Rzuty
Parter
- m²
- 1. Wiatrołap2.8
- 2. Hol3.8
- 3. WC3.1
- 4. Pokój9.3
- 5. Salon z kuchnią29.1
- 6. Schody3.4
- 7. Garderoba0.4
- 8. Kotłownia*9.7
- 9. Garaż*20.5
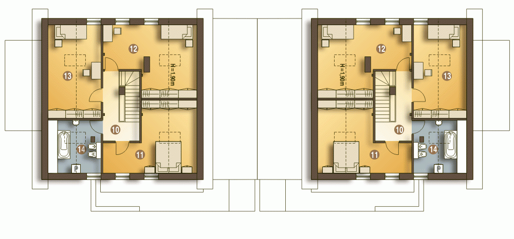
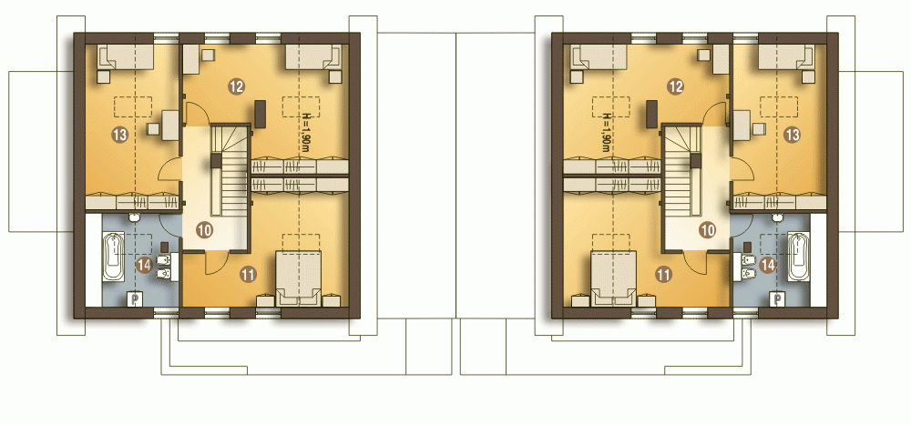
Piętro
Przekrój
Usytuowanie na działce
Dane techniczne
- Powierzchnia użytkowa201.2 m²
- Powierzchnia zabudowy207.6 m²
- KominekTak
- Liczba łazienek4
- Liczba pokoi10
- Powierzchnia dachu315 m²
- Długość domu10.3 m
- Szerokość domu27.4 m
- Wysokość domu8.1 m
- Minimalne wymiary działki18.3 x 35.4m
- GarażBez garażu
- Rodzaj dachuDwuspadowy
- Kąt nach. dachu35°
Instalacja grzewcza
- Instalacja grzewczaGaz, Paliwo stałe
Zawartość projektu
Zgodnie ze znowelizowaną Ustawą Prawo Budowlane art.34 ust.3, na projekt budowlany składają się trzy części:
- projekt zagospodarowania działki lub terenu
- projekt architektoniczno-budowlany
- projekt techniczny
Nasze projekty oferujemy w 3 egzemplarzach, zawierających projekt architektoniczno-budowlany i projekt techniczny. Projekt zagospodarowania działki lub terenu nie wchodzi w skład projektu oferowanego do sprzedaży. Projekt ten należy zlecić we własnym zakresie lokalnemu projektantowi, który opracuje go na podstawie danych zawartych w projekcie architektoniczno-budowlanym i technicznym, po dostosowaniu projektu do warunków lokalnych i wymagań inwestora.
UWAGA: wszystkie egzemplarze projektu zabezpieczone są hologramami, w części rysunkowej posiadają nadruki zabezpieczające w kolorze zielonym. Zalecamy aby po otrzymaniu przesyłki kontrolować czy na pierwszych stronach projektu znajduje się hologram i czy na rysunkach widoczne są w/w nadruki potwierdzające oryginalność projektu.
Wyrażamy zgodę na wszelkie zmiany zgodne z obowiązującymi przepisami pod warunkiem wprowadzenia ich przez uprawnioną osobę.
Wszystkie zmiany wymienione powyżej powinny być naniesione na oryginał projektu katalogowego trwałą techniką graficzną w kolorze czerwonym lub dołączone jako aneks i podpisane przez osobę uprawnioną dokonująca adaptacji.
**ważne informacje
Projekt w fazie koncepcji dostępny z wydłużonym terminem realizacji. Przy zamówieniu ustalamy termin i pobieramy zadatek 50% podstawowej ceny projektu (jako koszty usługi przygotowania dokumentacji do standardu projektu gotowego, w przypadku rezygnacji z usługi, zadatek nie podlega zwrotowi).
Cena za dodatkowy egzemplarz projektu jest zależna od nazwy projektu!
Dodatki
Bezpłatne dodatki
GratisZestaw umów
GratisZmiany w projekcie
GratisTablica budowy
GratisDziennik budowy
Płatne dodatki

Kosztorys - stan wykończony
540 zł

Projekt wentylacji mechanicznej
1 000 zł








