Promocja ważna do
23-02-2026
- Typ projektuWolnostojący
- StylNowoczesny
- Powierzchnia użytkowa180.09 m²
- KondygnacjeParterowy
- GarażDwustanowiskowy
- DachPłaski
- Odbicie lustrzaneNie
- Czas realizacji7 dni Zobacz więcej >
Opis
Zgodność z WT 2021 i Eurokodami
Ze względu na dostosowywanie projektu do standardu WT 2021, czas realizacji może się różnić od standardowego.
Skontaktuj się z nami aby poznać szczegóły dotyczące wybranego projektu.
Opis projektu
Nowoczesny, parterowy dom z płaskim dachem. Propozycja dla ludzi ceniących sobie przestrzeń i komfort życia połączony z minimalistyczną architekturą.
Układ funkcjonalny domu został podzielony na część dzienną oraz nocną. Część dzienną stanowi duży salon i jadalnia z wyjściem na ogromny taras i szeroki, przeszklony widok na ogród, który w zamyśle stanowi połączenie - płynne przejście salonu w ogród. W tej części znajduje się również częściowo oddzielona od salonu kuchnia z wyspą.
Minimalistyczna bryła podkreślona została zagłębionym w bryłę budynku wejściem, takie rozwiązanie zapewnia jednocześnie, że wejście jest zadaszone a otwór w dachu zapewnia jego doświetlenie. Ze strefy wiatrołapu, przez garderobę można przejść do dwustanowiskowego garażu oraz pomieszczenia technicznego/kotłowni. W tej strefie znajduje się również gabinet z widokiem na wejście.
Część nocna to sypialnia gospodarzy połączona z garderobą i łazienką oraz wyjściem na niezadaszone patio. W tej części znajdują się również 4 pokoje z przynależną im łazienką. 3 pokoje od strony ogrodu posiadają wyjście na taras. Nie zapomniano również o pralni z wyjściem na patio.
Prosta bryła budynku, z lekkim wyniesieniem i pofałdowaniem terenu, znakomicie łączy się z zielonym otoczeniem. Niepowtarzalny charakter budynku tworzy również oryginalna konstrukcja ramy zaprojektowana w jego części frontowej.
Konstrukcja
Technologia:
Fundamenty - ławy fundamentowe żelbetowe monolityczne
Ściany fundamentowe - bloczki betonowe
Ściany konstrukcyjne - pustaki gazobetonowe o grubości 24 cm
Ściany działowe - pustaki gazobetonowe o grubości 12 cm
Stropy - żelbetowe monolityczne
Dach - stropodach
Rzuty
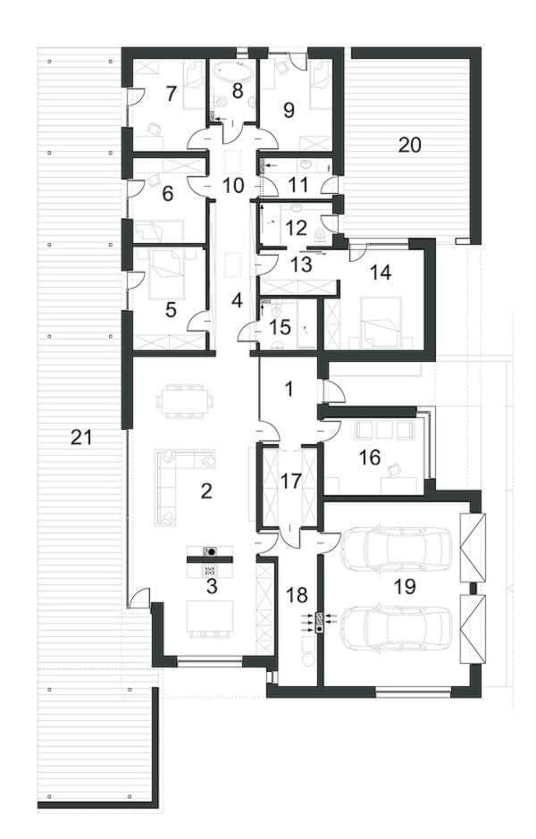
Rzut parteru
- 1. Wiatrołap7.47
- 2 Salon + jadalnia41.85
- 3. Kuchnia14.57
- 4. Biblioteka10.82
- 5. Pokój9.67
- 6. Pokój10.27
- 7. Pokój10.54
- 8. Łazienka4.55
- 9. Pokój10.54
- 10. Korytarz5.41
- 11. Pralnia4.55
- 12. Łazienka4.99
- 13. Garderoba5.47
- 14. Sypialnia14.56
- 15. Łazienka4.57
- 16. Gabinet12.11
- 17. Garderoba6.69
- 18. Pomieszczenie techniczne10.30
- 19. Garaż41.81
- 20. Taras35.01
- 21. Taras106.69
Dane techniczne
- Powierzchnia użytkowa180.09 m²
- Powierzchnia netto232.2 m²
- Powierzchnia zabudowy293.86 m²
- KominekTak
- Liczba łazienek2
- Liczba pokoi6
- Wysokość domu3.95 m
- PoddaszeNie
- Minimalne wymiary działki29.14 x 35.64m
- GarażDwustanowiskowy
- Rodzaj dachuPłaski
Instalacja grzewcza
- Instalacja opcjonalna
Zawartość projektu
Każdy nasz projekt typowy składa się z 3 egzemplarzy projektu architektoniczno-budowlanego oraz 3 egzemplarzy projektu technicznego. Projekty opracowane zostały zgodnie z Warunkami Technicznymi 2021 oraz dostosowane do Eurokodów.
W skład projektu architektoniczno-budowlanego wchodzi opis techniczny, rysunki branży architektonicznej, zgoda na zmiany autora projektu, uprawnienia i zaświadczenia z izby projektantów.
W skład projektu technicznego wchodzi opis techniczny, rysunki branży konstrukcyjnej, sanitarnej (wodno-kanalizacyjnej, centralnego ogrzewania), elektrycznej oraz projektowana charakterystyka energetyczna.
W każdym gotowym projekcie domu naszej pracowni jest wykaz zmian, jakie można do niego wprowadzić bez konsultacji z projektantem macierzystym. Są to:
- zmiana wymiarów fundamentów wynikające z miejscowych warunków gruntowych;
- zmiana instalacji elektrycznej, wodno-kanalizacyjnej, c.o. gazowej;
- wprowadzenia częściowego lub całkowitego podpiwniczenia;
- realizacji wg. lustrzanego odbicia;
- usytuowania lub likwidacji ścianek działowych oraz drzwi wewnętrznych;
- zmiana warstw ścian zewnętrznych;
- zmiana materiałów wykończeniowych;
- zmiana rodzaju stropów przy zachowaniu układu konstrukcyjnego i wymaganej wytrzymałości;
- zmiana stolarki okiennej i drzwiowej oraz materiałów wykończeniowych.
Dodatki
Bezpłatne dodatki
GratisZestaw umów
GratisZmiany w projekcie
GratisTablica budowy
GratisDziennik budowy
Płatne dodatki

Projekt ogrzewanie podłogowe
500 zł

Pompa ciepła powietrzna / gruntowa
370 zł

Projekt wentylacji mechanicznej
800 zł

Dodatkowy egzemplarz projektu
400 zł

Wersja elektroniczna projektu
400 zł

Kosztorys inwestorski+przedmiar
550 zł









