- Typ projektuWolnostojący
- StylTradycyjny
- Powierzchnia użytkowa67.57 m²
- KondygnacjeParterowy, z poddaszem
- GarażBez garażu
- DachDwuspadowy
- Kąt nach. dachu40°
- Odbicie lustrzaneNie
- Czas realizacjimax. czas realizacji 10 dni Zobacz więcej >
Opis
Zgodność z WT 2021 i Eurokodami
Ze względu na dostosowywanie projektu do standardu WT 2021, czas realizacji może się różnić od standardowego.
Skontaktuj się z nami aby poznać szczegóły dotyczące wybranego projektu.
Opis projektu
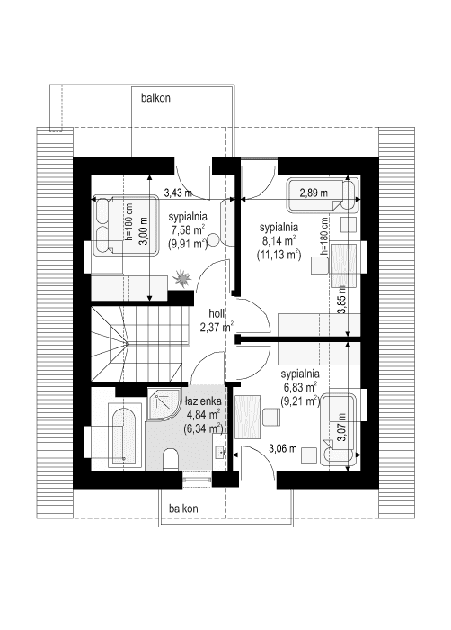
Projekt domu „Oleńka” to urocza propozycja dla trzy-czteroosobowej rodziny. Dom zaprojektowaliśmy na planie zbliżonym do kwadratu, ma poddasze użytkowe przykryte dwuspadowym dachem. Projekt posiada wszystkie atuty, aby stać się ulubieńcem swoich przyszłych właścicieli. Architektura zewnętrzna domu to połączenie nowoczesnych detali i materiałów z tradycyjną formą „dachowca”. Projekt domu „Oleńka” z jednej strony jest skromny i powściągliwy w wyrazie, z drugiej strony ma w sobie nowoczesność, atrakcyjność i świeżość. Front domu ozdobiony jest okładzinami ścian z drewna, oraz balkonem będącym jednocześnie zadaszeniem nad wejściem. Elewację ogrodową urozmaica balkon – podcień wsparty na ścianie – słupie, oraz drewniana okładzina ścian. Wnętrze domu podzielono tradycyjnie na parter z częścią dzienną, oraz poddasze – z sypialniami i łazienką. Na parterze salon połączono z holem i kuchnią tworząc jednoprzestrzenne wnętrze, z kątem jadalnym, ścianę telewizyjną i kominkiem, a także szerokimi przeszklonymi drzwiami na taras i ogród. Znajdująca się przy przedsionku kotłownia gazowa może być bardzo łatwo zamieniona na kotłownię na paliwo stałe. Na poddaszu znajdują się sypialnie z szafami wbudowanymi i łazienka. Dom posiada świetną izolację termiczną, wykorzystuje nowoczesne instalacje i technologie, dzięki czemu jest energooszczędny. Właściwa proporcja kubatury do ilości przegród zewnętrznych - ścian i sufitów, pozwoli na niskie koszty utrzymania budynku. Dzięki prostej konstrukcji „Oleńka” jest niedroga w budowie. Projekt domu „Oleńka” występuje w wersji bez garażu, ale łatwo można doprojektować garaż z boku domu. Pracownia posiada wersję odbicia lustrzanego projektu. Zapraszamy!
Konstrukcja
- Fundamentybetonowe ławy i ściany fundamentowe z bloczków betonowych
- Ściany zewnętrzneściany murowane - pustaki porotherm 25 + styropian + tynk cienkowarstwowy
- StropTeriva
- Elewacjetynk cienkowarstwowy na styropianie
- Pokrycie dachudachówka ceramiczna
Rzuty
Dane techniczne
- Powierzchnia użytkowa67.57 m²
- Powierzchnia netto72.3 m²
- Powierzchnia zabudowy57.48 m²
- KominekTak
- Liczba łazienek2
- Liczba pokoi4
- Powierzchnia dachu105.52 m²
- Kubatura317 m³
- Długość domu7.9 m
- Szerokość domu7.3 m
- Wysokość domu7.62 m
- Poddaszeużytkowe
- Minimalne wymiary działki16.6 x 15.03m
- GarażBez garażu
- Rodzaj dachuDwuspadowy
- Kąt nach. dachu40°
Koszty budowy
- Stan surowy103740 zł
- Stan surowy zamknięty144047 zł
- Koszt wykończenia156046 zł
- Koszt instalacji67038 zł
Zawartość projektu
W komplecie nowej wersji dokumentacji projektowej znajdują się 3 egzemplarze projektu architektoniczno-budowlanego oraz 3 egzemplarze projektu technicznego
Projekt architektoniczno-budowlany zawierający:
-opis architektoniczny z elementami konstrukcji,
-część rysunkowa: rzut parteru, poddasza/piętra, rzut dachu w skali 1:100, przekroje skala 1:50,
elewacje skala 1:100.
Projekt techniczny zawierający:
-opis techniczny i konstrukcyjny (obliczenia statyczne - w zależności od projektu włączone w projekt lub stanowiące odrębną teczkę).
Część rysunkowa architektura i konstrukcja:
-rzuty fundamentów, parteru, poddasza, stropu, więźby, dachu / w skali 1:50,
-przekroje przez budynek / budynek skali 1:50,
-elewacje budynku / w skali 1:50 (*niektóre projekty posiadają rysunki w skali 1:100 lub 1:75),
-zestawienie stolarki budowlanej okiennej i drzwiowej,
-szczegóły konstrukcji i ewentualne szczegóły budowlane,
Część instalacyjna:
-część opisowa do projektów instalacji elektrycznych, wodno-kanalizacyjnych, grzewczych, gazowych (jeśli występują).
Część rysunkowa do projektów instalacji:
-schematy instalacji elektrycznych, schemat rozdzielni, plan instalacji odgromowej,
-schematy instalacji wodno-kanalizacyjnej i ciepłej wody,
-schematy instalacji grzewczych,
-schemat instalacji gazowej (jeśli występują).
Do projektu dołączane jest zestawienie materiałowe, z wykazem elementów drewnianych oraz stali budowlanej.
Do projektu dołączone są kopie uprawnień wszystkich projektantów, oraz aktualne zaświadczenia o przynależności do izb zawodowych.
Projekt zawiera oświadczenie projektantów o poprawności projektu w świetle Prawa Budowlanego, a także zawiera informację dotyczącą bezpieczeństwa i ochrony zdrowia ( BIOZ).
Do projektu dołączona jest także zgoda na zmiany adaptacyjne. Zgoda dołączana jest do każdego projektu bezpłatnie. Na Państwa życzenie zakres zgody na zmiany możemy dowolnie rozszerzyć.
Pracownia zezwala na następujące zmiany i odstępstwa od projektu architektoniczno-budowlanego w trakcie jego przystosowywania do lokalizacji:
- Zmianę obrysu zewnętrznego ścian zewnętrznych.
- Zmianę obrysu wewnętrznego ścian zewnętrznych.
- Zmianę układu ścian wewnętrznych działowych.
- Zmianę funkcji, ilości i usytuowania poszczególnych pomieszczeń na dowolnej kondygnacji w projekcie.
- Zmianę ukształtowania, ilości i kąta nachylenia połaci dachowych.
- Zmianę ilości, umiejscowienia i wielkości otworów okiennych i drzwiowych.
- Zmianę rodzaju materiału i technologii wykonania ścian zewnętrznych oraz wewnętrznych oraz ścian fundamentowych.
- Zmianę rodzaju i technologii wykonania stropów nad dowolną kondygnacją.
- Zmianę umiejscowienia, kształtu i materiału wykonania schodów w budynku.
- Zmianę wielkości, kształtu i materiałów, bądź likwidacja: tarasów, podestów i balkonów.
- Likwidację lub dodanie dowolnej ilości:
- lukarn,
- wykuszy,
- podcieni,
- balkonów,
- loggii,
- kolumn,
- pilastrów,
- ganków,
- werand.
- Zmianę materiałów wykończeniowych, instalacyjnych, izolacyjnych.
- Zmianę rodzaju pokrycia dachowego.
- Doprojektowanie bądź likwidacja podpiwniczenia - częściowego lub całkowitego.
Dodatki
Bezpłatne dodatki
GratisZestaw umów
GratisZmiany w projekcie
PromocjaProjekt szamba szczelnego
GratisTablica budowy
GratisDziennik budowy
Płatne dodatki

Pakiet wentylacja mechaniczna i kominek DGP
550 zł

Kosztorys inwestorski
600 zł

Pakiet odkurzacz centralny
550 zł

Wersja elektroniczna projektu
600 zł

Pakiet instalacja solarna
550 zł

Pakiet ogrzewanie podłogowe
550 zł

Pakiet powietrzna pompa ciepła
550 zł

Pakiet płaszcz wodny
550 zł

Pakiet kotłownia na paliwo stałe
550 zł

Pakiet klimatyzacja w domu
550 zł

Projekt ogrodzenia
750 zł

Pakiet instalacja fotowoltaiczna
550 zł

Pakiet kominek z DGP
500 zł

Pakiet gruntowa pompa ciepła
550 zł

Projekt altan i grilów ogrodowych
850 zł

Dodatkowy egzemplarz do projektu
650 zł



























