- Typ projektuWolnostojący
- StylNowoczesny
- Powierzchnia użytkowa95.53 m²
- KondygnacjeParterowy, z poddaszem
- GarażBez garażu
- DachDwuspadowy
- Kąt nach. dachu30°
- Odbicie lustrzaneNie
- Czas realizacjimax. czas realizacji 10 dni Zobacz więcej >
Opis
Zgodność z WT 2021 i Eurokodami
Ze względu na dostosowywanie projektu do standardu WT 2021, czas realizacji może się różnić od standardowego.
Skontaktuj się z nami aby poznać szczegóły dotyczące wybranego projektu.
Opis projektu
Wariant domku ze stropem Teriva nad parterem oraz z jednoprzestrzennym strychem do zagospodarowania.
Projekt domu Oliwka to projekt parterowego domu jednorodzinnego, dla czteroosobowej rodziny, ze strychem do adaptacji, przekrytym dwuspadowym symetrycznym dachem. Prosta nowoczesna bryła budynku ozdobiona jest oryginalną stolarką okienną, oraz drewnianymi i klinkierowymi okładzinami ścian. Tradycyjna forma parterowego domu zaprojektowanego na planie prostokąta, została połączona z nowoczesnym detalem i materiałami. Elewację frontową Oliwki urozmaica podcień wejściowy i drewniana okładzina ściany. Narożne okno kuchni dodaje frontowi charakteru. Dom od strony ogrodu z kolei wzbogacają : narożny podcień zadaszenia tarasu i szerokie przeszklenia salonu. Współczesna stylistyka domu bardzo łatwo daje się modelować i modyfikować - Oliwka równie dobrze może mieć dach z dachówki, czy ściany z boniowaniem. Wnętrze ma tradycyjny układ czteropokojowego parterowego domu jednorodzinnego. Czytelny jest podział na cześć dzienną, z salonem, jadalnią, kuchnią i holem, oraz cześć nocną – z sypialniami i łazienkami. Gazowa kotłownia zlokalizowana przy wejściu może być łatwo dostosowana do pieca na paliwo stałe. Pokój dzienny z aneksem jadalnym jest bardzo ustawny. Jest tu świetne miejsce na meble wypoczynkowe, kominek, a także ścianę TV. Kuchnia posiada własną spiżarkę - marzenie niejednej pani domu. Trzy wygodne sypialnie z przewidzianymi ścianami na szafy wbudowane graniczą z dwiema łazienkami. Mała łazienka z wc i natryskiem pełni rolę codziennej toalety i dodatkowej łazienki zarazem. Schody w korytarzu wiodą nas na strych, który właściciele mogą dowolnie wykorzystać : jako dodatkową przestrzeń magazynową, lub powierzchnię użytkową. Projekt domu Oliwka zaprojektowano jako energooszczędny, z wykorzystaniem nowoczesnych materiałów, instalacji i technologii. Dzięki temu będzie tani w budowie i w późniejszym utrzymaniu. Podstawowa wersja Oliwki nie posiada garażu, ale z łatwością można doprojektować do niej pojedynczy lub podwójny garaż. Można też dołączyć do budynku garaż wolnostojący. Pracownia posiada projekt domu Oliwka w odbiciu lustrzanym.
Konstrukcja
- Fundamentybetonowe ławy i ściany fundamentowe z bloczków betonowych
- Ściany zewnętrzneściany murowane - pustaki porotherm 25 + styropian + tynk cienkowarstwowy
- StropTeriva
- Elewacjetynk cienkowarstwowy na styropianie
- Pokrycie dachudachówka ceramiczna
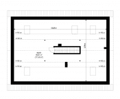
Rzuty
Dane techniczne
- Powierzchnia użytkowa95.53 m²
- Powierzchnia netto98.38 m²
- Powierzchnia zabudowy128.04 m²
- KominekTak
- Liczba łazienek2
- Liczba pokoi4
- Powierzchnia dachu194.45 m²
- Kubatura601 m³
- Długość domu9.76 m
- Szerokość domu14.22 m
- Wysokość domu6.58 m
- Poddaszestrych
- Minimalne wymiary działki17.76 x 22.22m
- GarażBez garażu
- Rodzaj dachuDwuspadowy
- Kąt nach. dachu30°
Koszty budowy
- Stan surowy140568 zł
- Stan surowy zamknięty193345 zł
- Koszt wykończenia149940 zł
- Koszt instalacji60242 zł
Zawartość projektu
W komplecie nowej wersji dokumentacji projektowej znajdują się 3 egzemplarze projektu architektoniczno-budowlanego oraz 3 egzemplarze projektu technicznego
Projekt architektoniczno-budowlany zawierający:
-opis architektoniczny z elementami konstrukcji,
-część rysunkowa: rzut parteru, poddasza/piętra, rzut dachu w skali 1:100, przekroje skala 1:50,
elewacje skala 1:100.
Projekt techniczny zawierający:
-opis techniczny i konstrukcyjny (obliczenia statyczne - w zależności od projektu włączone w projekt lub stanowiące odrębną teczkę).
Część rysunkowa architektura i konstrukcja:
-rzuty fundamentów, parteru, poddasza, stropu, więźby, dachu / w skali 1:50,
-przekroje przez budynek / budynek skali 1:50,
-elewacje budynku / w skali 1:50 (*niektóre projekty posiadają rysunki w skali 1:100 lub 1:75),
-zestawienie stolarki budowlanej okiennej i drzwiowej,
-szczegóły konstrukcji i ewentualne szczegóły budowlane,
Część instalacyjna:
-część opisowa do projektów instalacji elektrycznych, wodno-kanalizacyjnych, grzewczych, gazowych (jeśli występują).
Część rysunkowa do projektów instalacji:
-schematy instalacji elektrycznych, schemat rozdzielni, plan instalacji odgromowej,
-schematy instalacji wodno-kanalizacyjnej i ciepłej wody,
-schematy instalacji grzewczych,
-schemat instalacji gazowej (jeśli występują).
Do projektu dołączane jest zestawienie materiałowe, z wykazem elementów drewnianych oraz stali budowlanej.
Do projektu dołączone są kopie uprawnień wszystkich projektantów, oraz aktualne zaświadczenia o przynależności do izb zawodowych.
Projekt zawiera oświadczenie projektantów o poprawności projektu w świetle Prawa Budowlanego, a także zawiera informację dotyczącą bezpieczeństwa i ochrony zdrowia ( BIOZ).
Do projektu dołączona jest także zgoda na zmiany adaptacyjne. Zgoda dołączana jest do każdego projektu bezpłatnie. Na Państwa życzenie zakres zgody na zmiany możemy dowolnie rozszerzyć.
Pracownia zezwala na następujące zmiany i odstępstwa od projektu architektoniczno-budowlanego w trakcie jego przystosowywania do lokalizacji:
- Zmianę obrysu zewnętrznego ścian zewnętrznych.
- Zmianę obrysu wewnętrznego ścian zewnętrznych.
- Zmianę układu ścian wewnętrznych działowych.
- Zmianę funkcji, ilości i usytuowania poszczególnych pomieszczeń na dowolnej kondygnacji w projekcie.
- Zmianę ukształtowania, ilości i kąta nachylenia połaci dachowych.
- Zmianę ilości, umiejscowienia i wielkości otworów okiennych i drzwiowych.
- Zmianę rodzaju materiału i technologii wykonania ścian zewnętrznych oraz wewnętrznych oraz ścian fundamentowych.
- Zmianę rodzaju i technologii wykonania stropów nad dowolną kondygnacją.
- Zmianę umiejscowienia, kształtu i materiału wykonania schodów w budynku.
- Zmianę wielkości, kształtu i materiałów, bądź likwidacja: tarasów, podestów i balkonów.
- Likwidację lub dodanie dowolnej ilości:
- lukarn,
- wykuszy,
- podcieni,
- balkonów,
- loggii,
- kolumn,
- pilastrów,
- ganków,
- werand.
- Zmianę materiałów wykończeniowych, instalacyjnych, izolacyjnych.
- Zmianę rodzaju pokrycia dachowego.
- Doprojektowanie bądź likwidacja podpiwniczenia - częściowego lub całkowitego.
Dodatki
Bezpłatne dodatki
GratisZestaw umów
GratisZmiany w projekcie
PromocjaProjekt szamba szczelnego
GratisTablica budowy
GratisDziennik budowy
Płatne dodatki

Pakiet wentylacja mechaniczna i kominek DGP
550 zł

Kosztorys inwestorski
600 zł

Pakiet odkurzacz centralny
550 zł

Wersja elektroniczna projektu
600 zł

Pakiet instalacja solarna
550 zł

Pakiet ogrzewanie podłogowe
550 zł

Pakiet powietrzna pompa ciepła
550 zł

Pakiet płaszcz wodny
550 zł

Pakiet kotłownia na paliwo stałe
550 zł

Pakiet klimatyzacja w domu
550 zł

Projekt ogrodzenia
750 zł

Pakiet instalacja fotowoltaiczna
550 zł

Pakiet kominek z DGP
500 zł

Pakiet gruntowa pompa ciepła
550 zł

Projekt altan i grilów ogrodowych
850 zł

Dodatkowy egzemplarz do projektu
650 zł






























