Projekt domu ONTARIO z płazów drewnianych
- Typ projektuWolnostojący
- Powierzchnia użytkowa102.29 m²
- Kondygnacjez poddaszem, z piwnicą
- GarażBez garażu
- DachDwuspadowy
- Kąt nach. dachu43°
- Odbicie lustrzaneTak
- Czas realizacjido 10 dni roboczych Zobacz więcej >
Opis
Konstrukcja
- powierzchnia zabudowy - 88,00m2
- kubatura - 459,25m3
- na konstrukcje ścianki składają się: pozioma podwalina, pionowe słupki oraz oczep górny
- nad częścią piwnicy zaprojektowano z strop POROTHERM 25cm
- zaprojektowano wieżbbę z wiązarów attykowych o kącie nachylenia 43°
- pokrycie dachówka ceramiczna
- instalacja grzewcza: kocioł gazowy w piwnicy
Rzuty
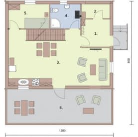
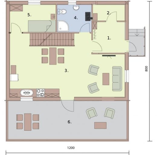
Rzut przyziemia
- 1. Hall5.16
- 3. salon z aneksem kuchennym34.94
- 4. Łazienka5
- 2. Pomieszczenie gospodarcze2.69
- 5. Sypialnia6.64
- 6. Taras26.22
Rzut poddasza
Rzut piwnicy
Dane techniczne
- Powierzchnia użytkowa102.29 m²
- Powierzchnia zabudowy88 m²
- Liczba pokoi12
- Powierzchnia dachu160 m²
- Kubatura459.25 m³
- Wysokość domu6.7 m
- Piwnicatak
- PoddaszeUżytkowe
- Minimalne wymiary działki17.2 x 15.8m
- GarażBez garażu
- Rodzaj dachuDwuspadowy
- Kąt nach. dachu43°
Zawartość projektu
Projekty są dostępne w wersji książkowej, drukowanej w tak zwanym w nowym trybie 3 egzemplarze projektu architektoniczno-budowlanego oraz 3 egzemplarze projektu technicznego. Na życzenie przesyłamy rzuty i przekroje wersji podstawowych dokumentacji w formacie PDF
Każdy projekt architektoniczno-budowlany domu składa się z następujących części:
- strona tytułowa,
- oświadczenie
- część opisowa projektu architektoniczno-budowlanego,
- projektowana charakterystyka energetyczna z analizą,
- część rysunkowej projektu architektoniczno-budowlanego,
- zaświadczenia i uprawnienia.
Każdy projekt techniczny domu składa się z:
- strony tytułowej,
- oświadczenia,
- części opisowej projektu technicznego,
- części rysunkowej projektu technicznego,
- części konstrukcyjnej,
- zaświadczenia i uprawnień,
- zestawień drewna i stali,
-instalacji elektrycznej i odgromowej,
-instalacji sanitarnych, gazowych i centralnego ogrzewania.
Do projektu na życzenie dołączamy obliczenia statyczno-wytrzymałościowe.
Inwestor otrzymuje 3 opieczętowane sztuki projektu architektoniczno-budowlanego oraz 3 egzemplarze projektu technicznego tworzące komplet, każdy z plombą zabezpieczającą i oryginalnym hologramem biura.
Pierwszy egzemplarz tomu I zawiera zgodę in blanco na wszystkie zmiany wprowadzane do projektu po zakupie przez lokalnego wybranego na własną rękę przez Inwestora architekta adaptującego/kierownika budowy. Do teczki projektów dołączamy także zaświadczenia i aktualne wpisy do Izb autorów projektu oraz wpisy aktualne na czas sporządzenia projektu.
Dodatki
Bezpłatne dodatki
GratisZestaw umów
GratisZmiany w projekcie
GratisTablica budowy
GratisDziennik budowy
Płatne dodatki

Kosztorys
370 zł

Dodatkowy egzemplarz projektu
450 zł

Projekt wentylacji mechanicznej z rekuperatorem
450 zł

Projekt fotowoltaiki dla domu
750 zł

Projekt instalacji z ogrzewaniem podłogowym
400 zł









