- Typ projektuWolnostojący
- Powierzchnia użytkowa123.4 m²
- KondygnacjeParterowy, z poddaszem, z piwnicą
- GarażJednostanowiskowy
- DachDwuspadowy
- Kąt nach. dachu38°
- Odbicie lustrzaneTak
- Czas realizacjimax. czas realizacji 10 dni Zobacz więcej >
Opis
Zgodność z WT 2021 i Eurokodami
Ze względu na dostosowywanie projektu do standardu WT 2021, czas realizacji może się różnić od standardowego.
Skontaktuj się z nami aby poznać szczegóły dotyczące wybranego projektu.
Opis projektu
Dom z poddaszem użytkowym. Podpiwniczony. Na parterze salon z kominkiem oraz wyjściem na balkon. Kuchnia, spiżarka, łazienka, dwa pokoje, komunikacja, wiatrołap. Na poddaszu trzy pokoje, garderoba, łazienka, komunikacja, stryszek oraz dwa balkony. W podpiwniczeniu garaż, kotłownia, komunikacja, dwie piwnice.Rzuty
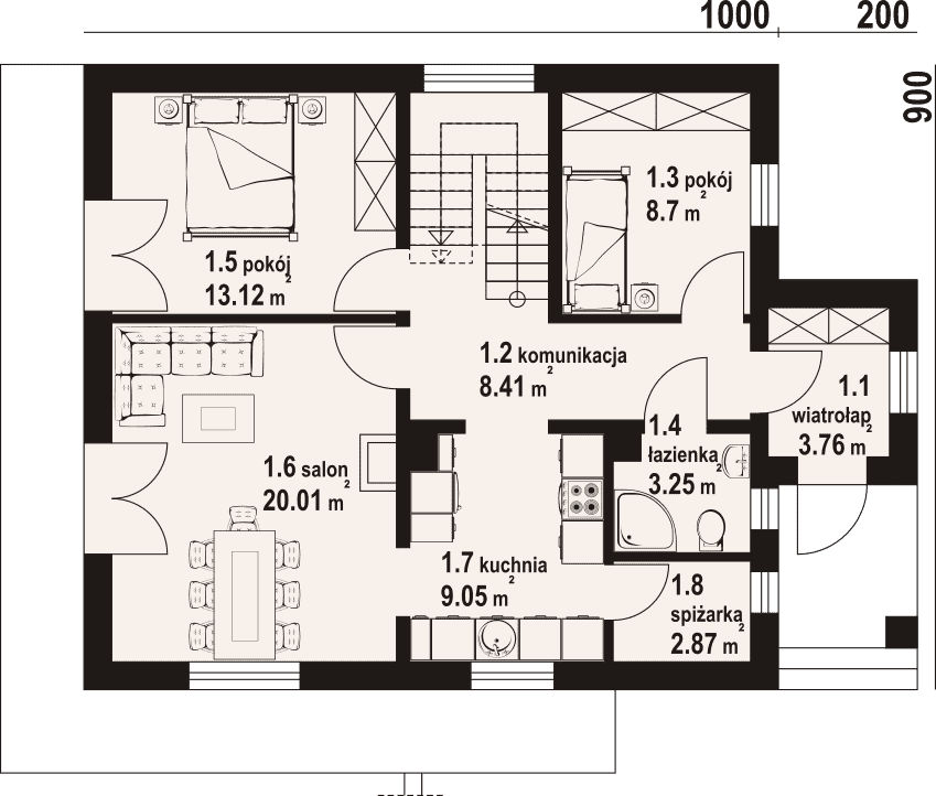
Parter
- 1.1 - wiatrołap3.76 m²
- 1.2 - komunikacja8.41 m²
- 1.3 - pokój8.7 m²
- 1.4 - łazienka3.25 m²
- 1.5 - pokój13.12 m²
- 1.6 - salon20.01 m²
- 1.7 - kuchnia9.05 m²
- 1.8 - spiżarka2.87 m²
Poddasze
- 2.1 - komunikacja6.64 m²
- 2.2 - łazienka6.52 m²
- 2.3 - pokój12.79 m²
- 2.4 - pokój15.7 m²
- 2.5 - pokój13.45 m²
- 2.6 - garderoba3.23 m²
- 2.7 - stryszek3.23 m²
Piwnica
- 0.1 - komunikacja4.75 m²
- 0.2 - garaż33.62 m²
- 0.3 - kotłownia15.76 m²
- 0.4 - piwnica12.84 m²
- 0.5 - piwnica3.76 m²
Sytuacja
Dane techniczne
- Powierzchnia użytkowa123.4 m²
- Powierzchnia netto281.61 m²
- Powierzchnia zabudowy100.6 m²
- KominekTak
- Liczba łazienek2
- Liczba pokoi6
- Powierzchnia dachu191 m²
- Kubatura808.4 m³
- Wysokość domu8.5 m
- Minimalne wymiary działki20 x 17m
- GarażJednostanowiskowy
- Rodzaj dachuDwuspadowy
- Kąt nach. dachu38°
Instalacja grzewcza
- Instalacja grzewczakocioł na paliwo stałe lub kocioł gazowy, instalacja solarna
Zawartość projektu
Zamówiony u nas projekt gotowy otrzymacie Państwo w komplecie składającym się z trzech egzemplarzy projektu architektoniczno-budowlanego wykonanego zgodnie z przepisami Prawa budowlanego (Prawo budowlane - tekst jednolity, Dz. U. 2020 poz. 1333).
Część opisowa projektu architektoniczno-budowlanego składa się z:
- opisu architektonicznego zawierającego m.in. opis przyjętych rozwiązań, zestawienia powierzchni (użytkowej, zabudowy, netto), kubatury oraz powierzchni poszczególnych pomieszczeń. 
Część rysunkowa projektu architektoniczno-budowlanego składa się między innymi z:
- rzutów kondygnacji użytkowych (parteru i jeśli występują: poddasza, piętra, piwnic), 
- rzutu dachu, 
- przekroi poprzecznych i ewentualnie podłużnych, 
- elewacji, 
- zestawienia stolarki okiennej i drzwiowej. 
Ponadto projekt gotowy obejmuje trzy egzemplarze opracowań branżowych stanowiące części projektu technicznego, a mianowicie:
- projekt konstrukcji, 
- projekt instalacji wodno-kanalizacyjnej, 
- projekt instalacji centralnego ogrzewania, 
- projekt instalacji gazowej (jeżeli występuje), 
- projekt instalacji elektrycznej i odgromowej. 
Część opisowa projektu technicznego składa się z:
- opisu konstrukcyjnego zawierającego m.in. opis materiałów, z których wykonane są elementy konstrukcyjne, obliczenia statyczne wraz z przyjętymi obciążeniami, zestawienia drewna konstrukcyjnego i zestawienie stali,
- opisu instalacji centralnego ogrzewania, wod-kan, gazowej (jeżeli występuje), elektrycznej i odgromowej precyzującego przyjęte w tych branżach rozwiązania, sposób wykonania instalacji i zapotrzebowania na poszczególne media.
Część rysunkowa projektu technicznego składa się między innymi z:
- rzutu fundamentów,
- rzutów konstrukcyjnych poszczególnych kondygnacji,
- rysunków niezbędnych elementów konstrukcyjnych, zbrojenia płyt oraz innych elementów żelbetowych,
- rzutu więźby dachowej,
- rzutów instalacji centralnego ogrzewania oraz schematu technologicznego kotłowni (jeżeli występują),
- rzutów instalacji wod-kan,
- rzutów oraz rozwinięcia instalacji gazowej (jeżeli występuje),
- rzutów instalacji elektrycznej,
- schematu tablicy TM,
- rzutu instalacji odgromowej.
Do dokumentacji dołączone są projektowana charakterystyka energetyczna, kopie uprawnień oraz przynależności do izb zawodowych projektantów oraz standardowa zgoda na zmiany w projekcie. Komplet dokumentacji znajduje się w praktycznej i estetycznej teczce.
Inne warianty tego projektu
Dodatki
Bezpłatne dodatki
 Gratis
GratisZestaw umów
 Gratis
GratisZmiany w projekcie
 Gratis
GratisTablica budowy
 Gratis
GratisDziennik budowy
Płatne dodatki

Dodatkowy egzemplarz projektu
500 zł














