- Typ projektuWolnostojący
- StylTradycyjny
- Powierzchnia użytkowa164.48 m²
- KondygnacjeParterowy
- GarażDwustanowiskowy
- DachWielospadowy
- Kąt nach. dachu30°
- Odbicie lustrzaneNie
- Czas realizacjimax. czas realizacji 10 dni Zobacz więcej >
Opis
Zgodność z WT 2021 i Eurokodami
Ze względu na dostosowywanie projektu do standardu WT 2021, czas realizacji może się różnić od standardowego.
Skontaktuj się z nami aby poznać szczegóły dotyczące wybranego projektu.
Opis projektu
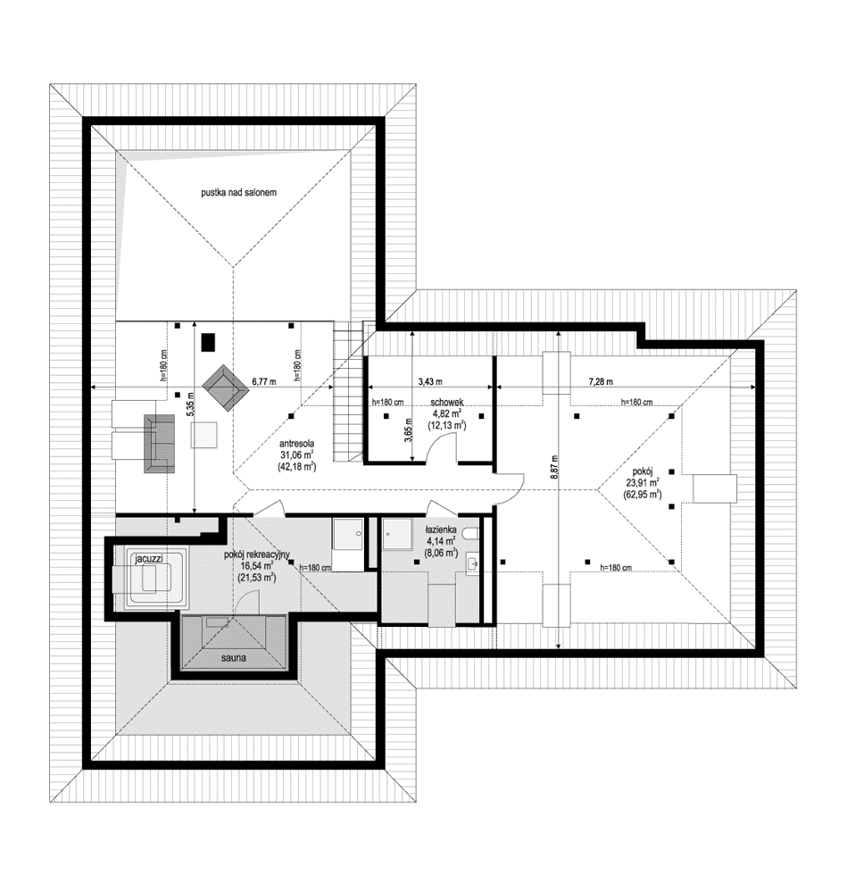
Projekt domu Parterowy 2 to nieco powiększona wersja projektu „Parterowy”. Jest to dom dla czero-pięciosobowej rodziny, jednokondygnacyjny, ze wszystkimi pomieszczeniami dziennymi na parterze, zbudowany na planie litery T”, przykryty łagodnym wielospadowym dachem. Projekt domu Parterowy 2 przeznaczony jest dla inwestorów mających luksus odpowiednio dużej działki, na której mogą sobie pozwolić na parterowy domek. W zamian otrzymują komfortowy bungalow, z pomieszczeniami na jednym poziomie, z bezpośrednim kontaktem z otaczającym ogrodem. Wspaniałe miejsce do życia. Nowoczesna architektura tego „współczesnego dworku ;)” podkreślona została dużymi przeszkleniami okien, drewnianymi wstawkami elewacji, oraz narożnymi podcieniami - frontowym kryjącym podest wejściowy, oraz ogrodowym - przekrywającym częściowo taras. Kolorystyka budynku jest stonowana, harmonizująca z otaczającą dom zielenią. Dostojna sylwetka przywodzi na myśl komfort życia i wrażenie bezpretensjonalnego luksusu. Wnętrze domu jest równie ciekawe i atrakcyjne. Podzielone zostało na trzy funkcje, w trzech skrzydłach domu : gospodarczą, dzienną i nocną – z sypialniami. Części domu połączone są holem i przedsionkiem wejściowym. Do domu wchodzimy przez ładny przedsionek - w bok do dwustanowiskowego garażu (ze strychem - magazynem) i kotłowni, oraz na wprost, do części dziennej domu. Cześć dzienna składa się z holu, salonu z aneksem jadalnym i kuchnią. Nad salonem zaprojektowano antresolę ze schodkami i widokiem na pustkę nad pokojem dziennym. Na antresoli można urządzić dodatkową przestrzeń rekreacyjną. W środkowym miejscu salonu zaprojektowano ścianę kominkową, oddzielającą częściowo kuchnię od reszty powierzchni. Trzecia część to część prywatna domowników, z apartamentem rodziców, z własną łazienką i garderobą, dwiema sypialniami dzieci z szafami wbudowanymi i własną łazienką, z gabinetem z oknem na front domu, oraz pralnią i dodatkowym wc. Nad tą częścią jest jeszcze dodatkowy strych, dostępny z antresoli nad salonem. Dom ma w sumie prostą konstrukcję i jest łatwy w budowie. Mimo rozłożystej bryły będzie niedrogi w realizacji i późniejszym użytkowaniu. Projekt domu Parterowy 2 to doskonała propozycja dla osób planujących budowę wygodnego, jednokondygnacyjnego domu. Dla osób marzących o komforcie przestrzeni i kontakcie z otaczającym dom ogrodem. Zapraszamy do zapoznania się z pełną ofertą pracowni MG Projekt: Parterowy, Parterowy 3, Parterowy 4.
Wariant projektu Parterowy 2 ze zmienionym kątem nachylania dachu i zagospodarowanym poddaszem.
Konstrukcja
- Fundamentybetonowe ławy i ściany fundamentowe z bloczków betonowych
- Ściany zewnętrzneściany murowane - pustaki porotherm 25 + styropian
- Stropżelbetowy monolityczny
- Elewacjetynk cienkowarstwowy na styropianie
- Pokrycie dachudachówka ceramiczna
Rzuty
Dane techniczne
- Powierzchnia użytkowa164.48 m²
- Powierzchnia netto171.33 m²
- Powierzchnia zabudowy254.53 m²
- KominekTak
- Liczba łazienek3
- Liczba pokoi5
- Powierzchnia dachu386 m²
- Kubatura930 m³
- Długość domu18.69 m
- Szerokość domu19.52 m
- Wysokość domu6.66 m
- Poddaszeużytkowe
- Minimalne wymiary działki25.69 x 27.52m
- GarażDwustanowiskowy
- Rodzaj dachuWielospadowy
- Kąt nach. dachu30°
Koszty budowy
- Stan surowy324035 zł
- Stan surowy zamknięty407051 zł
- Koszt wykończenia334824 zł
- Koszt instalacji89916 zł
Zawartość projektu
W komplecie nowej wersji dokumentacji projektowej znajdują się 3 egzemplarze projektu architektoniczno-budowlanego oraz 3 egzemplarze projektu technicznego
Projekt architektoniczno-budowlany zawierający:
-opis architektoniczny z elementami konstrukcji,
-część rysunkowa: rzut parteru, poddasza/piętra, rzut dachu w skali 1:100, przekroje skala 1:50,
elewacje skala 1:100.
Projekt techniczny zawierający:
-opis techniczny i konstrukcyjny (obliczenia statyczne - w zależności od projektu włączone w projekt lub stanowiące odrębną teczkę).
Część rysunkowa architektura i konstrukcja:
-rzuty fundamentów, parteru, poddasza, stropu, więźby, dachu / w skali 1:50,
-przekroje przez budynek / budynek skali 1:50,
-elewacje budynku / w skali 1:50 (*niektóre projekty posiadają rysunki w skali 1:100 lub 1:75),
-zestawienie stolarki budowlanej okiennej i drzwiowej,
-szczegóły konstrukcji i ewentualne szczegóły budowlane,
Część instalacyjna:
-część opisowa do projektów instalacji elektrycznych, wodno-kanalizacyjnych, grzewczych, gazowych (jeśli występują).
Część rysunkowa do projektów instalacji:
-schematy instalacji elektrycznych, schemat rozdzielni, plan instalacji odgromowej,
-schematy instalacji wodno-kanalizacyjnej i ciepłej wody,
-schematy instalacji grzewczych,
-schemat instalacji gazowej (jeśli występują).
Do projektu dołączane jest zestawienie materiałowe, z wykazem elementów drewnianych oraz stali budowlanej.
Do projektu dołączone są kopie uprawnień wszystkich projektantów, oraz aktualne zaświadczenia o przynależności do izb zawodowych.
Projekt zawiera oświadczenie projektantów o poprawności projektu w świetle Prawa Budowlanego, a także zawiera informację dotyczącą bezpieczeństwa i ochrony zdrowia ( BIOZ).
Do projektu dołączona jest także zgoda na zmiany adaptacyjne. Zgoda dołączana jest do każdego projektu bezpłatnie. Na Państwa życzenie zakres zgody na zmiany możemy dowolnie rozszerzyć.
Pracownia zezwala na następujące zmiany i odstępstwa od projektu architektoniczno-budowlanego w trakcie jego przystosowywania do lokalizacji:
- Zmianę obrysu zewnętrznego ścian zewnętrznych.
- Zmianę obrysu wewnętrznego ścian zewnętrznych.
- Zmianę układu ścian wewnętrznych działowych.
- Zmianę funkcji, ilości i usytuowania poszczególnych pomieszczeń na dowolnej kondygnacji w projekcie.
- Zmianę ukształtowania, ilości i kąta nachylenia połaci dachowych.
- Zmianę ilości, umiejscowienia i wielkości otworów okiennych i drzwiowych.
- Zmianę rodzaju materiału i technologii wykonania ścian zewnętrznych oraz wewnętrznych oraz ścian fundamentowych.
- Zmianę rodzaju i technologii wykonania stropów nad dowolną kondygnacją.
- Zmianę umiejscowienia, kształtu i materiału wykonania schodów w budynku.
- Zmianę wielkości, kształtu i materiałów, bądź likwidacja: tarasów, podestów i balkonów.
- Likwidację lub dodanie dowolnej ilości:
- lukarn,
- wykuszy,
- podcieni,
- balkonów,
- loggii,
- kolumn,
- pilastrów,
- ganków,
- werand.
- Zmianę materiałów wykończeniowych, instalacyjnych, izolacyjnych.
- Zmianę rodzaju pokrycia dachowego.
- Doprojektowanie bądź likwidacja podpiwniczenia - częściowego lub całkowitego.
Dodatki
Bezpłatne dodatki
GratisZestaw umów
GratisZmiany w projekcie
PromocjaProjekt szamba szczelnego
GratisTablica budowy
GratisDziennik budowy
Płatne dodatki

Pakiet wentylacja mechaniczna i kominek DGP
550 zł

Kosztorys inwestorski
600 zł

Pakiet odkurzacz centralny
550 zł

Wersja elektroniczna projektu
600 zł

Pakiet instalacja solarna
550 zł

Pakiet ogrzewanie podłogowe
550 zł

Pakiet powietrzna pompa ciepła
550 zł

Pakiet płaszcz wodny
550 zł

Pakiet kotłownia na paliwo stałe
550 zł

Pakiet klimatyzacja w domu
550 zł

Projekt ogrodzenia
750 zł

Pakiet instalacja fotowoltaiczna
550 zł

Pakiet kominek z DGP
500 zł

Pakiet gruntowa pompa ciepła
550 zł

Projekt altan i grilów ogrodowych
850 zł

Dodatkowy egzemplarz do projektu
650 zł

































