Projekt domu podbrzezie ab
Promocja ważna do
02-04-2026
- Typ projektuBliźniak
- Powierzchnia użytkowa120.52 m²
- KondygnacjeParterowy, z poddaszem
- GarażJednostanowiskowy
- DachDwuspadowy
- Kąt nach. dachu38°
- Odbicie lustrzaneTak
- Czas realizacjimax. czas realizacji 10 dni Zobacz więcej >
Opis
Zgodność z WT 2021 i Eurokodami
Ze względu na dostosowywanie projektu do standardu WT 2021, czas realizacji może się różnić od standardowego.
Skontaktuj się z nami aby poznać szczegóły dotyczące wybranego projektu.
Opis projektu
Dom - bliźniak, nowoczesny, wygodny, z atrakcyjnymi przeszkleniami w strefie dziennej. Segmenty połączone ze sobą garażami (z kotłownią). Przestrzeń w obu segmentach została zaaranżowana tak samo. Na parterze przewidzieliśmy bardzo wygodny salon z otwartą kuchnią, wyjściem na taras i kominkiem. Dodatkowy pokój może pełnić rolę sypialni lub domowego biura. Program użytkowy parteru uzupełnia wiatrołap i łazienka oraz kotłownia z wejściem od garażu. Na poddaszu trzy wygodne, duże sypialnie, łazienka oraz wspólna garderoba. Nad garażem strychRzuty
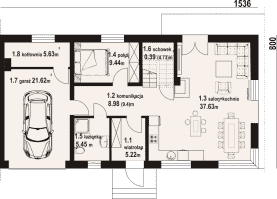
Parter
- 1.1 - wiatrołap5.22 m²
- 1.2 - komunikacja8.98 m²
- 1.3 - salon+kuchnia37.63 m²
- 1.4 - pokój9.44 m²
- 1.5 - łazienka5.45 m²
- 1.6 - schowek0.39 m²
- 1.7 - garaż21.62 m²
- 1.8 - kotłownia5.63 m²
Poddasze
- 2.1 - komunikacja6.05 m²
- 2.2 - pokój13.87 m²
- 2.3 - pokój10.88 m²
- 2.4 - garderoba2.36 m²
- 2.5 - łazienka10.15 m²
- 2.6 - pokój12.83 m²
- 2.7 - strych15.65 m²
Sytuacja
Dane techniczne
- Powierzchnia użytkowa120.52 m²
- Powierzchnia netto166.17 m²
- Powierzchnia zabudowy245.76 m²
- KominekTak
- Liczba łazienek2
- Liczba pokoi5
- Powierzchnia dachu400 m²
- Kubatura980 m³
- Wysokość domu8.16 m
- Minimalne wymiary działki38.72 x 16m
- GarażJednostanowiskowy
- Rodzaj dachuDwuspadowy
- Kąt nach. dachu38°
Instalacja grzewcza
- Instalacja grzewczakomplet instalacji, kocioł gazowy, instalacja solarna
Zawartość projektu
Zamówiony u nas projekt gotowy otrzymacie Państwo w komplecie składającym się z trzech egzemplarzy projektu architektoniczno-budowlanego wykonanego zgodnie z przepisami Prawa budowlanego (Prawo budowlane - tekst jednolity, Dz. U. 2020 poz. 1333).
Część opisowa projektu architektoniczno-budowlanego składa się z:
opisu architektonicznego zawierającego m.in. opis przyjętych rozwiązań, zestawienia powierzchni (użytkowej, zabudowy, netto), kubatury oraz powierzchni poszczególnych pomieszczeń.
Część rysunkowa projektu architektoniczno-budowlanego składa się między innymi z:
rzutów kondygnacji użytkowych (parteru i jeśli występują: poddasza, piętra, piwnic),
rzutu dachu,
przekroi poprzecznych i ewentualnie podłużnych,
elewacji,
zestawienia stolarki okiennej i drzwiowej.
Ponadto projekt gotowy obejmuje trzy egzemplarze opracowań branżowych stanowiące części projektu technicznego, a mianowicie:
projekt konstrukcji,
projekt instalacji wodno-kanalizacyjnej,
projekt instalacji centralnego ogrzewania,
projekt instalacji gazowej (jeżeli występuje),
projekt instalacji elektrycznej i odgromowej.
Część opisowa projektu technicznego składa się z:
- opisu konstrukcyjnego zawierającego m.in. opis materiałów, z których wykonane są elementy konstrukcyjne, obliczenia statyczne wraz z przyjętymi obciążeniami, zestawienia drewna konstrukcyjnego i zestawienie stali,
- opisu instalacji centralnego ogrzewania, wod-kan, gazowej (jeżeli występuje), elektrycznej i odgromowej precyzującego przyjęte w tych branżach rozwiązania, sposób wykonania instalacji i zapotrzebowania na poszczególne media.
Część rysunkowa projektu technicznego składa się między innymi z:
- rzutu fundamentów,
- rzutów konstrukcyjnych poszczególnych kondygnacji,
- rysunków niezbędnych elementów konstrukcyjnych, zbrojenia płyt oraz innych elementów żelbetowych,
- rzutu więźby dachowej,
- rzutów instalacji centralnego ogrzewania oraz schematu technologicznego kotłowni (jeżeli występują),
- rzutów instalacji wod-kan,
- rzutów oraz rozwinięcia instalacji gazowej (jeżeli występuje),
- rzutów instalacji elektrycznej,
- schematu tablicy TM,
- rzutu instalacji odgromowej.
Do dokumentacji dołączone są projektowana charakterystyka energetyczna, kopie uprawnień oraz przynależności do izb zawodowych projektantów oraz standardowa zgoda na zmiany w projekcie. Komplet dokumentacji znajduje się w praktycznej i estetycznej teczce.
Inne warianty tego projektu
Dodatki
Bezpłatne dodatki
GratisZestaw umów
GratisZmiany w projekcie
GratisTablica budowy
GratisDziennik budowy
Płatne dodatki

Dodatkowy egzemplarz projektu
400 zł













